当前位置:首页 > 户型图分析

#办公智造#

阅读 958079 | 粉丝 958079

  • 刘君雅 / 设计师

    2024年10月14日 06:53:23

    + 关注
    #办公智造#

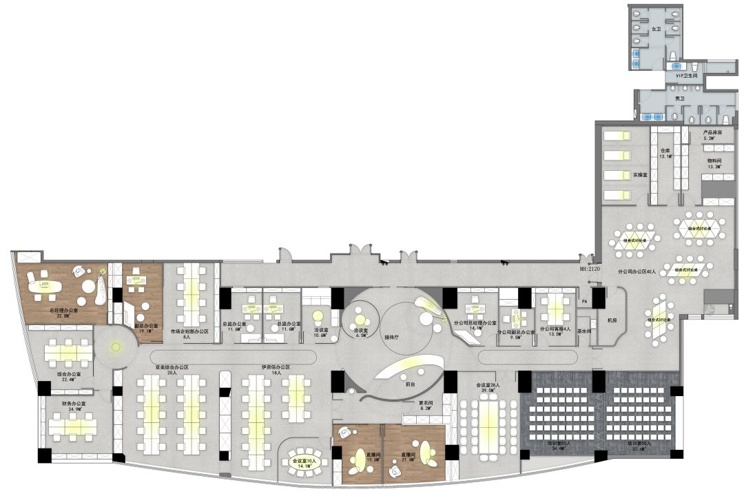
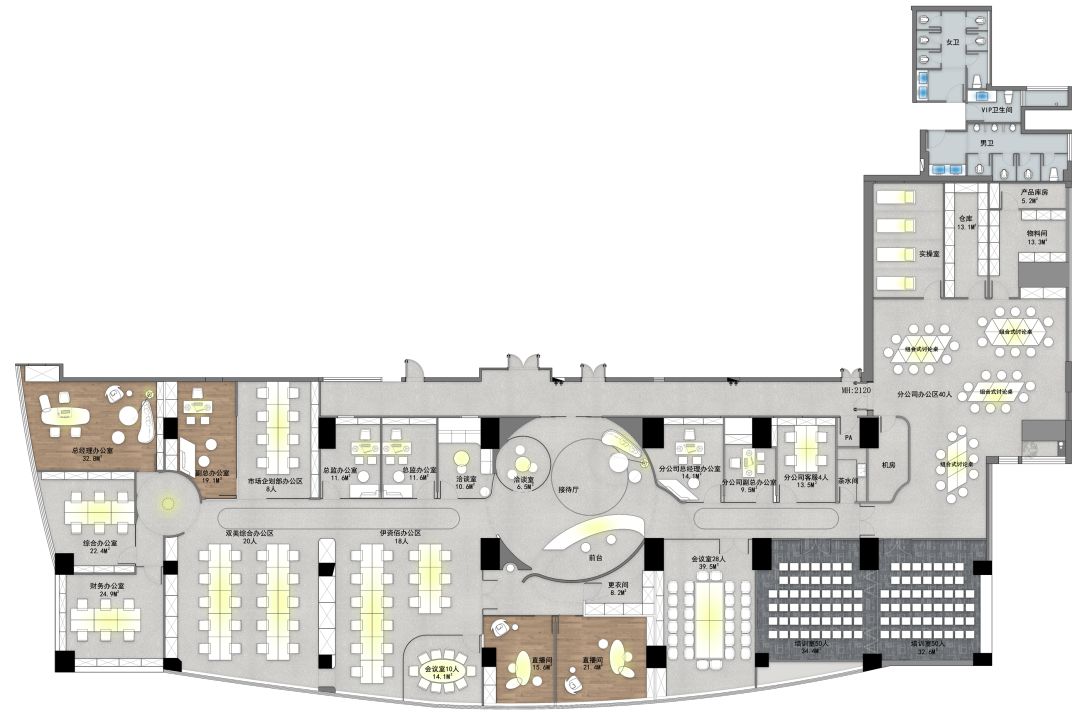
    入口的细节,一进门的科技感,全景式交互让人瞬间沉浸其中,光以曲线的形式在天花游动。联结起空间的关系,同时运用弧形玻璃打造洽谈室,仿佛如遨游太空的船舱,提升空间的流动性和科技感。进门处的洽谈室和办公区的会议室均使用了渐变玻璃,颜色由紫红色向透明过渡,呼应罗丽芬LOGO。    开放办公区以自然感为主,给人以放松愉悦的办公环境,过道天花采用椭圆形透光膜照明,灯膜与地板的弧线相互呼应。来到多功能办公空间,办公IP以从事医美相关行业人群为主,开放的空间搭配轻巧的办公桌,可为后续培训或是聚会做出改变,空间元素上采用裸粉色加上具有女性代表的弧度,让空间更具柔美感。        

  • 曹杨Young / 设计师

    2024年10月14日 06:44:51

    + 关注
    #办公智造#

    创投公司办公室实景图        

  • 刘君雅 / 设计师

    2024年10月14日 06:41:58

    + 关注
    #办公智造#

    本次办公空间灵感源自“太阳系”天体,它处于无限的宇宙空间中,孕育万物且万分神秘。      LANHAI以“新型办公室”为设计思路,将“梦幻”与“现实”、“艺术”相结合,展现一个兼具时代需求与美感的梦幻空间。
    设计试图用一系列弧度和曲面的表达与工业风的硬朗粗糙质地打造平衡感。
    在空间设计上,设定多功能效果,提高空间的可利用率。在空间风格上,基于医美的氛围,打造出兼具艺术性与功能性的交互式空间,通过多角度、多细节的互动性,让体验者行走在科技与未来的尖端。        

  • 刘君雅 / 设计师

    2024年10月14日 06:39:51

    + 关注
    #办公智造#

    设计师设计了一个中央步道,实现迎宾与引导视线沿空间延伸的双重功能。天花为长条形张拉膜光幕,地面与之相对着装饰。        

  • 刘君雅 / 设计师

    2024年10月14日 06:37:31

    + 关注
    #办公智造#

    空间充斥着弧形,设计师将重要枢纽设计为一个圆柱空间,即独立又与整体机构融为一体,成为一个动线枢纽,一个视觉焦点。        

  • 张曲峰 / 设计师

    2024年10月14日 06:34:23

    + 关注
    #办公智造#

    科技公司办公室        

  • 张小葵 / 设计师

    2024年10月14日 06:33:14

    + 关注
    #办公智造#

    蜕变(1)        

  • 张小葵 / 设计师

    2024年10月14日 06:31:51

    + 关注
    #办公智造#

    蜕变(2)        

发布话题

公开