当前位置:首页 > 户型图分析

#办公智造#

阅读 958229 | 粉丝 958229

  • Camille yu / 设计师

    2024年10月12日 08:02:09

    + 关注
    #办公智造#

    一工公司深圳新办公室的设计洋溢着青春能量、温暖又坚持了可持续性特色,用简单的材料打造出的空间充满活力和吸引力。主要饰面釆用了海洋板,它与天花、横梁和结构墙中裸露的天然混凝土相互协调,用自然的温暖平衡了工业的原始感。
    开放式布局增进流动和连通感。会议室位于幕墙旁边,开放式咖啡吧及材料室位于正中央。不同高度的体量加强了空间的纵深感与延展性。开敞灵活的中央区域以超大的“月球”灯为中心,配备模块化家具,可进行多种灵活组装,而舒适的休闲区和壁龛则为团队协作提供了非正式的舒适空间。        

  • Camille yu / 设计师

    2024年10月12日 08:00:26

    + 关注
    #办公智造#

    天然的木色、黑色和深摩卡色调、鲜艳的赭石黄和珊瑚色搭配,生物照明效果营造出动态阴影效果。集成智能照明和MAXHub技术确保空间可适应不同的任务。一工深圳新办公室体现了可持续性、创造力和功能性,营造了一个协作和灵活的环境。        

  • 王高君 / 设计师

    2024年10月12日 07:37:37

    + 关注
    #办公智造#

    惊喜展现        

  • 九可JOKER / 设计师

    2024年10月12日 07:35:37

    + 关注
    #办公智造#

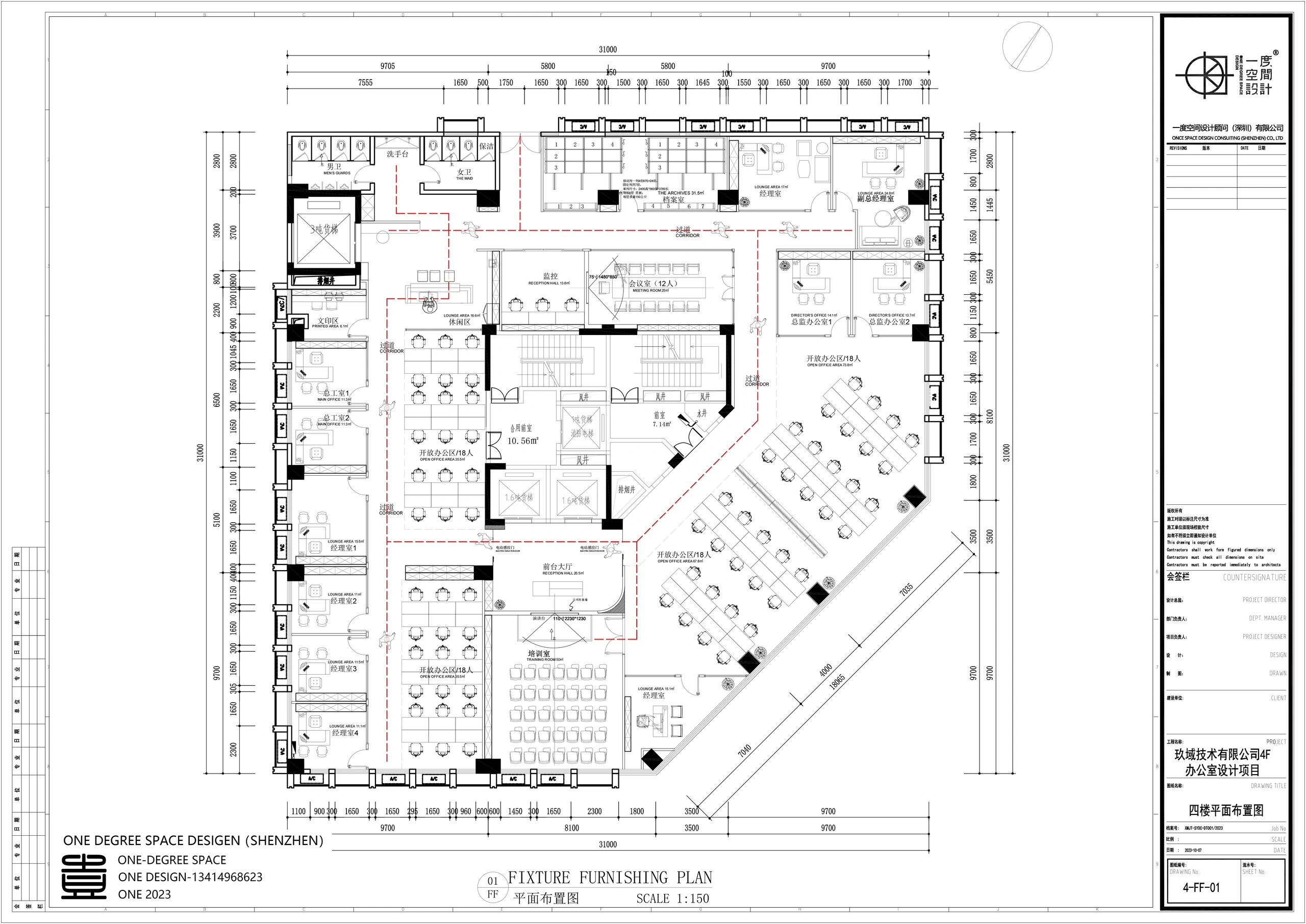
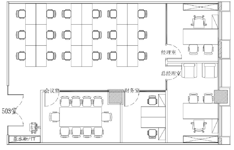
    九泽律师事务所办公空间        

  • 宁檬 / 设计师

    2024年10月12日 07:33:41

    + 关注
    #办公智造#

    实景图赏析        

  • 九头鸟 / 设计师

    2024年10月12日 07:32:26

    + 关注
    #办公智造#

    实景图        

  • 夏毅 / 设计师

    2024年10月12日 07:27:09

    + 关注
    #办公智造#

    实景落地      

  • 晓歌 / 设计师

    2024年10月12日 07:01:08

    + 关注
    #办公智造#

    别人家的办公设计系列        

发布话题

公开