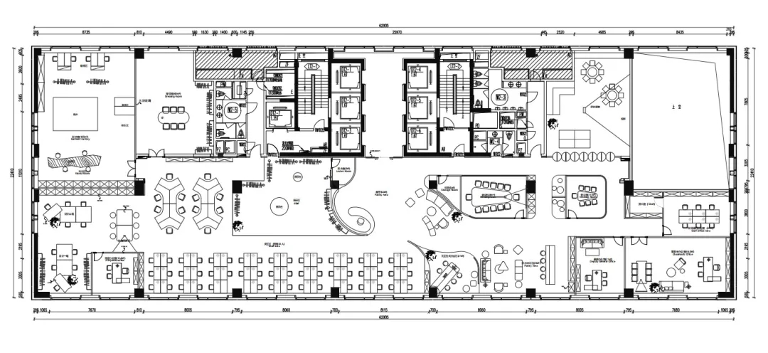
当前位置:首页 > 户型图分析

#办公智造#

阅读 939415 | 粉丝 939415

  • 阿峰 / 设计师

    2022年12月30日 20:00:38

    + 关注
    #办公智造#

    办公室实景图        

  • Diana / 设计师

    2022年12月30日 19:58:07

    + 关注
    #办公智造#

    前厅通过将自然纯净的白色与原木色相结合,将品牌形象简洁地呈现表达,同时为左右空间的过渡创建和谐观感。自然、通透是整个空间遵循的主题,使用者可以逃离都市雾霾的现实,在紧张的工作中寻得内心的宁静和放松。
    办公区吊顶运用石膏板吊墙加线条灯的效果,这种设计和功能布局,不仅全域式展示企业文化,而且提升员工在办公空间的时间粘度和活动舒适度,激发工作自主性和创意性。
    会议室整体以白色写字玻璃为主体,木饰面板为点缀,以灰色地胶将整个场景的气息沉稳收敛。空间干净、整洁、令人平心静气,助力高效办公和沟通,呈现出“少即是多”的留白空间美感。        

  • Diana / 设计师

    2022年12月30日 19:56:03

    + 关注
    #办公智造#

    办公区一侧是展示空间,拱形门设计颇具新鲜感和仪式感,灰白线条传递出时尚艺术感,具有非常鲜明的年轻态个性。穿版室在顶面的设计上颇有用心,主体圆形的灯具及散落分布的圆点灯光结合,简单时尚,加强与空间的融合。        

  • 思琪 / 设计师

    2022年12月30日 11:59:01

    + 关注
    #办公智造#

    办公室实景图        

  • 思琪 / 设计师

    2022年12月30日 11:57:31

    + 关注
    #办公智造#

    办公室实景图        

  • 毛均峰 / 设计师

    2022年12月30日 11:55:57

    + 关注
    #办公智造# 办公室设计

  • 阿峰 / 设计师

    2022年12月30日 11:12:43

    + 关注
    #办公智造#

    办公室实景图        

  • 李明 / 设计师

    2022年12月30日 11:01:46

    + 关注
    #办公智造#

    深色空间…        

发布话题

公开