当前位置:首页 > 户型图分析

#办公智造#

阅读 939913 | 粉丝 939913

  • Diana / 设计师

    2023年01月02日 09:29:51

    + 关注
    #办公智造#

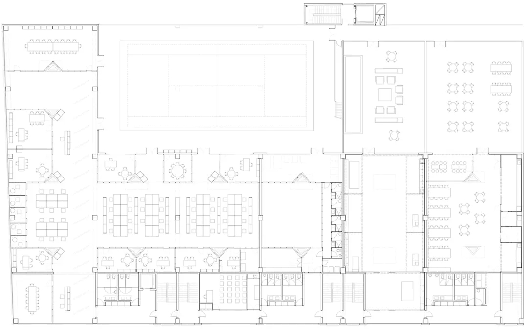
    GPAINNOVA的新总部位于一个典型预制混凝土结构的工业仓库中,虽然建筑在外观上缺乏趣味性,但它为内部提供了足够宽敞的空间。本次改造旨在利用这些内部空间的优势,赋予该空间个性和代表性。
    开放式的办公空间需要一个清晰的布局和分区,以确保每个人都可进行视线交流。为此,设计团队优先考虑以玻璃为主要材料,除了一些与天窗相连的大型植物元素,内部的视野几乎不受任何遮挡。        

  • 阿峰 / 设计师

    2023年01月02日 09:26:41

    + 关注
    #办公智造#

    办公室实景图        

  • 阿峰 / 设计师

    2023年01月02日 09:24:12

    + 关注
    #办公智造#

    办公室实景图        

  • Camille yu / 设计师

    2023年01月02日 09:22:21

    + 关注
    #办公智造#

    时尚办公空间        

  • 无忌 / 设计师

    2022年12月31日 20:19:30

    + 关注
    #办公智造#

    黑色凹槽亮点设计        

  • 思琪 / 设计师

    2022年12月31日 20:18:06

    + 关注
    #办公智造#

    办公室实景图        

  • Camille yu / 设计师

    2022年12月31日 17:59:14

    + 关注
    #办公智造#

    合理流畅的动线规划对空间功能、使用效率和空间视觉呈现都有重要的影响,也是室内设计的形式的主框架,决定了人在空间中体验的尺度与优秀空间的基调。因着原有空间的面积局限,我们以原木色为主调整,通过镂空的圆形借用空间采光优势,传达丰富的视觉形式。        

  • 敏颜 / 设计师

    2022年12月31日 12:10:51

    + 关注
    #办公智造#

    办公室设计        

发布话题

公开