当前位置:首页 > 户型图分析

#办公智造#

阅读 940436 | 粉丝 940436

  • 刘君雅 / 设计师

    2023年02月06日 08:36:12

    + 关注
    #办公智造#

    2023新开局        

  • 俊泽 / 设计师

    2023年02月06日 08:28:03

    + 关注
    #办公智造#

    办公室实景图        

  • 大鹏 / 设计师

    2023年02月06日 06:41:54

    + 关注
    #办公智造#

    设计突出了办公室的工作功能,其元素与自然元素是同义词。整个办公室使用了干净的单板调色板,带有黑色金属和土红色色调。这是一个元素设计,有意识地提高每个方面。
    地板是水磨石,间接地代表了卡车上下班的地面。一组马赛克瓷砖沿着边沿在一个偏移。该带增强了设计的流动性,同时描绘道路标志。浴室里铺着几何形状的灰色地板,墙壁上铺着瓷砖,其余的墙壁和天花板都是土红色的色调。
    办公室面向员工区开放,限制了员工的隐私。为了解决这个问题,在入口处引入了隔墙。这是一个悬挂的元素,模仿了运输卡车通过的地形和轮廓。在卡车上使用的波纹板被用作墙板,与业务工作相协调。波纹板配有两个黄铜杆手柄,在板上产生诱人的阴影。这些把手在办公室里随处可见,但材质不同。一种液体会在食品储藏室和厕所中产生,并隐藏在活板门中。服务区域的天花板高度降低,以容纳空调。
    员工区位于入口处,桌子上方是金属构件。存储空间由金属棒悬挂在天花板上,形成倒角边缘,以容纳木质橱柜。侧面灯也悬挂在天花板上,金属条和拱形面板与周围环境同步。悬挂式储物间还设有一个花盆,营造出活泼的氛围。
    小木屋和员工区之间的隔断是一个伪三中心的金属拱门,上面悬挂着一块玻璃板。它的一侧有一个木质储物柜,另一侧有一个花盆。播种机顶部装有光合作用灯,以便更好地生长植物。黄铜涂层的金属元素强化了美学,带来了优雅的外观。宽松的家具放置在中间,鼓励激励工作空间文化。整个空间的艺术以流动为导向。流体艺术作品组成了几个小木屋,而两个小木屋的标志性墙壁上绘有流体主题。小木屋由带有悬挂式储物间的玻璃隔板隔开。玻璃隔断确保了视觉上的联系,并提供了一种开放的感觉。        

    筑先生

  • 敏颜 / 设计师

    2023年02月05日 21:51:22

    + 关注
    #办公智造#

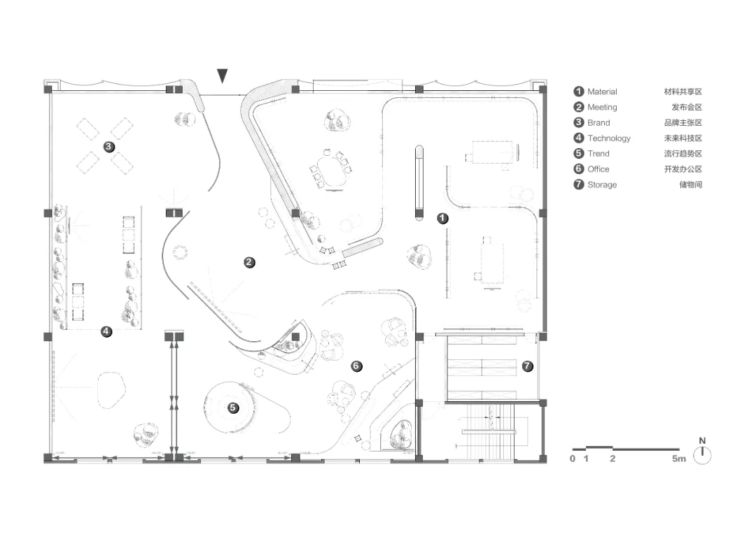
    由于空间主要功能用于面料的展示,因此我们在设计中尽可能弱化空间的存在感,采用大面积的白色肌理漆和海灰色地坪塑造纯粹的空间基底,没有丝毫喧宾夺主的意味,让服装面料成为空间的主角。9mm厚度的聚碳酸酯曲面隔断在内置灯带的作用下创造了朦胧的透光感和科技感,是营造空间氛围的一大“功臣”。由于曲面的做法在市场上并不普遍,而过于厚的聚碳酸酯又无法表达通透轻盈的感觉,因此,设计团队仔细研究了材料的制作工艺,按照100mm*100mm的模数,每米间距进行钢管固定以提高其硬度和强度。
    开放的中庭是整个空间的精神内核,需要满足办公、发布会和走秀等不同功能间的灵活转变。因此,从入口延伸至中庭区域的流线简洁明晰,空间尽可能开放灵活。尽管几个功能模块的布局几经易稿,但这一空间始终没有变化,作为一个聚合性空间,所有功能都围绕着它展开。
    在保证空间功能性和产品呈现的同时,设计希望给予空间使用者明快舒适的感受。木色、点状的绿色调和了聚碳酸酯的些许未来感,在视觉上带给人安宁舒适的感觉,通过色彩分布的平衡与匀称以达到和谐的美感。各个分区之间预留出的走道自然地成为了服装设计师的T台,并在流动的路线中设置木质坐踏,方便观者观看。        

  • 敏颜 / 设计师

    2023年02月05日 21:48:54

    + 关注
    #办公智造#

    展厅设计相较其他类目的室内设计最大的区别在于展陈和视觉的设计。森马材料创意中心需要在集约的空间中展示、存放1000多种面料,因此,我们的设计师需要按照客户梳理的布料分类,结合展架、展台、家具和标识的全定制化设计,以优化空间使用效率和展品使用的便捷性。
    依据面料特性,展区共分为七大类,统一定制的展架和蓝色亚克力标牌使得各个区域的面料摆放更加规范和统一。为进一步突出展品,我们在展架上也安装了灯带,修饰展架轮廓的同时,也起到展陈照明作用。

           

  • 匡志贤 / 设计师

    2023年02月05日 21:20:07

    + 关注
    #办公智造#

    1200㎡ 的办公室中,享有最佳视野、光线和自然通风的部分,被布置为员工的探讨或休憩区域,创意生产空间则有机分布于办公区四周,以鼓励更多的创意和合作在此自然而然地发生。
    整个空间围绕大厅展开,而大厅本身用途灵活,既可以接洽客户、休闲办公、开展合作,也可以充当会议室,以便进行大型演讲和召集员工大会。
    此外,可书写的玻璃表面,能够随时记录下设计灵感;可伸缩的玻璃墙面,能够快速为员工提供安静思考或讨论的创意空间;可移动/可调节的办公桌可根据个人的工作需要灵活定制……这些可移动、可调节、可私密、可开放的多种办公座位的提供,让员工们有机会实现创意、舒适地办公,并在团队中达成最有效地合作。        

  • 匡志贤 / 设计师

    2023年02月05日 21:12:11

    + 关注
    #办公智造#

    设计细节中处处透露出其人本主义的价值取向:天然油饰面橡木地板的使用,最大限度地减少灰尘过敏的影响,从而提高环境舒适程度及员工健康水平;自然通风的冬季花园,可以作为员工瑜伽和休闲的空间;各个区域之间有机穿插的阅读空间,有助于知识分享;设有日光浴的员工厨房、食物储藏/准备和公共用餐区,能够照料员工工作之余的生活,营造更亲近的归属感;充足的自然光线的引入,能够降低头顶人工照明水平……借助于这些精心挑选的材料和设计,悉尼办公空间充满温暖气息。        

  • 阿峰 / 设计师

    2023年02月05日 21:08:12

    + 关注
    #办公智造#

    办公室实景图        

发布话题

公开