当前位置:首页 > 户型图分析

#办公智造#

阅读 940542 | 粉丝 940542

  • 无忌 / 设计师

    2023年02月07日 08:05:44

    + 关注
    #办公智造#

    办公室效果        

  • 魏馨琪 / 设计师

    2023年02月07日 08:02:31

    + 关注
    #办公智造#

    黑白办公室效果图        

  • Diana / 设计师

    2023年02月06日 22:12:22

    + 关注
    #办公智造#

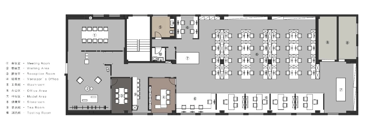
    区别于传统的以部门为核心的办公室布局结构,设计师依据专注、社交、接待、协作等工作属性,划分为专注公区、共享工位区,会议室、非正式协作区,休闲社交等区域,力求以灵活化的布局,在有限的物理空间内打造出多层次的办公场景。        

  • 毛均峰 / 设计师

    2023年02月06日 21:50:08

    + 关注
    #办公智造#

    地面采用工程地板,墙上保留了原有的水泥柱和部分墙,白色钢制框架便于展示。
    在每个工作台上方还制作了十字形白色框架,便于将织物挂在上面分区,以免无序堆放。这些设计不仅可以节省成本,而且可以起到装饰作用。
    等候区和会议室以墙体隔断形式半阻断,利用墙与墙之间的缝隙作为光线的引导让等候区增加了「灵动感」,既借到了光线又能巧妙的隐藏其中。        

  • 毛均峰 / 设计师

    2023年02月06日 21:47:32

    + 关注
    #办公智造#

    甲方对空间功能数量、工位数量及储藏数量有要求,并框定了造价及施工期限。
    有了限定也就有了局限,我们以「简洁」的手法融入现有的空间形态为切入点进行构思。动线通畅,色块清晰,功能分明。        

  • 蓦兰 / 设计师

    2023年02月06日 21:36:44

    + 关注
    #办公智造#

    设计了一个中央步道,实现迎宾与引导视线沿空间延伸的双重功能。天花为长条形张拉膜光幕,外饰一层玻璃格栅,与之相对的是深红色的椭圆形乙烯基地面装饰。拉丝不锈钢墙板外部嵌有滑动式白板和留言板,便于办公过程中的协同合作。
    进门处和前台旁的三间会客室均使用了渐变色长虹玻璃,颜色由粉色向透明过渡。会议室内墙壁是柔粉色,嵌有不对称装饰面板,天花采用椭圆形透光膜照明,地面则为深蓝色Tarkett得嘉地板。会客区与办公区由弧形黑框不锈钢穿孔板屏风隔开。屏风上的镂空图案尺寸自下而上的渐变设计,在保护隐私的同时确保视平线内视野的开阔。        

  • 蓦兰 / 设计师

    2023年02月06日 21:34:28

    + 关注
    #办公智造#

    空间四周排布着会议室、打印室、茶水间和一些安静角落,由珊瑚色金属屏风做围合。上述空间的内部和天花也延续了屏风元素,和暴露的混凝土天花形成对比。茶水间内有一个由卡拉白大理石打造的波浪形岛台,休息室的地板为软木并放置了一张纹理感强烈的定制大理石长桌。休息室内家具选自造作。
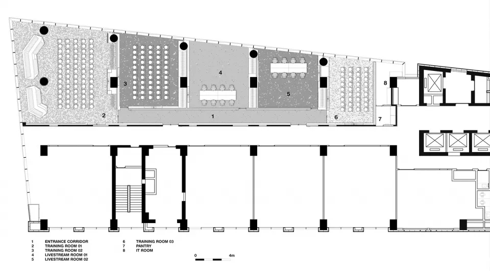
    空间中规划了若干可容纳150人的培训室、直播间和会议室等功能空间,墙面设计各不相同:有的是木条,有的是波浪形布面墙板。        

  • 李明 / 设计师

    2023年02月06日 09:34:29

    + 关注
    #办公智造#

    设计公司办公室实景图        

发布话题

公开