装修案例
灵感美图
找设计
找工长
看工地
记住密码
我已阅读并同意注册协议
发布话题
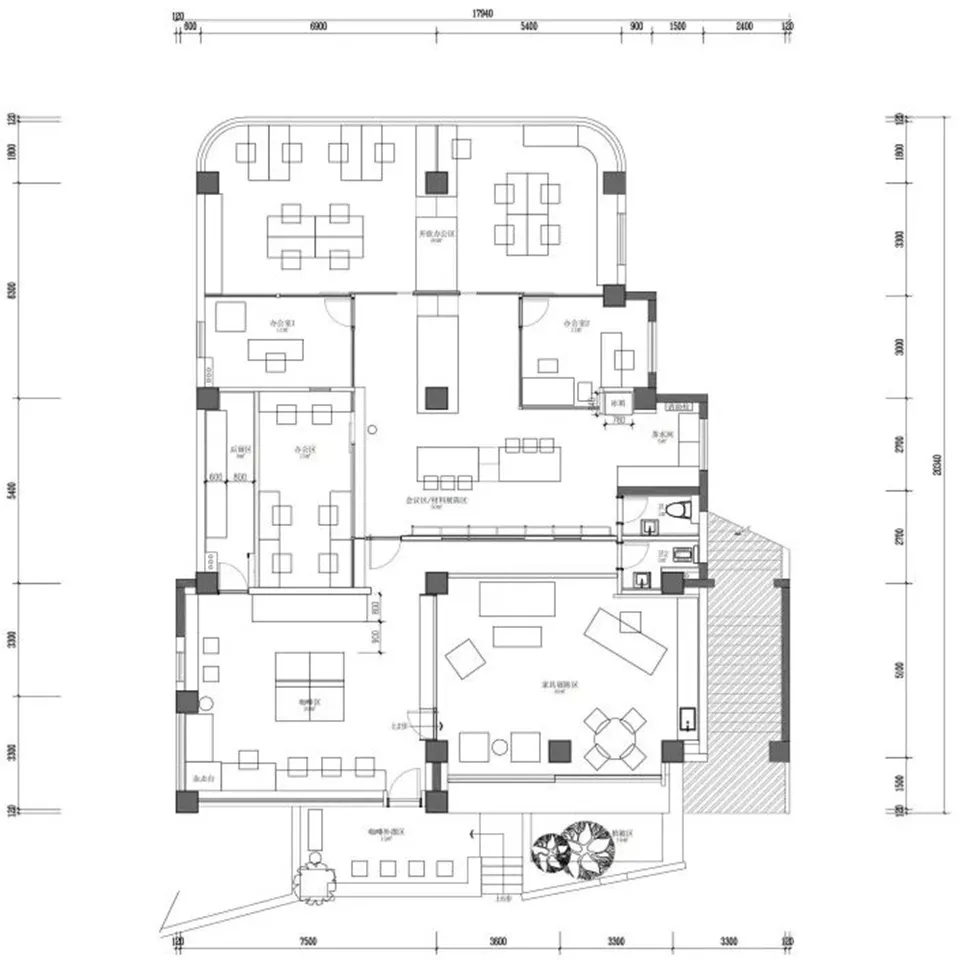
多面玻璃透进的自然光为宽敞的办公区和会议区,增添亲近自然的机会,自然光的洒入使呼吸感倍增,产生了一种简单、纯粹、舒适共鸣的办公空间。从而营造出更好的绿色舒适氛围,仿佛空间被一种具有亲和轻盈的气韵连接在一起了。
办公室实景图
办公室施工过程
办公室实景效果
大厅设计
完工后家具进场,效果特棒
办公空间设计
IBK企业银行