当前位置:首页 > 户型图分析

#办公智造#

阅读 947764 | 粉丝 947764

  • Camille yu / 设计师

    2023年02月28日 22:22:49

    + 关注
    #办公智造#

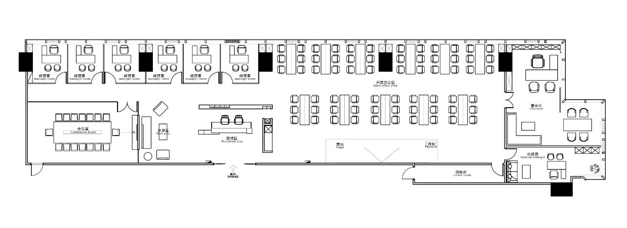
    作为一家以绿色科技为企业文化的公司,在大厅的设计中,最重要的则是直观的把企业文化表达出来,通过以下几大要素诠释:色彩、个性化材料、形态。
    设计运用灰白色为主基调,金色及绿色作为点缀,让空间层次分明。其中最值得的提出的是大厅挑高的天花造型,设计灵感来自于空调的出风口百叶片,环绕天花四周,百叶片分为上中下三层,每一层吹向不同的方向。大厅背景墙也是一大亮点,科技感十足的金色线条穿插交错,代表着电路芯片上的一次次挑战和创新。大厅一侧还放置了一个醒目的立方体,设计师亲自动手制作,将研发部门工作中所采用的废弃电路板和芯片主板拼接粘贴成为一个科技感十足的芯片魔方,通过支杆设计悬于空中,这也正是设计师眼中最符合爱得机电独一无二的装置艺术作品。爱得机电正是一家制造研发空调核心技术的科技制造企业,我们抓住了企业的核心理念将其通过视觉传达给每一个客人。        

  • Camille yu / 设计师

    2023年02月28日 22:21:21

    + 关注
    #办公智造#

    二楼来到企业的办公区,开放的办公分区结合开放的文印休闲区,各自独立但又联通。办公区一整面格子柜间隔绿色的软木布板给空间带来了活力和变化,同时也解决了储物的功能和小组讨论和记录便签的功能。文印区则大面积采用绿色布板,地面和天花都分区与其他空间,黑色的操作台转角到吧台,在这里可以用餐、喝咖啡、泡茶,给工作空隙的时间一个小憩休闲的空间。
    二楼的会议室明亮严肃,白色配合软木绿色布板的横条纹造型墙面代表着一分耕耘 一分收获的田地精神,也是一个未来可灵活上墙的企业荣誉墙,另一面木色的会议背景墙稳重大方,投影屏幕镶于上方,白色会议桌椅显得优雅时尚。
    二楼总经理办公室商务时尚,绿色的墙面生机勃勃,半高的围合式背柜功能强大,包围感极强,木色的地板温馨舒适,天花的线条明快硬朗。办公室的采光极好,阳光上午和下午都可以进入空间,产生不同的光线效果,给一天的工作带来些许轻松愉悦。
    三楼来到董事长办公室,进门两面上顶的书柜是董事长众多书籍的海洋,喜欢阅读喜欢书香的他希望在工作之余也有一个可以静心学习的氛围。在书柜的一侧设计了一道暗门,里面是董事长的休息室,工作台对面的洽谈区设计上采用了木色墙板,与书柜和地面色彩统一,结合浅咖色的沙发整体相得益彰。        

  • Siri / 设计师

    2023年02月28日 22:14:38

    + 关注
    #办公智造#

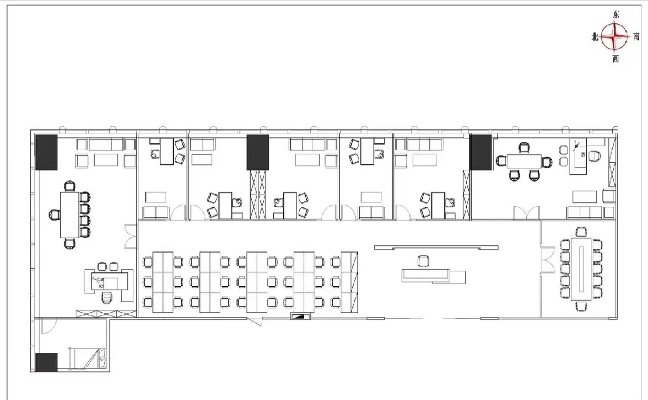
    开启电梯来到企业的门厅区,运用半高式隔墙的手法通过两面独立的柜体墙将空间功能分区。灰色的背景墙将背后的自然光线阻隔,让近距离的视线感受沉浸稳重,两边透出的光线又让空间显得灵活通透。运用三角形和立方体的结构特点设计了吧台和墙面的构成元素,绿色作为企业的主色调贯穿始终。
    门厅的左侧来到休息区,灰色的墙面上一幅绿色的企业布局图格外醒目。渐变玻璃的设计让过道空间更加清新优雅,也将室外的采光更好的引入室内,同时保持了相对的私密性。
    利用形象墙的背面设计了一面荣誉柜,让进入公司的客人在过道来回穿梭时都能看到。另一面隔墙则利用背面的空间设计了一组文印柜和咖啡吧,侧面预留了放置饮水机的位置。这里面对开放办公区,又与吧台联通,可灵活的兼顾休息区和开放办公区的共同使用。整体统一的灰色绿色搭配让空间整体性极强,不同的颜色区分又把各自的功能划分开来。        

  • Siri / 设计师

    2023年02月28日 22:12:58

    + 关注
    #办公智造#

    迎合使用的需求,开放办公区将会是一个较为灵活多变的布局规划。兼备独立办公和整体培训以及小组化办公的多样模式,固在设计布局上没有过多的分隔,而保证空间的最大化和无死角的视觉体验。地毯的设计采用了像素格的理念,运用蓝色点缀在大面积的灰色其中,给空间增加了些许活力。
    由渐变玻璃分隔的独立办公室,面积不大但将空间最大化利用,鸟瞰城市发展的同时又与过道和开放办公区疏隔有度。透过渐变玻璃看到办公室内的场景及人物多了一分朦胧如纱的浪漫场景。
    在开放办公区最深处的一面白色烤漆墙面中隐蔽了两间办公室,董事长办公室就在其中。推开隐蔽门一面耀眼的爱马仕屏风惊现眼前,稳重大气的深咖色书柜和工作台搭配灰色的地毯让董事长办公室给人非常踏实诚信的心理感受。        

  • 无忌 / 设计师

    2023年02月28日 17:20:22

    + 关注
    #办公智造#

    办公室设计        

  • 思琪 / 设计师

    2023年02月28日 17:15:23

    + 关注
    #办公智造#

    办公室实景图        

  • 阿峰 / 设计师

    2023年02月28日 17:04:58

    + 关注
    #办公智造#

    办公室实景图        

  • 阿峰 / 设计师

    2023年02月28日 16:23:31

    + 关注
    #办公智造#

    办公室实景图        

发布话题

公开