当前位置:首页 > 设计圈
  • 魏馨琪 / 设计师

    2025-03-09 21:26


    #办公智造#

    园区的整体外观建筑群设计,上城设计事务所运用不规则的曲直线,有秩序感的加以排列组合。细看穿孔铝板上的不规则“缺口”,既像是无线电波的浮动波形,又如同芯片主板上连通的线路结点,与其专注于信息传播的企业主业形成了完美的呼应。        

  • 魏馨琪 / 设计师

    2025-03-09 21:24


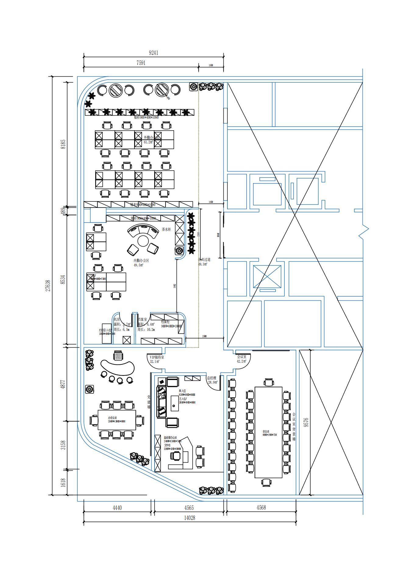
    #办公智造#

    办公楼的空间设计则打破了传统的大开敞空间形态,引入了街区的概念,通过墙体的分割与重塑,创造出新的交通流线、功能区域和空间节点,营造出既私密又开放,同时相对自由的办公空间。        

  • 魏馨琪 / 设计师

    2025-03-09 21:21


    #办公智造#

    整栋楼的会议空间保有百态,根据不同的会议需求,让使用者选择或正式商务,或高效协作,或轻松灵动······的与会方式,在万千观点的碰撞中,求同存异。        

  • 魏馨琪 / 设计师

    2025-03-09 21:20


    #办公智造#

    新园区的落成,不仅是企业实力的展示,更是对未来办公空间设计方向的一次大胆探索和实践。它将成为光通信技术发展的新引擎;它是融合科技与生态的桥梁;同时也将成为生态科技办公空间设计的典范。        

  • 杜飞 / 设计师

    2025-03-09 20:52


    #办公智造#

    VIp接待室效果图        

  • 杜飞 / 设计师

    2025-03-09 20:44


    #办公智造#

    VIp接待室实景图        

  • 杜飞 / 设计师

    2025-03-09 20:39


    #办公智造#

    VIp接待室实景图        

  • 乌拉西 / 设计师

    2025-03-09 16:34


    #办公智造#

    自由精神        

发直播

公开