当前位置:首页 > 设计圈
  • 陈澄 / 设计师

    2025-03-09 07:08


    #办公智造#

    步入前厅,设计师摒弃了传统办公空间的身份仪式感。米灰色云纹石材地面延伸出温暖的引力场,接待台与沙发以群岛形态漂浮其间,苔藓绿长椅与赭石色圆几构成大地色谱的变奏曲。这里既非拒人千里的冰冷权威,亦非浮夸的视觉轰炸,恰似调香师工作台上等待被唤醒的中性基调,为后续的空间叙事预留无限可能。移步核心办公场域,通透性成为设计语言的母题。行政工作舱犹如悬浮的玻璃方舟,钢构骨架支撑起开敞的落地隔墙,既勾勒出管理者与团队的呼吸距离,又让阳光穿透玻璃,在科技木地板上织就朦胧光毯。设计师巧妙运用声学板构筑视觉屏障,让键盘敲击声与头脑风暴的声浪,在开放式平面中达成微妙平衡。
    设计师对功能分区的处理堪比精密香调表:头脑风暴区采用渐变雾面玻璃隔断,模拟香水前调的透明感;决策会议室以温暖灰色栅塑造中调的醇厚;而茶歇区的橙红色跳跃如尾调的余韵。精心选配的灯具照明让人工光晕与自然光影在空间中共振,正如顶级香水在皮肤上随时间推移绽放不同层次的芬芳。在这个以可持续材料构筑的香氛工作室里,每处细节都在述说材料诗学:拼接的波浪形地面呼应香水瓶的流体美学;圆润的软体家具吸收足音如海绵吸纳多余香调;甚至连新风系统都在模拟林间清风携带花香的漫游轨迹。当斜阳将钢构投影谱写在素混凝土色的地面上,整个空间仿佛巨型香水瓶盛满金色溶液,等待被某个灵感点燃,迸发出改变气息纪元的创造性焰火。

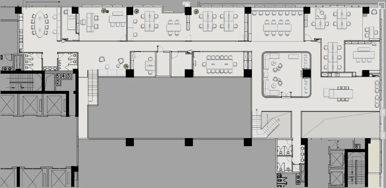
  • 丽旻 / 设计师

    2025-03-08 13:04


    #办公智造#

    好加智能科技总部办公
    接待区  Reception Zone | 接待前厅,作为进入总部的第一空间,极具视觉张力和记忆点。整体调性以现代简约的灰色系为主,点缀少量鲜明的黄色,突出高级的科技感,通过不同材质和肌理的灰色形成叠加与融合,达成多种层次的空间构成输出,一张一弛,形成记忆锚点,于此塑造的空间语言亦在诉说着企业的品牌愿景。
    大面积的金属铝板,简洁干净,包裹着特别设计的一整面的斜面造型,于灯光的晕染中尽显办公空间的独特性。天花采用镜面不锈钢,让上下挑空的纵向空间无意间形成上下延伸,通透开阔,结合有序规划的氛围灯,形成辅助照明,营造出一个充满能量的未来科技新环境。
    前厅一侧设置了一处通往二层的楼梯,其流畅有力的线条造型呼应了前厅区域的极致美学调性,纯粹冷酷,结合恰到好处的柔和灯光,其独特的反射效果将整个空间得以无限延伸。        

  • 丽旻 / 设计师

    2025-03-08 13:01


    #办公智造#

    茶歇区  Tea Break Area | 茶歇区位于二层,这里也是总部的能量中心,整体空间感十分开阔,一侧的超大落地窗引入室外的自然光线,建筑凹位的绿植墙成为清新鲜活的点缀,尽显绿意盎然。设计采用小面积的深色系,沉稳安静,搭配镜面不锈钢的天花倒影,视线形成延伸感,结合人性化的吧台和家具布局,旨在为员工和参观者提供一个放松身心、促进交流的舒适环境。        

  • 丽旻 / 设计师

    2025-03-08 12:58


    #办公智造#

    办公区  Office Area | 办公区以开放式布局为主,既鼓励团队间的互动协助,又为专注的个人工作提供舒适的区域。特别设置了开放讨论区,右侧的一整面墙设计为可书写的面板,满足个人或小组间的主题讨论和项目协作。通过温暖的木质柜子、渐变的绿色地毯、窗边的高吧台座位等营造出自然轻松的环境,鼓励专业输出与人际交流。
     会议室  Meeting Room |  冷酷的渐变玻璃隔绝了内部与外部,满足会议的独立私密的需求。特别采用柔和纯净的软膜灯光,既遮住了天花裸露的横梁,又一定程度上削弱了层高只2.2米的压抑感,仿佛天窗的吊顶设计亮点也营造出纯粹整洁的空间调性。烤漆玻璃提供了开会讨论的头脑风暴的介质,而墙面的吸音板则将声音隔绝于会议室内部,不影响周围其它空间。        

  • 丽旻 / 设计师

    2025-03-08 12:54


    #办公智造#

    茶室  Tea Room | 在现代化的办公空间里,茶室的功能区域也是多样化的。这里既可以接待客户,轻松交谈,增进了解;也可以作为员工日常的茶歇区域,满足不同人群的下午茶时光。设计于黑白中加入一定比例的原木色系和材质,使空间无形中散发出松弛平和的氛围,诗意且静谧。
    茶歇区  Tea Break Area | 除了办公空间,企业还提供了更多元化的茶歇区和休息区,通过温馨的人性化设计引导员工快乐工作、健康生活。        

  • 小麦庆 / 设计师

    2025-03-08 12:22


    #标准施工#

    电视背景墙立面图        

  • 小麦庆 / 设计师

    2025-03-08 09:23


    #标准施工#

    墙面小造型        

  • 小麦庆 / 设计师

    2025-03-08 09:16


    #标准施工#

    墙面造型节点        

发直播

公开