装修案例
灵感美图
找设计
找工长
看工地
记住密码
我已阅读并同意注册协议
发直播
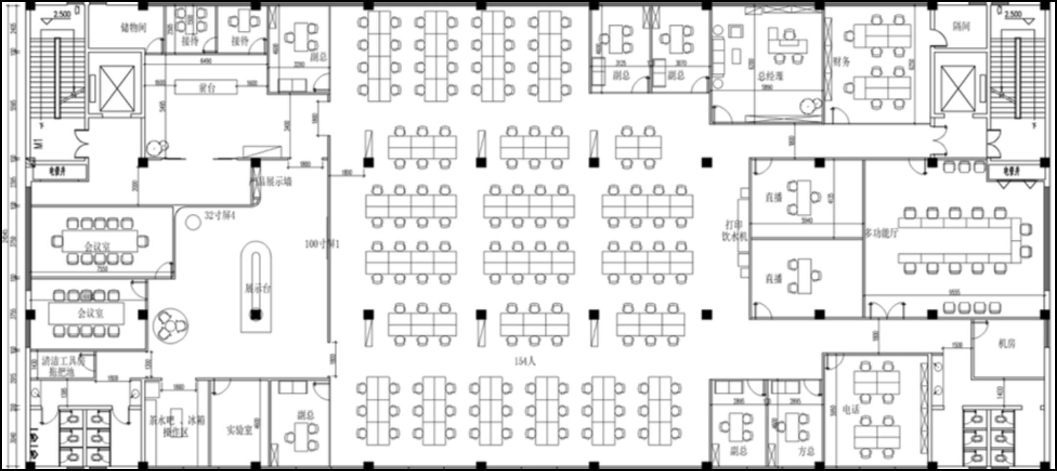
1200平办公室装修设计落地
办公空间设计
设计理念:Design concept:以(守护生命)为核心,突出制药技术的人性化与科技赋能,主色调以木纹、白、灰为主,象征专业与信任;局部点暖色灯光增加温暖感。流畅的动线设计和流线型空间布局避免拥挤,分区域引导参观者。搭配LED光带、透明亚克力展柜,营造未来感。既专业又具亲和力,同时互动性强,有效地传达了亚中制药企业的精神。
包柱天花造型节点
天花造型节点
教育机构办公空间
设计的人用了思想生产的人用了心思
宝技物联办公室效果图