装修案例
灵感美图
找设计
找工长
看工地
记住密码
我已阅读并同意注册协议
发直播
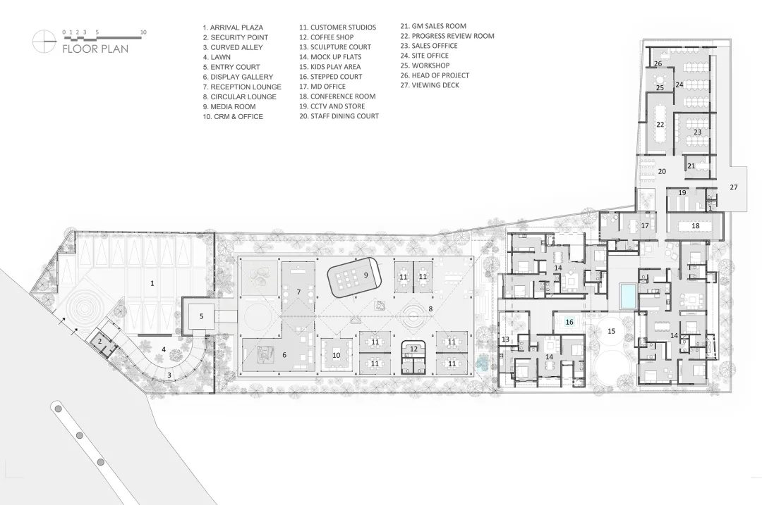
三个关键组成成分——营销办公室、体验中心、和施工现场办公室是这个设施的核心。穿过项目的旅程显示出巧妙复杂的空间序列,由建筑、景观和室内设计的周到融合所精心打造。视觉框架和体验层层展开,以保证观者始终被吸引和着迷。
办公室实景图…
异地办公室设计效果图…
三组办公室实景图…
节后交付…
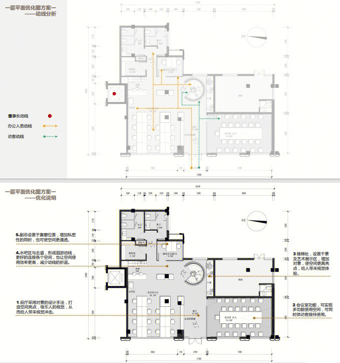
办公室的合理分区设计…