装修案例
灵感美图
找设计
找工长
看工地
记住密码
我已阅读并同意注册协议
发直播
别人家办公室 | 035
别人家办公室 | 034
舒适办公环境…
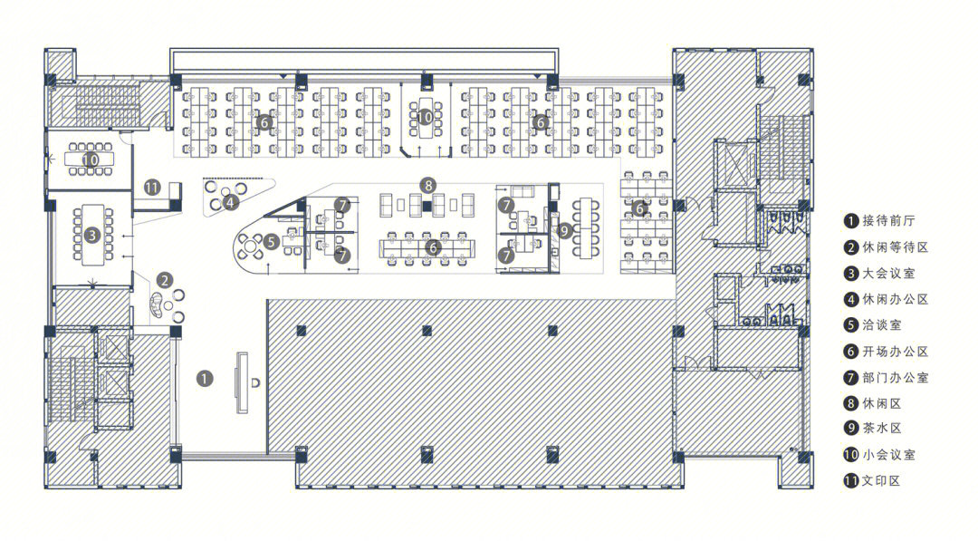
办公室彩平图
零号地球办公室
…
施工现场…
品,细品…