装修案例
灵感美图
找设计
找工长
看工地
记住密码
我已阅读并同意注册协议
发直播
科技型办公室…
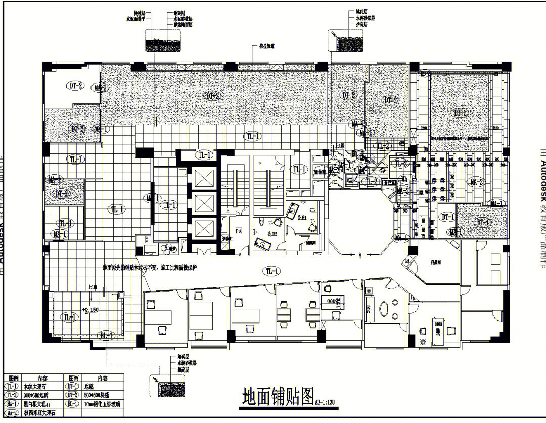
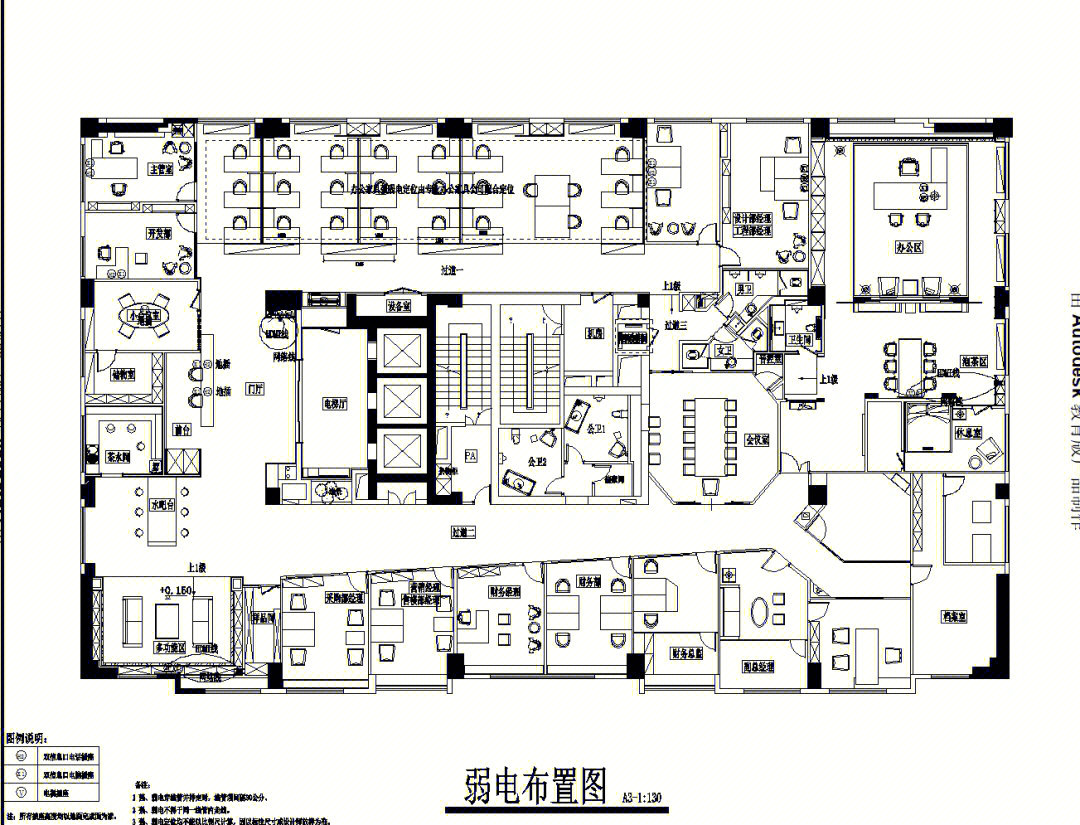
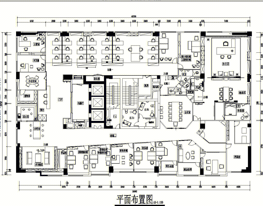
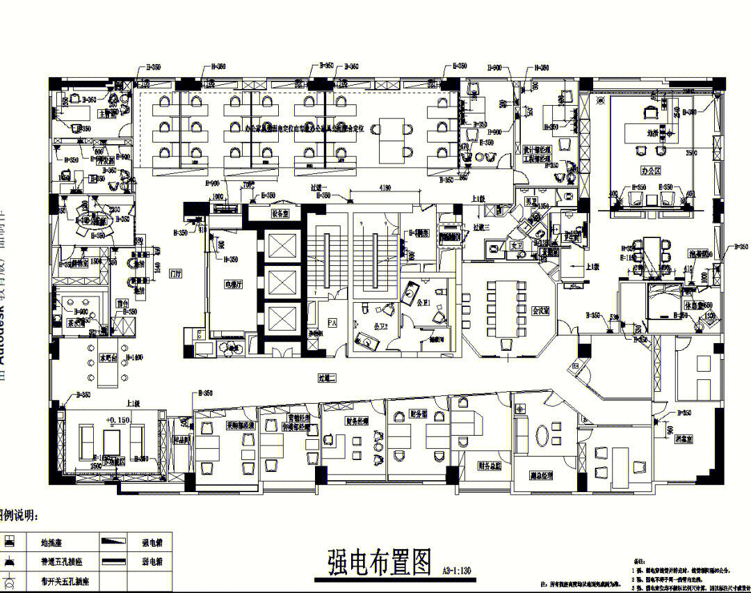
施工图纸…
三组办公室实景图…
办公室实景图…
中科宇航办公室…
效果图与实景图…
门口将地面抬高15cm做成一个盒子的形状,玻璃的结合自然形成一个小小天窗。类似夯土色泽的艺术涂料是最后反复挑选定稿的颜色,在具体有视觉冲击力的同时意外的也让人感受到平静。