当前位置:首页 > 设计圈

  • #办公智造#

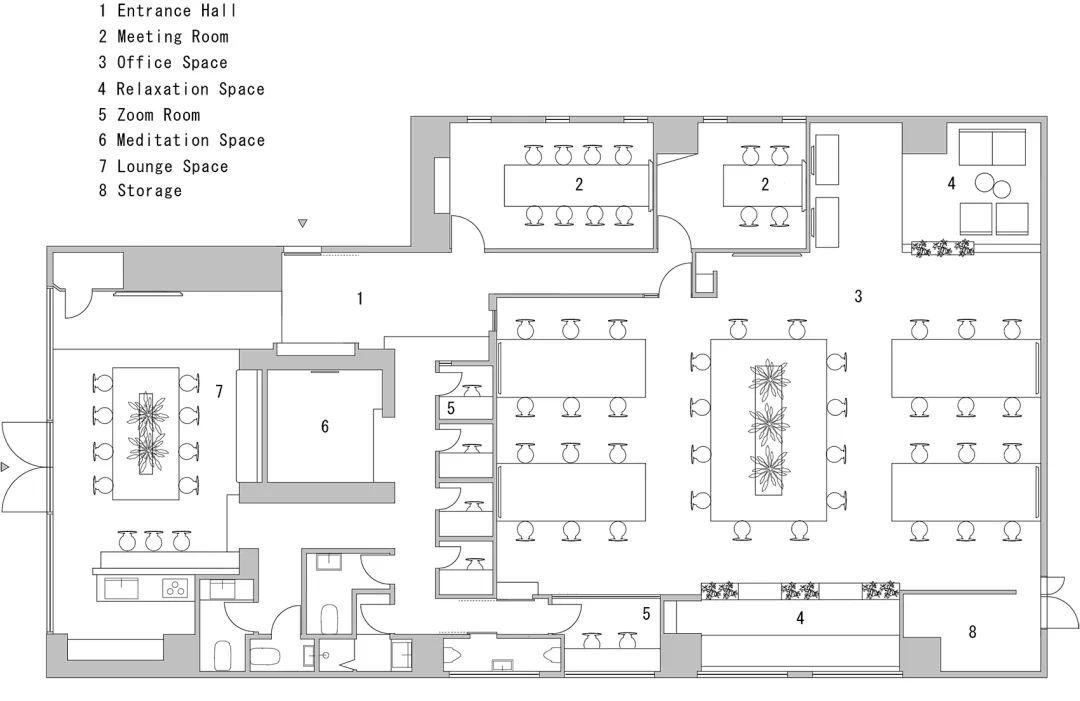
    这次DSP总部办公空间设计采用了 极简的白、灰色调 ,主材为PVC、肌理漆、阳极氧化铝、长虹玻璃、毛毡等多样的浅色材质, 局部点缀一个自然色系的撞色材料:软木塞板, 这个材料不仅契合了品牌LOGO的色调,也为整个大空间提示了一些关键性的节点。
    这是一个年轻的品牌,也是为年轻人服务的品牌,整个办公空间的设计也结合了这个特色, 暴露的水泥吊顶、倾斜的铺地、撞色和对比的材质 这些细节为极简的空间带来了张力,使其跳脱了常规办公呆板的形象。                

  • 张小葵 / 设计师

    2022-10-12 09:09


    #办公智造#

    办公室设计赏析…                

  • 饶阳 / 设计师

    2022-10-12 09:05


    #办公智造#

    现代简约办公室…        

  • 小筑 / 设计师

    2022-10-12 09:01


    #标准施工#

    设计处理手法        


  • #办公智造#

    办公室设计(1)        


  • #办公智造#

    办公室设计(2)        

  • 杨梅酱 / 设计师

    2022-10-12 08:43


    #办公智造#

     现代风格,黑白木色的组合…        

  • 宋闲 / 设计师

    2022-10-12 08:39


    #办公智造#

    办公室实景图…        

发直播

公开