当前位置:首页 > 设计圈
  • 木子李 / 设计师

    2023-04-19 13:31


    #办公智造#

    豪气办公空间        

  • 邓雄飞 / 客服

    2023-04-19 13:29


    #标准施工#

    不管是什么样的楼梯,首先你要把方案做出来,避免后期定位、施工出差错,特别是旋转楼梯,确定好中心点、半径、起始点和层高、各个位置的尺寸都不能出问题,这是基础的绘制条件        


  • #易住美宅#

    效果图        


  • #办公智造#

    办公室设计效果图        

  • 丽旻 / 设计师

    2023-04-19 06:34


    #办公智造#

    办公室设计赏析        

  • 猪猪侠 / 设计师

    2023-04-19 06:26


    #办公智造#

    温暖明亮的配色、空间配置和动感形式,这些设计语言都旨在创建与公司结构相一致的文化气质。整个空间都在精心规划下确保最大限度地利用自然光照,而局部开放的天花板松造则增强了这种光影质感。其设计目的是让用户能够从入口和接待区的地方就能感知三维空间的深度。        


  • #办公智造#

     现代办公空间        


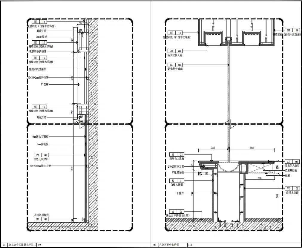
  • #办公智造#

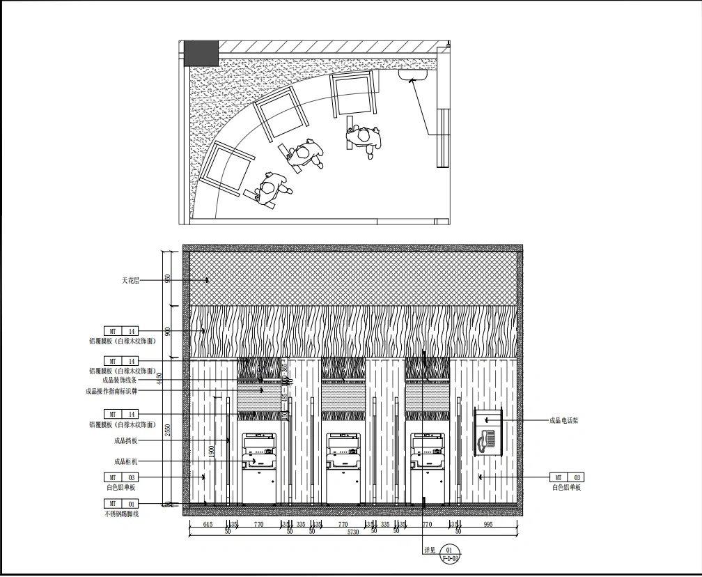
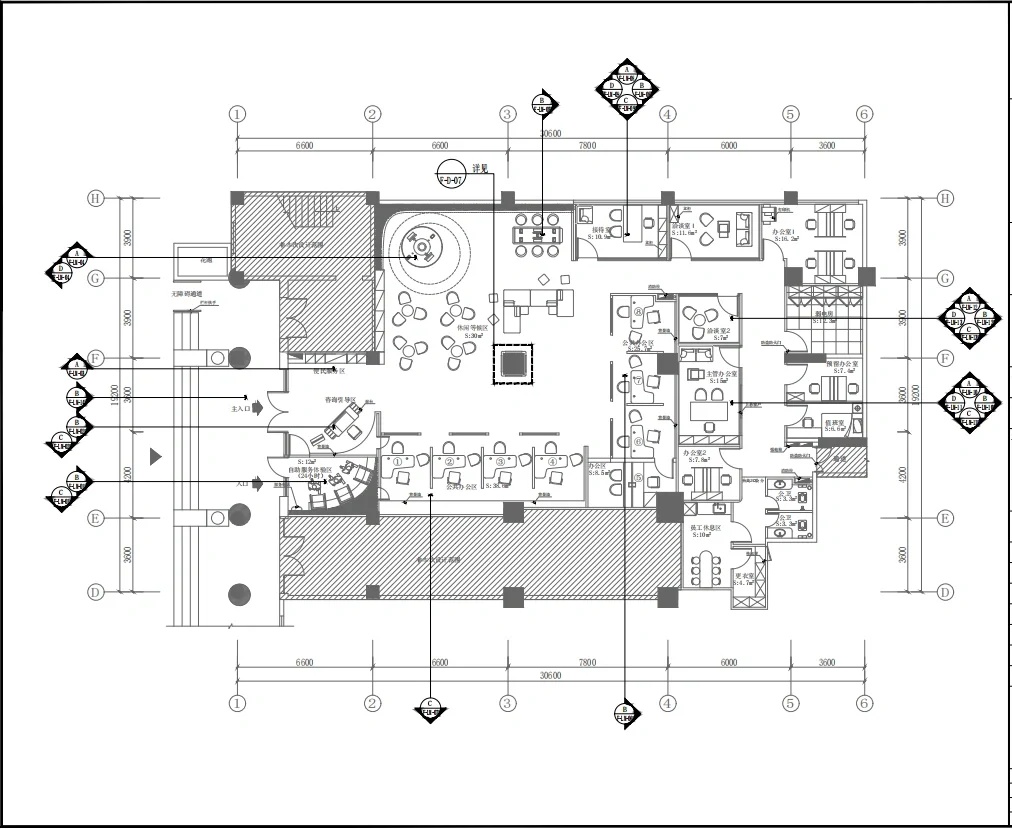
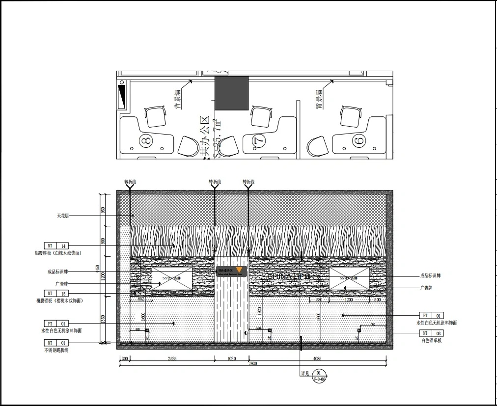
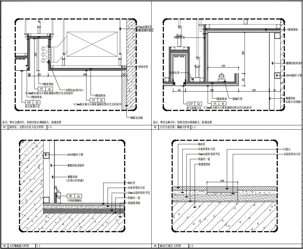
    办公空间施工图        

发直播

公开