装修案例
灵感美图
找设计
找工长
看工地
记住密码
我已阅读并同意注册协议
发直播
东方传媒完工毕业照
东方传媒办公室效果图
众安保险办公室实景图
办公室实景图
下沉式淋浴房施工节点
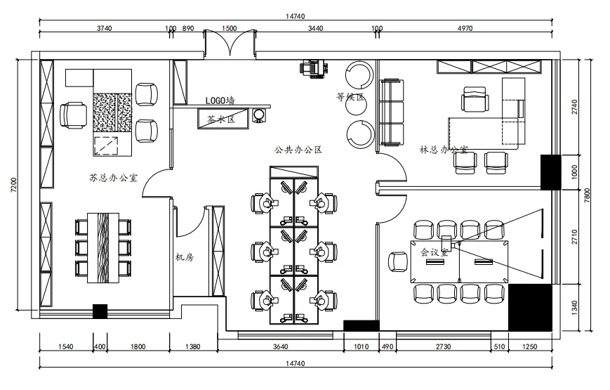
办公室设计
办公室施工进度