当前位置:首页 > 设计圈
  • 木子李 / 设计师

    2023-05-01 16:57


    #办公智造#

    室内呈现敞开的状态,空间围绕着落地窗外树梢美景展开思绪,巨幅落地窗尽可能将户外自然景色纳入室内,模糊内外空间的界限。为了让人们视线中的景致完美,设置了斜屋顶的手法,用切割过的“取景框”,打破了呆板的建筑立面造型,亦丰富了空间功能,拉近了人与自然的距离。
    以细节,营造沉静优雅的气质和氛围,值得回味。
    项目最终呈现的质感效果,在于化繁为简和解决问题的能力。通过成熟的笔力建造、书写:秩序、比例、空间。
    划分,覆盖,隐藏,释放,将材料混合交织,将设计的手法隐藏于无形之中,彼此相融又极具创造性的建构。

  • 小海 / 设计师

    2023-05-01 16:47


    #办公智造#

    260m²董事长办公室        


  • #办公智造#

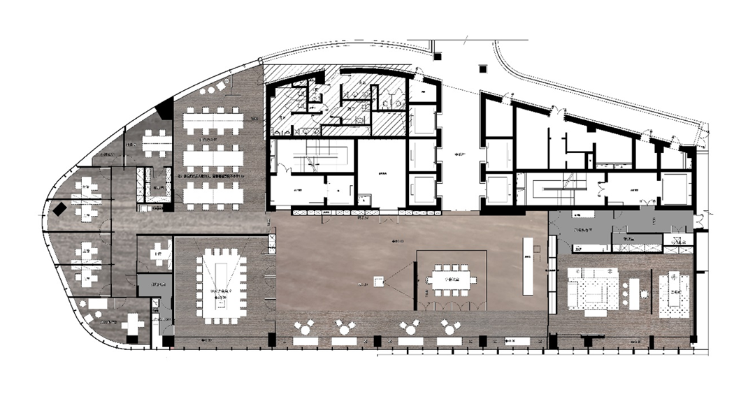
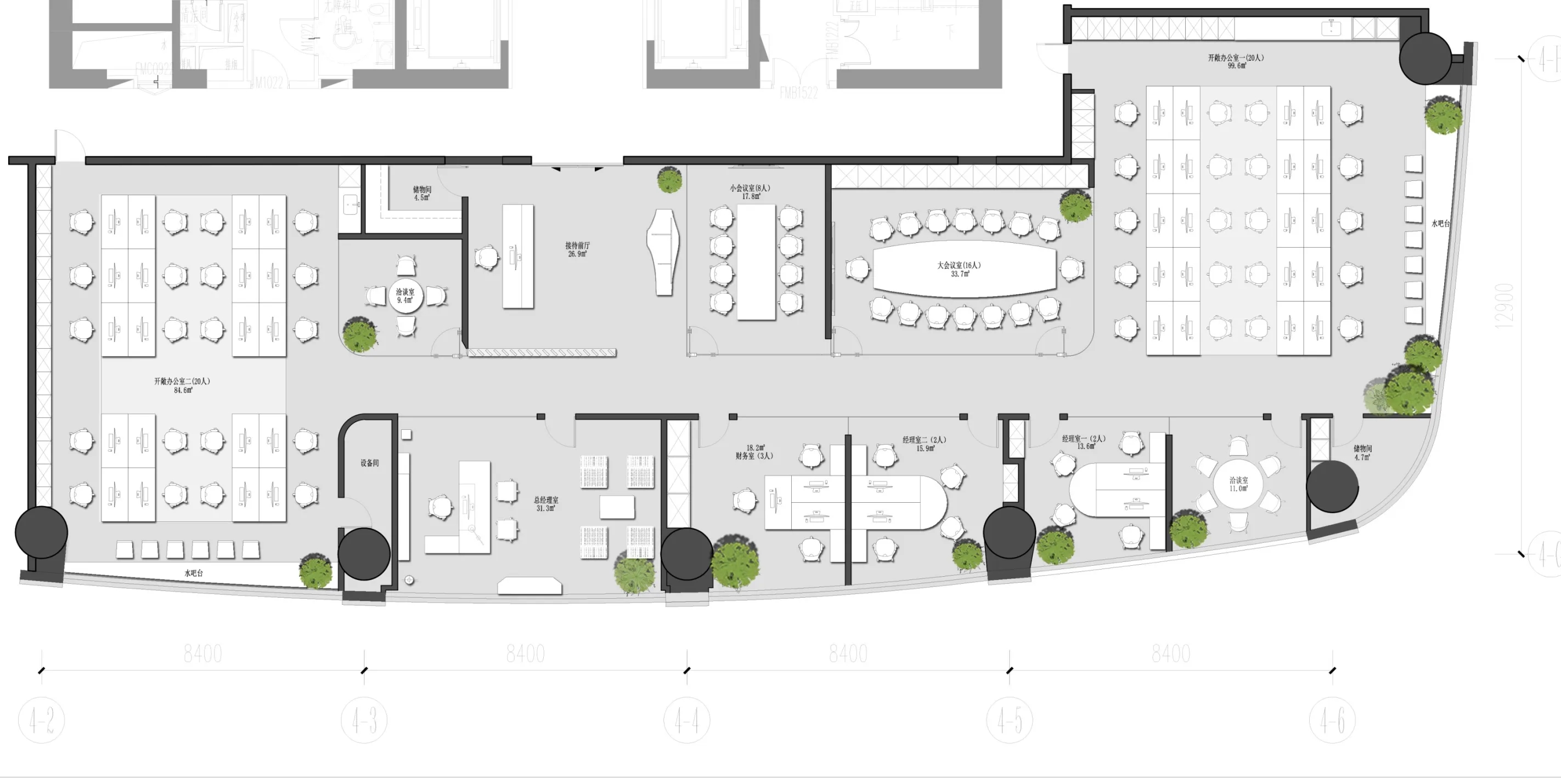
    三明治布局的平面,左右四个市场部门,中间是管理层和会议区。
    白色、灰色和环保绿是空间色调的主旋律
    入口绿色背景墙,表达企业代理建材品牌的环保理念。黑绿相间的拼花地毯衬托白色桌椅,传递轻盈愉快的空间情绪。
    会议室全部采用透明玻璃隔断,阳光透过南侧玻璃照进走廊。
    办公区采用线性光带、漫反射,创造出柔和、安静的光环境。让员工拥抱阳光、空气和自然的同时,光线设计凸显晋强公司透明、高效的企业理念。        


  • #办公智造#

    办公区采用隐缝吸音岩棉板吊顶,令员工安静舒适。储物柜妥善安置产品资料、个人物品,让职场干净整洁。
    办公区采用线性光带、漫反射,创造出柔和、安静的光环境。让员工拥抱阳光、空气和自然的同时,光线设计凸显晋强公司透明、高效的企业理念。        


  • #易住美宅#

     折叠门        

  • 小筑 / 设计师

    2023-05-01 16:25


    #标准施工#

    石材施工节点图        

  • 大鹏 / 设计师

    2023-05-01 16:22


    #办公智造#

    轻奢办公室案例        

  • 张小葵 / 设计师

    2023-05-01 12:52


    #办公智造#

    设计将“窗景”作为室内动线布局的核心,用压低视线的“窗楣”、连续的带状窗来拥抱上海南京西路的繁华景象,用“镜面不锈钢的内框”来延伸城市景观。
    因循流动、交流、共享的办公行为模式,合恣设计规划了长廊式自由办公区、流动式办公位、开放式讨论区和多功能会议区,因地制宜建立理性的空间秩序。接待区为“外”,办公区为“内”。外松内紧,外动内静。

发直播

公开