当前位置:首页 > 设计圈
  • 夏毅 / 设计师

    2023-05-05 16:58


    #办公智造#

    完工实景        

  • 饶阳 / 设计师

    2023-05-05 13:40


    #办公智造#

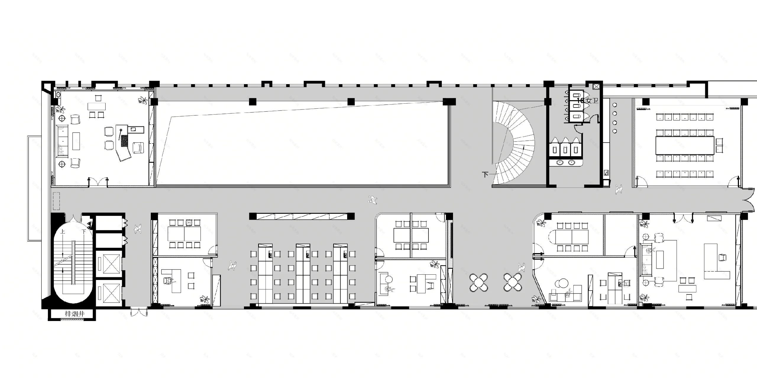
    办公的仪式感从前厅开始
    前厅空间以白、灰、木色为主要基调,搭配蓝色点缀。背景墙在光影视线的照耀中,不同视角呈现不同的视觉冲击。每一处细节的精心设计,带给使用者不同的空间体验。
    整个空间借助功能布局、动线与设计语言,将光线、自然感的材质及软装家具等贯穿于其中,让每一位员工在聚合或独处时,都能感受工作中的舒适便捷。
    独立办公室、会议室、吧台以及办公区等办公空间,彼此开放又紧密互动,构建出日常工作、休息、会议讨论等多元化工作场景。
    沉静的色调凸显出会议空间的静谧,细节处彰显精致感。玻璃隔断提升了空间的通透感,木饰面背景墙增添会议空间的稳重感。        

  • 饶阳 / 设计师

    2023-05-05 13:38


    #办公智造#

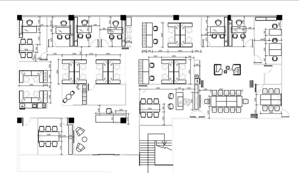
    呈现空间的丰盈内涵
    天、地、墙在视觉与触感上都传达着空间的质感与细微变化,一浅一深中刻画出精神的自由,营造出沉稳与内敛的空间气场。
    木色具有包容、中和的完美效果,木与白、灰相互映衬,呈现空间的丰盈内涵。
    办公空间去除繁冗的堆砌美学,用感观上的简约整洁,表达空间情感,塑造宜人的空间氛围。        


  • #办公智造#

    办公室实景图        

  • 小筑 / 设计师

    2023-05-05 13:22


    #标准施工#

    线性灯        

  • 木子李 / 设计师

    2023-05-05 13:20


    #办公智造#

    新中办公室(1)        

  • 木子李 / 设计师

    2023-05-05 13:18


    #办公智造#

    新中办公室(2)        

  • 凌凌易 / 设计师

    2023-05-05 13:15


    #办公智造#

    办公室实景图        

发直播

公开