当前位置:首页 > 设计圈
  • 刘静 / 设计师

    2023-05-06 11:31


    #商业空间#

    安佳堂        

  • 王丹丹 / 设计师

    2023-05-06 10:47


    #办公智造#

    现代办公空间        


  • #办公智造#

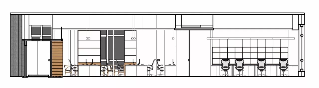
    “用怎样的设计来表达我对设计公司办公空间的理解呢?我想用‘本真’两个字来总结。”设计师这样说。向自然学习。上帝创造大自然的空间是美好的,有新鲜的空气,宜人的绿植,明媚的阳光,而我们的建筑多是将人与自然隔离开来。设计师的空间观就是向自然学习,尽量减少人与自然的隔离。例如在入口到办公区域的空间中设计一面瓦胚墙,尽量多使用自然的材料和元素。
    在设计上用干净洗练的线条,宁静的色调和光源,来营造工作环境特有的气质与氛围。空间平面规划以区域布局分隔,在满足功能需求的前提下利用材料特性的变化,拓展了空间的纵深面积        


  • #办公智造#

    办公空间的长吊灯是我们自己设计的,上下双面通透,让空间更有延展性。同时将导视系统融合在空间里,也是一个很好的处理方式,更好地保障了现代设计的完整度。
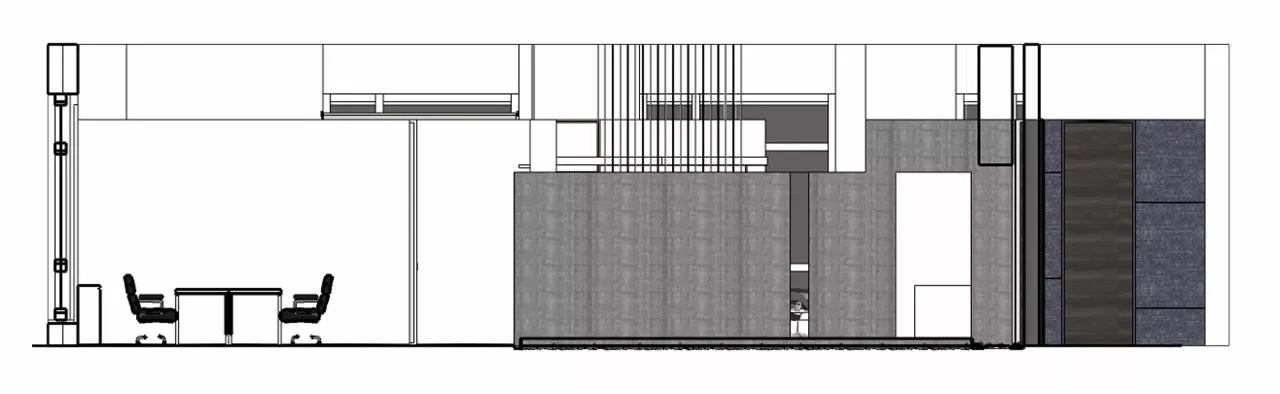
    究竟是什么让我们在不经意间感动,又在那一瞬间与空间融为一体?我想是“生长”!返璞归真的原材料会随着时间流转而发生不可预测的变化,它们是运动着的。这些有生命力的材料为这个现代方盒子的办公室注入了温暖人心的力量,例如现浇混凝土,老青砖,水磨石地面。它们的出现给这个全新的现代化办公空间带来一种安定沉稳的力量。
    在室内空间现浇筑混凝土,是非常有挑战性的,这要求工程在各个方面都需要做到极致。第一次浇筑时,发生爆模,原因是模板的牢固度不够,经过一段混凝土的反复试验,终于浇筑成功时,有一段墙体一面有弯曲不平整的现象,后来工人用手工凿毛留5公分的边,成为一面有粗放肌理的背景墙,这样的空间更有手工感,也是空间文化和内涵的彰显。        


  • #办公智造#

    楼梯是建筑内的建筑,用结构来表现空间,是此次方案中的一个亮点,浩然的办公室夹层空间的楼梯,设计师采用了钢索拉伸的结构方式,一个小尺度的构件,却也对空间产生了巨大的影响,仿佛能看到有双结实有力的工匠之手,轻缓而又细致地为你所在的空间护航。        

  • 晓歌 / 设计师

    2023-05-06 07:18


    #办公智造#

    新中办公空间        

  • Mr.Li / 设计师

    2023-05-05 21:41


    #办公智造#

    Short Sentence 办公室(1)        

  • Mr.Li / 设计师

    2023-05-05 21:39


    #办公智造#

    Short Sentence 办公室(2)        

发直播

公开