当前位置:首页 > 设计圈

  • #办公智造#

    Dr.Wan办公室项目完工照        

  • 毛均峰 / 设计师

    2023-06-02 20:26


    #办公智造#

    办公无展厅完工图        


  • #办公智造#

    简约办公室        


  • #办公智造#

    办公空间装修项目 | 珍岛信息技术(上海)股份有限公司        

  • 王丹丹 / 设计师

    2023-06-02 18:36


    #办公智造#

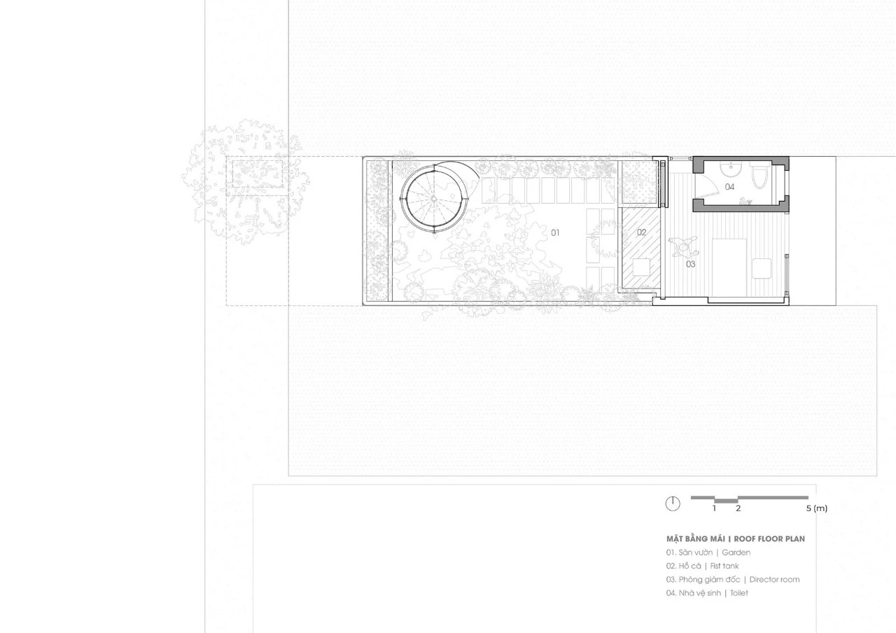
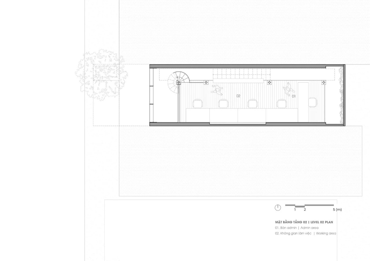
    DDoffice 是一间设计办公室,位于越南的顶级大都市之一——胡志明市第 7 区的一个密集住宅区,那里建筑密度高,污染严重,且树木稀少。
    员工白天大部分时间都在工作场所度过,因此就像他们第二个家。项目设计的主要目标是打造一个开放的工作空间,增加工作中的人际互动,并与自然建立更多联系。由于这个开放的环境,同事们有机会在相同的氛围中工作,共享相同的景观。
    为了达到上述目的,办公室最初的设计应该在一个宽阔的平面上横向规划。然而,由于地面狭小,面积仅为 38 平方米,因此选择的方案只能是垂直体量。        

  • 王丹丹 / 设计师

    2023-06-02 18:33


    #办公智造#

    整体建筑在 4 个方向上每隔一段距离就设有一个开放空间,使楼层能够垂直连通,以增加同事之间的互动。但由于缺乏清晰的空间界限,每个人都会感觉他们在同一个房间里工作,这使得他们即使位于不同楼层也可以在垂直方向上互动和联系。最后建筑师选择了“悬浮结构”方案,所有地板都按照规划安放在特定的位置,并悬挂于屋顶,以创造出宽敞的工作空间,其视野不受支柱的影响。钢制的地板营造出轻盈飘逸感。
    办公室立面的二层至四层都有相似的景观,可以俯瞰被各种植物覆盖的玻璃幕墙系统。建筑和窗户前的绿植代表了一种“常规隔断”,模糊了内外的界限,不仅为工作空间创造了私密性,还确保了自然光与舒适的绿色景观。建筑后方有一个从较高楼层一直延伸到底层的垂直悬浮花园作为保护,就像建筑呼吸的肺部。屋顶花园有一个多样化的生态系统,设有小鱼池和一些当地的树种,让来到这里的人们逃离城市喧嚣和闷热空气。工作空间几乎完全被绿植、自然光和新鲜空气所包围。        

  • 王丹丹 / 设计师

    2023-06-02 18:29


    #办公智造#

    项目图纸        

  • 刘静 / 设计师

    2023-06-02 18:11


    #商业空间#

    店铺现有沿室内商业内街的“沿街面”,从外部形象上采用了极简的处理手法——通过设置包含入口的四个矩形窗洞,形成了有序的对外表情。
    材质力求简洁干净,大量使用面砖、岩板和不锈钢,结合大面积超白玻璃材质,并通过黄色烤漆色彩进行调和。形成spa空间的专业、洁净调性。        

发直播

公开