当前位置:首页 > 设计圈

  • #办公智造#

    香港办公室设计        


  • #办公智造#

    香港办公室设计        


  • #办公智造#

    香港办公司设计        


  • #办公智造#

    开敞的建筑外窗和时尚的照明,不仅让室内光线充足也营造出轻盈明亮的时尚气息。通透的玻璃隔断和极简的优雅配色相结合,提升了办公空间的功效学,有助于营造高效的工作环境。设计团队以灵活多元且具时尚美学的设计策略,通过巧妙的分区、自然材料的应用和图形设计,打造了一个展现当代工作场所设计趋势的工作环境。        

  • 戴宁 / 设计师

    2023-12-27 21:05


    #办公智造#

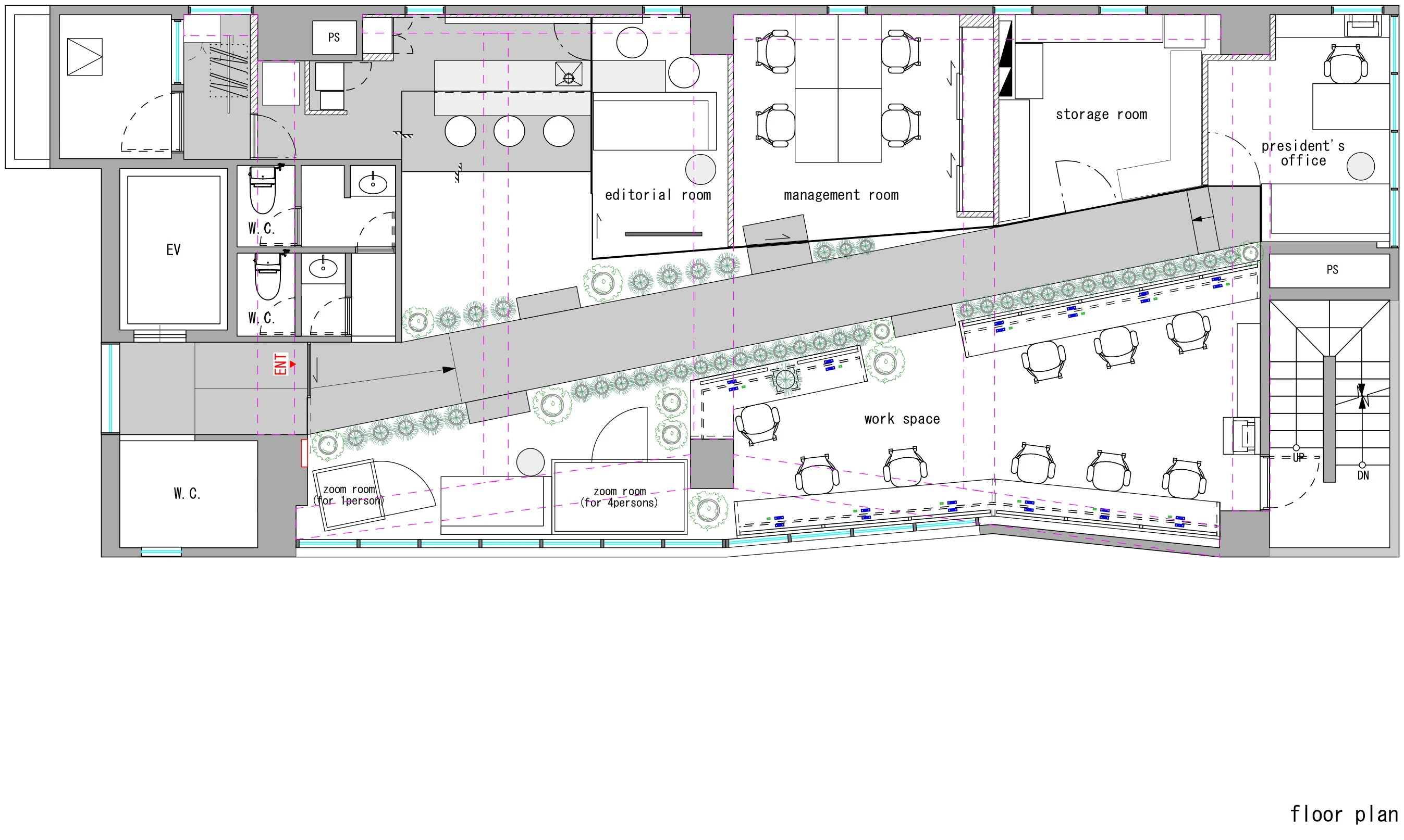
    TRIVAL是一家制作广告、WEB、SNS、数字导视等视觉内容的管理公司。
    主要想法是将入口与深处的公司主管办公室连接起来,并在内部中间设置走廊。其余必备的房间则位于走廊两侧。
    此外,两侧还摆放了一些植物,以调节行走的人与坐在办公桌前的人之间的距离。这营造了一种距离感和隔离感。        


  • #办公智造#

    位于建筑顶层的这处办公场所,顶部拥有高耸、巨大的天窗构造。设计团队以此为开放办公空间的中心,以光为画笔,将空间勾勒成对比分明的素描作品。在沥去了所有外加的色彩之后,光影便成为纯粹的空间主角。        

  • 魏馨琪 / 设计师

    2023-12-27 20:24


    #办公智造#

    接待前厅的整体色调以冷静克制的大面积中性灰色为主,配合亮眼的白色水磨石、平整大板面银灰色金属网,带有鲜明的现代工业风格冲击力。大尺度的人造石接待台构成利落的方正体块,在简洁的线条灯光作用下,打造空间纯粹的秩序感。
    通往办公区的走廊,作为空间之间的连接体,在场域中承载着过渡与起承的作用。有序排列的顶面吸音垂片,增强空间的秩序感,利落的设计语言表达,让办公空间更加简洁明亮。        

  • 魏馨琪 / 设计师

    2023-12-27 20:21


    #办公智造#

    在空间严谨的基调之上,不同“盒子”间的色彩变换,丰富空间层次,活跃视觉色彩。水吧以负空间嵌套进灰绿色“盒子”,硬朗的空间体块结合利落的线条构成,赋予不同功能空间多重层次的表达,以色彩诠释空间,用设计合理化功能。        

发直播

公开