当前位置:首页 > 设计圈

  • #办公智造#

    空间的氛围源于其独特的物理形态。以极简为原则,抛开所有繁杂的形式美,体现在空间中的是简约的韵律、无限延伸的路径、相互穿插的体块。这些元素在不断地叠加和重组中创造出场所的诗意。        

  • Mr.Wang / 设计师

    2023-12-27 23:09


    #办公智造#

    设计师试图用空间的语言讲述一个由暗及明,由旧逐新的设计故事,而在各个空间中行走观摩的过程,也正寓意着设计过程中的等待、蛰伏、困顿乃至涅槃而生。
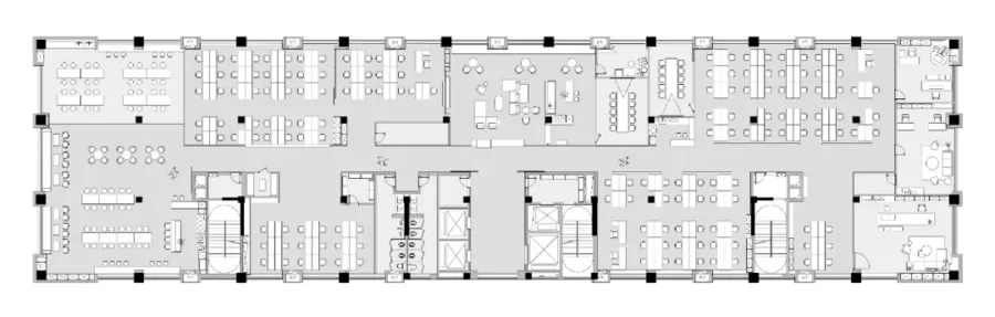
    原空间为整层的平面结构,在设计入口时,设计师通过大量的留白,呈现开阔明朗的第一印象。对原始梁柱肌理的保留,让空间在精致与粗犷的对比中,表达着剧烈的反差感,在细腻的表壳下,透着破土而出的张力。        

  • Mr.Wang / 设计师

    2023-12-27 23:07


    #办公智造#

    由于过廊处梁柱的压迫,空间中心必然会有光线较弱的阴暗面,于是设计便顺势而为,在暗区设置环形廊道,寓意设计作品在面世之前,经历的漫长煎熬与等待。同样的,廊道作为空间对外与对内两向区域的链接点,也成为天然的隔断,引领访客驻足于明亮宽松的待客区域。
    沿过道进入,来到空间的主要活动场所——GTTO 中岛区,作为链接所有空间的纽带,承载着日常休闲、友人接待、办公服务以及情感转换的功能。由于此处位于空间的中心位置,四周围绕办公区,尽管在布局上设计师采用开放式结构尽量引入横向光线,但明度上仍然无法满足所要达到的要求。于是在天花处错开部分管道与廊柱,置入变化的软膜模拟自然天光的效果。这一处理也同样为空间带来向上的张力与开阔明朗的结构。        

  • Mr.Wang / 设计师

    2023-12-27 23:05


    #办公智造#

    设计师相信建筑的生命感来自其与自然的互动,当室外的绿经过方正的窗落于黑白色系的空间,场景瞬时鲜活。在刻意简化空间内的装饰存在之后,人们的注意力自然被引至户外与对细节处的考量。设计师希望办公空间不光是浅显地用于办公与待客这种直接的商业需求,更是能够体现对于空间设计的态度与理解。
    纯粹的黑白体块交错,呈现为严谨有序的办公状态。在生活化场景与办公场景的相互置入中,设计师没有明晰地采取直接的分割,而是更愿意通过融合的方式弱化办公的肃然,即使在工作状态中,也可以通过区域的转换起到放松与休憩的作用。        

  • Mr.Wang / 设计师

    2023-12-27 23:04


    #办公智造#

    设计师对于极简的理解,在于对“ 装饰 ”以及“ 元素 ”使用的极致克制,但这并不意味着可以草草了事,而是将更多的注意力注入到对细节的把控与结构比例的协调中。        

  • 猪猪侠 / 设计师

    2023-12-27 22:06


    #办公智造#

    办公设计展示(1)        

  • 猪猪侠 / 设计师

    2023-12-27 22:04


    #办公智造#

    办公设计展示(2)        


  • #办公智造#

    香港办公室设计        

发直播

公开