当前位置:首页 > 设计圈
  • 小筑 / 设计师

    2024-01-13 20:24


    #标准施工#

    CAD制图快捷键        

  • 小海 / 设计师

    2024-01-13 16:27


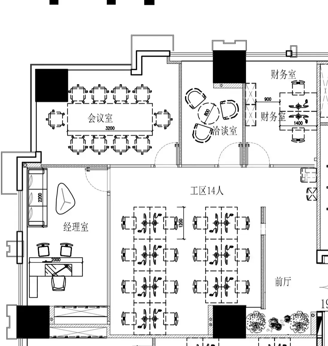
    #办公智造#

    1F整体设计概念从水木明拓氢能科技有限公司的性质出发,打造科技未来感的空间,以灵动的曲线元素为基础型态,呈现出一个流动感的核心空间,凸显企业科技形象。
    2F为员工办公层,设计师以开放、平等、自由等关键词展开,摒弃繁复的装饰,保留利落的线条和简约的结构,寻求将空间缩减到最基本的形式去满足“人”对空间需求,简洁、简约、回归“少即是多”的设计理念。


  • #办公智造#

    完工拍摄        

  • Mr.Li / 设计师

    2024-01-13 01:12


    #办公智造#

    办公室实景图        

  • Mr.Li / 设计师

    2024-01-12 18:06


    #办公智造#

    办公室实景图        

  • Mr.Li / 设计师

    2024-01-12 18:02


    #办公智造#

    办公室实景图        

  • 毛均峰 / 设计师

    2024-01-12 10:05


    #办公智造#

    北启生物办公室设计        

  • 格格巫 / 设计师

    2024-01-12 10:01


    #办公智造#

    办公室实景图        

发直播

公开