当前位置:首页 > 设计圈
  • 毛均峰 / 设计师

    2024-01-14 16:20


    #办公智造#

    空间大面积运用了原木饰面,从地到墙再到顶,大胆的手法颠覆了之前的传统概念。木质前台,旱景点缀,logo字体打破传统手法,艺术呈现
    软装的搭配让整个空间的品质感瞬间提升,无论是家具、灯具还是挂饰摆件,设计师都非常用心的一一把关筛选。就连LOGO墙的彩色英文配色都是由设计一遍又一遍反复推敲的过程。
    原木色、优雅白与神秘灰的色调,不仅表达了一种柔和、平静、和谐的美,还营造出一个整洁平静的内部空间。运用在办公室装修当中,能够凸显公司独有的气质。一个完美的项目作品呈现,设计上不仅要有创意,施工过程也是重中之重。两者之间也是相辅相成,正是由于施工管理对细节的要求苛刻至极,才能完美打造出与设计理念一致的作品。
    木质地台形式,别具一格的接待区域,功夫茶设在地台连接接待区,细节提升品位        

  • 毛均峰 / 设计师

    2024-01-14 16:17


    #办公智造#

    行走在其间,大数据的概念从抽象到具体的视觉感受,数据信息投射在墙面。设计手法既打破了写字楼层高的限制,模拟一个无边界的数字空间,也传递了企业的大数据营销服务概念。        

  • 刘君雅 / 设计师

    2024-01-14 13:47


    #办公智造#

    位于4-5楼的空间,被预留为集企业会议培训、客户招待、员工之家、灵活办公为一体的多功能场域。设计团队悉心分析了以北上广深为代表的商务接洽文化和社交肌理,并以此为背景展开软装设计。包括着重用木质、玻璃、大理石等材料的装饰,以及体块简洁、线条流畅的家具布场,来形成一种克制又精致、多元且融合的空间氛围体验。这样的结果既兼顾了当下人们对低调和出挑的双重期许,也恰到好处地将该企业“良好感受为一切标准”的理念氤氲而出。        

  • 刘君雅 / 设计师

    2024-01-14 13:46


    #办公智造#

    色彩是感情的语言,根据不同色彩可以诱发不同的情感。关于如何为标准办公层的使用者们创造和谐、放松、自在、和而不同的办公氛围,设计团队决定以色彩为空间溯道。坚韧的红色、冷静的蓝色、活力的绿色、年轻的橙黄,以饱含情绪的氛围感分别为6-18楼打造出符合工作属性和员工性格的空间场域。当人们去到不同的办公楼层时,会神奇地发现不同于其他办公室统一的商务痕迹,这里的办公区好似一座座彩色的院落,一方水土一方人。        

  • 刘君雅 / 设计师

    2024-01-14 13:43


    #办公智造#

    舒适的办公环境助力高效办公,通透光滑的玻璃幕墙将外部环境的景色引入了室内空间,所以设计团队借助廊柱自然形成的圆环定制软装家具,用恰到好处的间距、停顿、留白,在每个空间恰如其分地置入和谐轻盈的休闲场域,关照伏案办公后的休整,也适应并灵活应对其他工作场景的需求。        

  • 刘君雅 / 设计师

    2024-01-14 13:42


    #办公智造#

    位于顶楼的总裁管理层就在这一理念之下,用材质与肌理的不同表现形式立序空间的简、静、韧、达,创造自然、人、空间三者之间的灵魂共振。        

  • 小筑 / 设计师

    2024-01-14 11:34


    #办公智造#

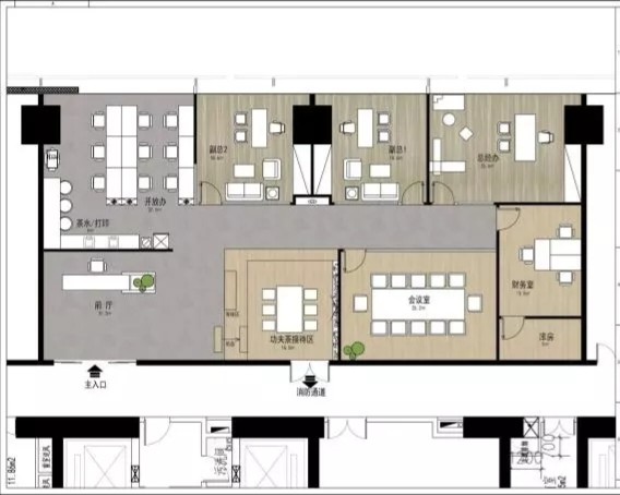
    图纸细节        

  • 小筑 / 设计师

    2024-01-14 11:28


    #办公智造#

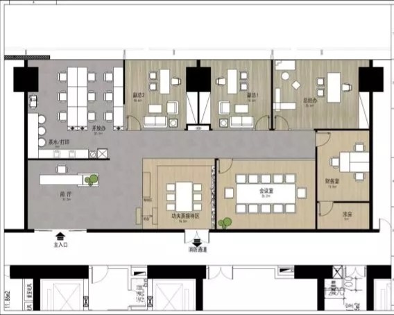
    图纸细节        

发直播

公开