当前位置:首页 > 设计圈
  • David / 设计师

    2024-02-16 10:53


    #办公智造#

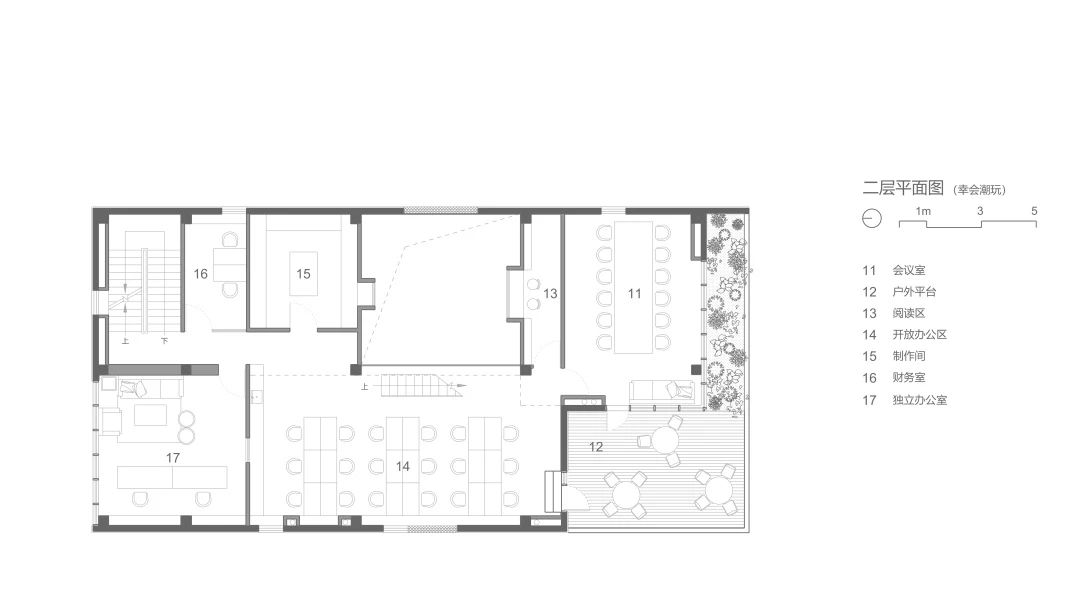
    多功能区作为核心空间,既是展厅的延伸,也是办公人员对外洽谈、休息和交流的场所,丰富的办公场景在此间自由展开。一部轻量化的折板楼梯悬置在二层开放办公区,作为两家公司员工互通往来的便捷路径,透过内庭亦可望见一隅。三个画框般的窗洞围绕在多功能区上方,可作为潮玩展示橱窗,也能让沿楼梯上下、在窗口边工作、读书的人自然入画。        

  • David / 设计师

    2024-02-16 10:52


    #办公智造#

    设计图纸        


  • #标准施工#

    墙身节点图        


  • #标准施工#

    墙身节点图        


  • #标准施工#

    墙身节点图        

  • Mr.Wang / 设计师

    2024-02-16 09:44


    #办公智造#

    现代艺术办公空间        

  • Tina.baby / 设计师

    2024-02-15 21:36


    #办公智造#

    通联支付四川分公司 ‖ 步入其中,首先映入眼帘的是简约大气的前台区域。通联支付的logo由四种明快色彩组成,在内部办公空间和多功能区域的设计中也巧妙地运用了这些色彩,穿插跃动在利落地线条之间,打造企业归属感。        

  • Tina.baby / 设计师

    2024-02-15 21:35


    #办公智造#

    利落线条间跃动的明快色彩        

发直播

公开