当前位置:首页 > 设计圈
  • 夯大力 / 设计师

    2024-02-16 12:39


    #办公智造#

    以精简、纯粹的建筑设计手法构建空间,在保证使用的基础上,舍弃复杂繁琐的装饰结构,采用极简设计手法,让艺术元素与空间相相融合,打造全新的与时代平行的办公体验。
    针对年轻化、时尚个性的性别与年龄趋势分析,对色调的控制也需要倾向于轻成熟的中灰度。基于办公空间需要的多形态及场景组合,独处与讨论,安静与喧闹,坚硬与柔软,设计师希望在矛盾中寻求统一。整体空间在材料使用上较为克制,每一种材料背后都希望指向一种独特的空间关系和与之对应的美学构筑。
    三条灯带烘托空间氛围,主灯轨道占领空间C位,简单的色彩过渡,用超主色系的色彩范围提亮会议空间亮度,自由之地为共融共通所在以开放、可扩展、替代、封闭、已知非同质化的空间组合不再服从于某种结构而由 [我们]互动、建设、生长、成形        

  • 小麦庆 / 设计师

    2024-02-16 12:02


    #办公智造#

    办公空间中的蓝        


  • #办公智造#

    光影.线条感十足的办公空间赏析 ‖ 前厅的设计墙面采用钻石切割面设计手法,进口涂料一直从背景延续到会议区,前厅与办公区也设计了通透三角空间,线型灯光也是从前厅一直延续到会议区,增强线条感和统一性。
    靠墙的卡座前面整面墙的木饰面,后期可以作为员工活动栏、公告栏,开放式办公区和水吧是相连的,通过金属书架作为通透隔断,其实就是为了释放整体的空间,让空间与环境与人融合,让员工对公司有足够的归属感,毕竟一个好的环境对员工的工作氛围是很关键的。
      老板办公室是按照灰调设计的,本身老板很年轻 所以我给的建议是高冷范,老板对风水有些讲究,必须选一副山水画,所以我们在设计的时候也是为了融合这幅画在柜子的展示设计上用组合柜的形式来设计来达到我们想要的设计想法。        

  • 王高君 / 设计师

    2024-02-16 11:15


    #办公智造#

    在安定沉静中,借助自然光线的投射聚焦,演绎着灵动纯粹的办公氛围,清晰的空间线条引领着我们迈出节奏步伐,一起奔赴着同一个目标。
    办公空间共分为两层,每一层都酝酿着不同的故事,在整体空间中,每一个小空间里,都有着独一无二的镜头;借助5.4米的高层优势,采用钢构搭建了一个夹层,延展开故事情节,让办公空间展现无尽想象,发散出每个人的设计思维。
    山有小口,仿佛若有光,编织吊灯的衬托,使墙面小口更加隐匿,不同角度的设计美感,细腻的现出本身容颜;考虑到二层原始空间结构,所以部分区域选择不吊顶,保留住梁最初的状态,将办公室现代工业风毫无遗漏的展现出来,但在设计中却摒弃了工业风常见偏冷的色彩方案,结合现代简约时尚潮流,相向取其精华,展现出清新⾃然、随意轻松的⼯作环境。
    极具创意的艺术品与流动的光线凝聚空间中的个性艺术,与时俱进的时尚潮流搭配上最原始的工业吊顶,渲染结构与造型的极限效果。
    有着音乐律动的家具色彩搭配,以轻快明了的着色快速呈现,但始终秉承着以工业风为主的装修元素;色彩贯穿着空间主体,打破空间垂直构成关系,对每个空间的设计搭配都精准把握。
    裸露的原始建筑水泥顶,展现出淋漓尽致的原始美,将所有管线隐藏于局部的悬浮吊顶内,悬浮吊顶之间的管线用工业不锈钢包裹,使得整个顶干净利索,既保留了工业风的粗犷又微微透露着现代风的细腻温柔。        

  • 王高君 / 设计师

    2024-02-16 11:11


    #办公智造#

    每天窗外、屋内,都上演着不同的生活故事,即使轨迹重叠,但所奔赴的却各不相同,其实,我们也是别人眼中的画中人。
    加大白色留白,给予每个人的空间想象,放纵着不被束缚的设计思考,为所坚持的努力,献上一份满意的方案。        

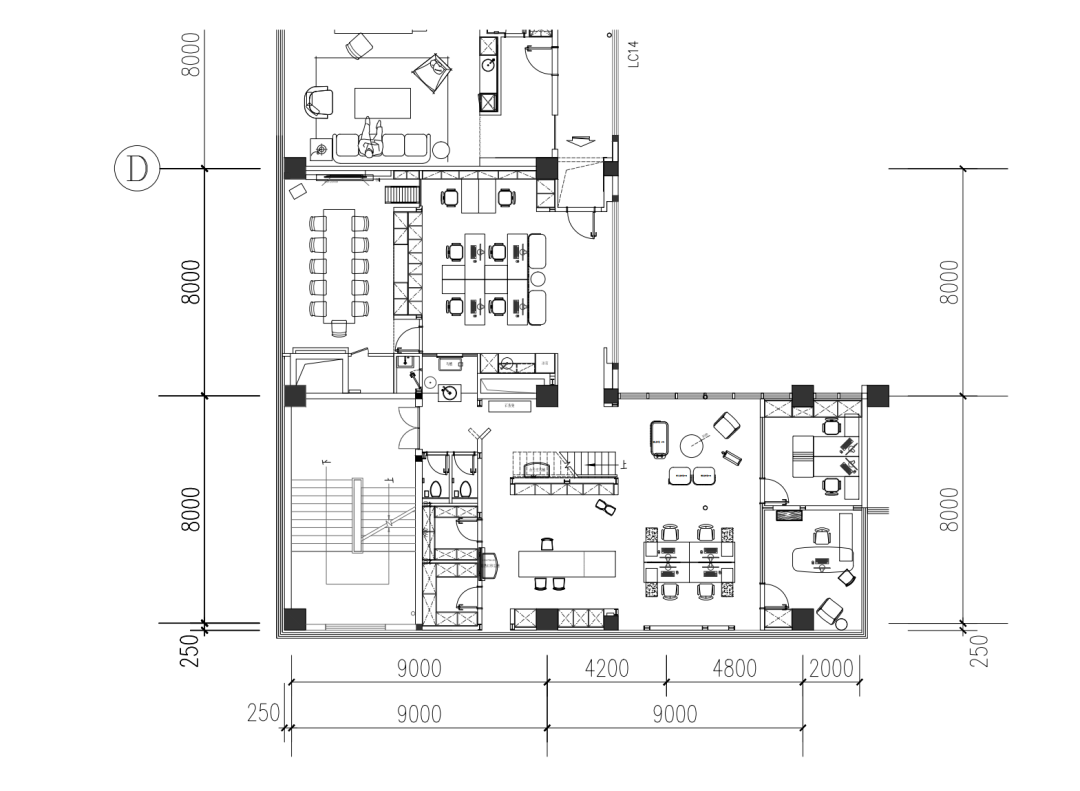
  • 王高君 / 设计师

    2024-02-16 11:09


    #办公智造#

    平面布置图        


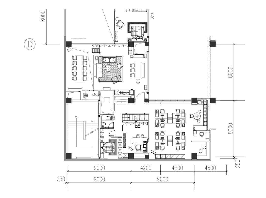
  • #办公智造#

    办公空间设计        

  • David / 设计师

    2024-02-16 10:55


    #办公智造#

    设计以“连续的风景”为灵感,试图打破办公空间的物理边界,将工业文明痕迹与忙碌的日常工作景象结合,创造出能够激发想象力的开放式办公环境与灵活多变的公共空间。
    改造后,东侧新增一挑空多功能区,其外立面下半部分由实墙改为落地窗,上方原始开窗则被封闭起来。开洞位置的改变在保证室内光线充沛的同时,与窗外花园景观的视觉联系也更加紧密。南向户外平台的矮墙被敲掉后,换上了玻璃栏板,人坐在露台上可以获得开阔且连续的视野,看火车徐徐驶过,享受片刻闲暇时光。        

发直播

公开