当前位置:首页 > 设计圈

  • #办公智造#

    开放办公区的光照采用线性光源与落地窗的通透感相辅相成。这一设计有效避免了原本只有3.4米的层高带来的空间的压抑感,并保留了大空间延伸出的视野开阔性。沿着空间轮廓及内部流线,我们将绿植渗透至每个角落,绿景弥散平衡了其中的硬朗感,增添空间情韵同时营造出深入“室内园林”的景观效果。办公的核心设计,是要进行恰到好处的“留白”。在为数不多的色彩与装潢中,在打破局限、创建趣味与高效的同时,予人以“放空”。即使身处钢筋水泥的城堡,也可回归“灵性与人性”的和谐。        


  • #办公智造#

    空间的艺术来源于恰到好处,办公空间无非是待客、会议、办公、茶饮休憩;设计师尝试颠覆传统设计思维,在空间上做减法,删除所有冗杂,发挥空间的使用价值;强调“人与自然”“人与空间”的情感交互,城市与自然共生,给予源源不断的灵感。        


  • #办公智造#

    在创意园区的工厂环境中构筑一个新的办公空间,我们希望保留它原来的印迹并赋予它新的活力,空间内置出多个体量,在原建筑和墙体之间围合出新的场域,空间之间保持流动性,立面黑白灰作图底,通过留白转折剥离拉开层次,将室内氛围变成一种独立的元素。场地空间与园区厂房的肌理进行对话,注重空间打造和界限的融合,让人对空间的理解有新的启发。
    由工业厂房改建,保留原厂房的预制混凝土板,融入美学理念,简约高效、有质感、收放自如。
    入口的戏剧感始于一个围绕木盒子的狭窄通道,需经过廊道转折后进入内部空间到达接待区,行进的过程中迸发出新的空间情绪。暗藏卫生间和储藏间的木色盒子与吧台形成联动,黑匣子的楼梯,二楼悬挑在吧台上方的玻璃盒子,几个看似随机错落放置于空间中的体量,实则为精心放置,体量外部办公区、接待区和材料间与体量内部前台、卫生间、楼梯及会议室,内与外关联共生。
    注重自然和细节的打造,这里弥漫这淡淡的自然气质,让亲和力倍增,除去浮夸的吸睛装饰,仅靠简洁的造型和板材的质地,就成为空间中不可或缺的存在。
      


  • #办公智造#

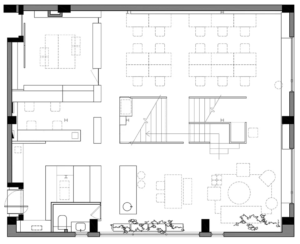
    大面积使用桦木板,在墙板柜门上形成统一化的视觉语言,原始结构和顶面白色乳胶漆形成空间的留白。接待区是办公室中唯一挑高的区域,配合原始厂房的结构和肌理,营造轻松和随意的氛围。休息区的大树,打造植物和空间的共生体,一个舒适的有氧循环系统。        


  • #办公智造#

    在都市的喧嚣中,设定一份别样的办公情境,满足现代人对情怀的个性化追求。南向墙面的整面墙体的书架一直贯穿到二楼,一楼窗户做成飘窗,二楼栏杆。黑匣子解决空间的垂直交通,楼梯以下的空间置入了储藏间,内向景观等,作为整个空间的大体量,除了楼梯入口的开孔,在几个侧面用分割和穿透的方式让黑匣子在不同角度呈现出一定的变化。        


  • #办公智造#

    内容上聚焦功能,阐释美学的当代设计表达。一楼上来的楼梯内部为双向走向,书架造型分流的同时隐喻知识的支撑力量。二楼休息通过柜体的围合创造出一个相对独立的区域。在办公环境融入造型设计,打破普通的空间体态,开阔的空间和不拘一格的建筑结构,带来轻松、自然的体验感。        


  • #办公智造#

    在局限的居住环境中构筑一个新的办公空间,我们希望它保留原来的印迹并有新的活力,空间内置出两个体量,在与原建筑尺度和墙体位置相互之间围合出新的场域,空间之间保持相互流动性,立面黑白灰作图底关系,通过留白转折剥离拉开层次。
    入口的戏剧感始于一个围绕木盒子的狭窄通道,需经过刻意曲折的廊道多次转折后进入内部空间,行进距离的时间过程中摆脱居住楼的固有环境印象并整理出新的空间情绪。        


  • #办公智造#

    工作区占用最开阔的范围,围绕工作区设置辅助功能。我们把整个室内天花原有的白色抹灰铲除,暴露出建筑的混凝土框架和顶板,而新介入的白色L形墙体,强调区域围合,我们在办公区搭建了一个3.6m的长桌贯穿至下个空间。
    办公区灰白是界面基调,黑色柜体作为空间体块支柱分隔开敞区水吧和会议室,储物收纳也隐藏其中。会议室以黑盒子为背景依托,白色柜体穿插联系水吧和会议室,形成视觉穿透碰撞出洞的光圈及缝隙美学,空间随光递进,阳台开放连接会议和独立办公间。        

发直播

公开