当前位置:首页 > 设计圈

  • #办公智造#

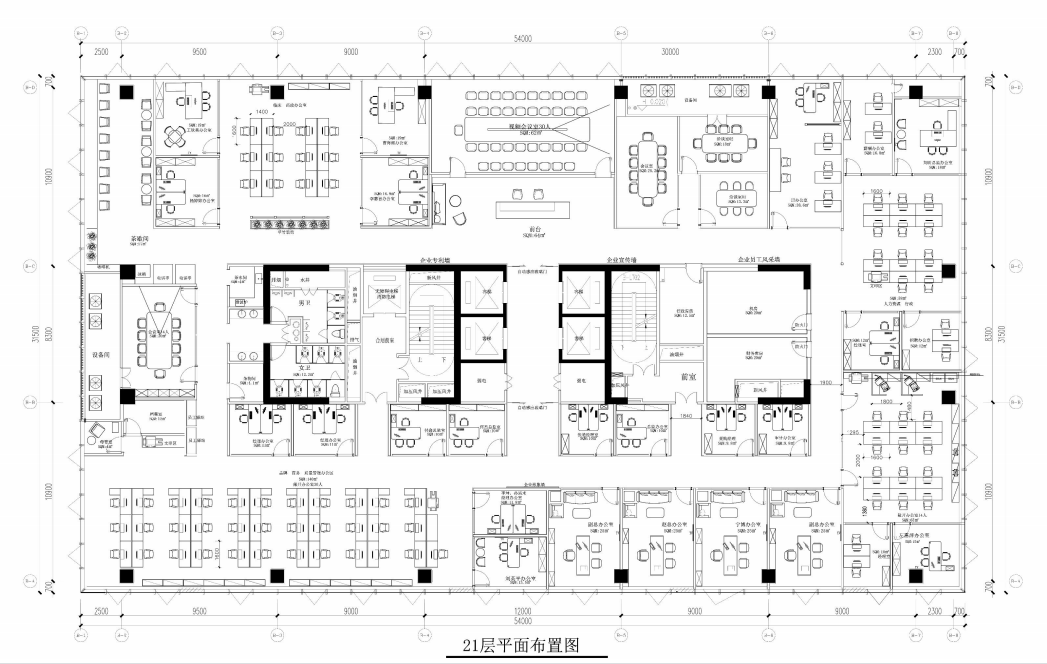
    设计方案体现深圳微芯生物科技股份有限公司以人为本的基本理念,以现代化、国际化的设计思路。设计风格以简约为主,注重細节,让感受到尊贵感,宾至如归。室内环境氛围应体现出沉稳、大气、现代、亲和的效果表达。设计方案应具有一定的前瞻性,放大品牌視觉的冲击力,注重用户体验感,凸显企业的文化内涵。        


  • #办公智造#

    公共区木纹铝板,是将金属复合板基层处理后与环保装饰膜复合成型的一种新型材料。该产品具有防火、防潮、抗菌、0甲醛、耐刮擦、易安装、防霉等特点,其饰面质感真实,型面肌理逼真且花色多,在广泛使用木饰面的内装及外装领域有很强的竞争优势,非常适合在办公空间中运用。
    开放办公区主要为木纹搭配白色和灰色,配合温暖柔和的灯光,整个空间在轻松的氛围里显得大胆有活力。        

  • 张小葵 / 设计师

    2024-02-17 18:30


    #办公智造#

    设计师巧妙地将音律元素与设计融为一体,鲜艳而深沉的红色LOGO犹如音符般跃动,为空间注入了一抹热烈的活力白色的声波图案仿佛在共鸣,散发出一种生动的音律感展现出独特而引人入胜的设计理念!
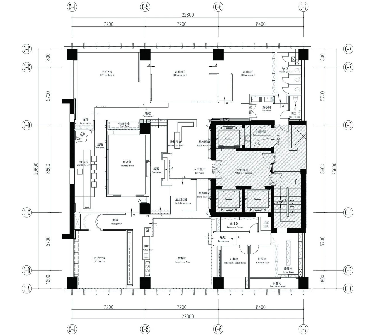
    茶水间空间内布置有舒适的沙发和软垫椅子,顶上配有吸音毡以灰色作为主色调,用最具力量的红色来点缀木质家具和植物装饰营造了一种清新的氛围让办公室不再只是疲劳与紧张,而是充满温馨与生活的美好所在。
    工位区采用半包式,保证隐私性和舒适性设有一个小巧而雅致的茶水角,体现了公司的人文关怀每个工位都配备了现代化的办公设备,确保员工能够高效地完成工作。
    会议区的多媒体屏幕的智能配置为会议提供了高度的技术支持透明隔音墙的设计使空间更加开放流线型的灯带保证亮度的同时,展现出一种流畅的美引人注目的红色座椅激发了人的创意和活力。
    领导办公室采用中式风设计,充满了深沉而典雅的氛围融合了传统中式元素和现代工作环境的需求沉稳的木质家具和红木书桌展现了传统文化的底蕴中式风格的对称美学,使得办公室在视觉上更加平衡和谐!        

  • Diana / 设计师

    2024-02-17 18:10


    #办公智造#

    于是我将基本的功能做了分区,过渡空间把办公空间与会客空间分开。有意的通过一些空间与结构关系将动线拉长,以便增加流线步数。
    最初构思此案时,我对空间的探索性与引导性做了实验,尝试用空间去传递想表达的心理与行为暗示,包括邀请,仪式,偷看,意外,层次,穿插,虚空间,光。        

  • Diana / 设计师

    2024-02-17 18:08


    #办公智造#

    对艺术家James Turrell的光一直都有学习,思考如何将艺术作品融入到空间,成为空间的一个组成部分。对于空间吊顶与墙面局部的特殊处理,由于结构的改变,光的融合度也产生了变化。利用两层光与光膜的实验,让一种颜色的光包住另一种颜色。
    有一处神秘的空间,在整个大空间中想私藏一处收藏与私密的会客室,思考来源是禁酒令时期的机关藏躲。我们采用的是机械结构结合一扇定制的半圆形的门,处于空间的尽头,带着一条竖向的光。人们不知这扇巨型的人半圆门通过智能控制,缓缓移动,一处私密空间藏与空间的背后。        

  • Diana / 设计师

    2024-02-17 18:06


    #办公智造#

    关于结构的学习,一直以来对建筑空间特别崇拜与向往。雕塑性和立体性的空间对我而言更具有吸引力。对于空间表现来说,我更希望是有关于心理由浅入深的层次表达,通过结构关系的引导,让空间与空间过渡变的更有趣。        

  • Diana / 设计师

    2024-02-17 18:04


    #办公智造#

    建筑与空间的幸福感和幽默感是我一直在追寻的方向。这个世界不缺乏有意义的事,却缺乏有意思的事!        


  • #办公智造#

    米修设计办公室        

发直播

公开