当前位置:首页 > 设计圈

  • #办公智造#

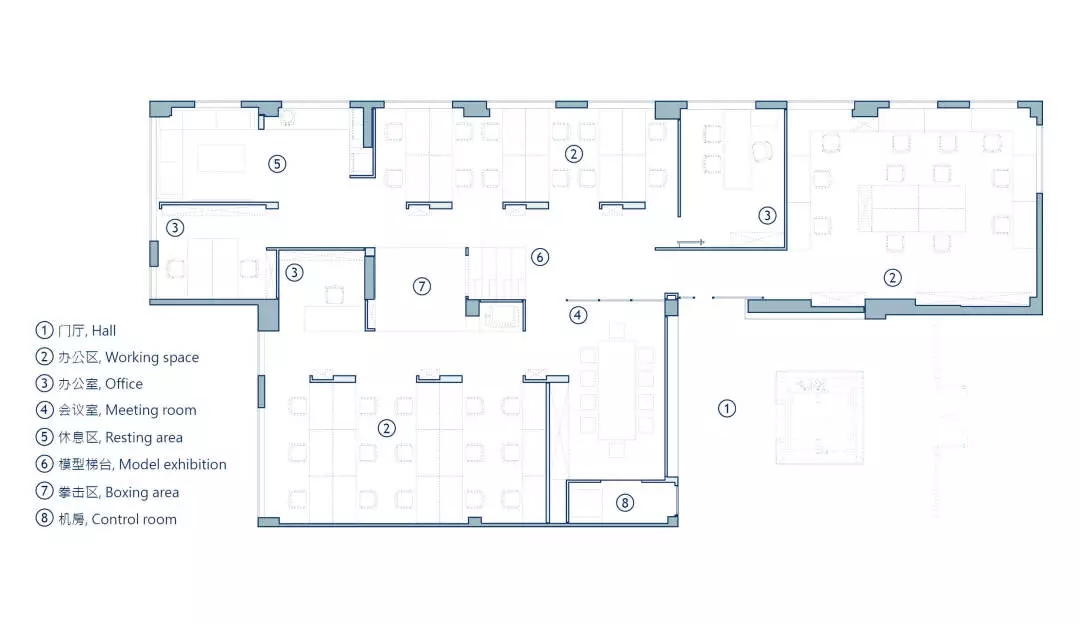
    项目是旧建改造,位于科学大道岭南技工园区里面,项目占地面积300㎡。内部功能分区包括:前台招待区、会议室、休闲区、公共办公区、领导办公区等。
    从入口进来的前台区,正面十分简洁主要是通过三块大小不同、错位拼接的三块显示屏作为电子展示。左边是过道通向会议室和公共办公区,右侧是等候区。等候区是摆放明式家具体现出线条感和设计风格。
    公共办公区右侧是一个大型的榻榻米,中间是三块大型的电动台面,可以根据使用者需要不同的坐高调节。两侧的花格屏风是活动的,中间雕刻了企业logo,敞开的时候可以用作茶歇休闲,关闭后还可以用作会议洽谈。
    办公区的桌椅也是实木家具,给人非常强烈的中式感觉。不仅有木材的柔和感,还与传统的办公不同。        


  • #办公智造#

    水吧台的做成一个小品的效果,吊顶做了一个木屋顶,四角一根圆木柱子落地,底下还有柱础,就像一个凉亭,主要是给内部员工使用,这里每天都有茶歇和活动。
    业主特别喜欢中式文化,也有很多各式各样的雕塑、艺术品收藏。在选择设计风格上我们选用了新中式,浅色的木纹和简约的搭配效果。
    领导办公室风格各有不同,有通透的玻璃隔断也有实墙分隔,有的是跳跃的色彩,也有的是实木博古架墙面。        


  • #办公智造#

    实景(1)        


  • #办公智造#

    实景(2)        


  • #办公智造#

    ORIA的办公室设计出发点源于一个时间+空间的体验。在不同的时间里,我们可以解构、重组、甚至于打破固有的空间属性。私密与开放、屏蔽与交流、停留与流动。我们通过不同的使用途径来表达这一概念,用建筑的空间去表达时间的当下性和时效性。        


  • #办公智造#

    展廊模式 / ORIA展廊
    建筑师的工作其实是一项关于时间和空间的实验事业。通过无穷的草图到概念到实施,脑海中虚拟着各种人、物、光线、空气在建筑物中的状态,草图纸和电脑硬盘中留下了所有关于设计这项过程的记录,建成后的那些建筑物提供了一个关于建筑师的思想所呈现出来的实物或场所供使用者体验并留下使用者在其中生活的痕迹。最终这些记录和痕迹会成为建筑师继续从事这项工作的思想。这是一个递进的无穷循环的过程。        


  • #办公智造#

    办公模式 / ORIA办公空间
    用一组多重曝光叠加的照片表达使用者在其中参与不同活动时的空间状态,记录关于ORIA建筑师工作生活的痕迹。        

  • 格格巫 / 设计师

    2024-02-21 22:30


    #办公智造#

    办公室实景图        

发直播

公开