当前位置:首页 > 设计圈
  • 毛均峰 / 设计师

    2024-03-09 07:20


    #办公智造#

    律师事务所办公室设计        

  • Diana / 设计师

    2024-03-09 06:55


    #办公智造#

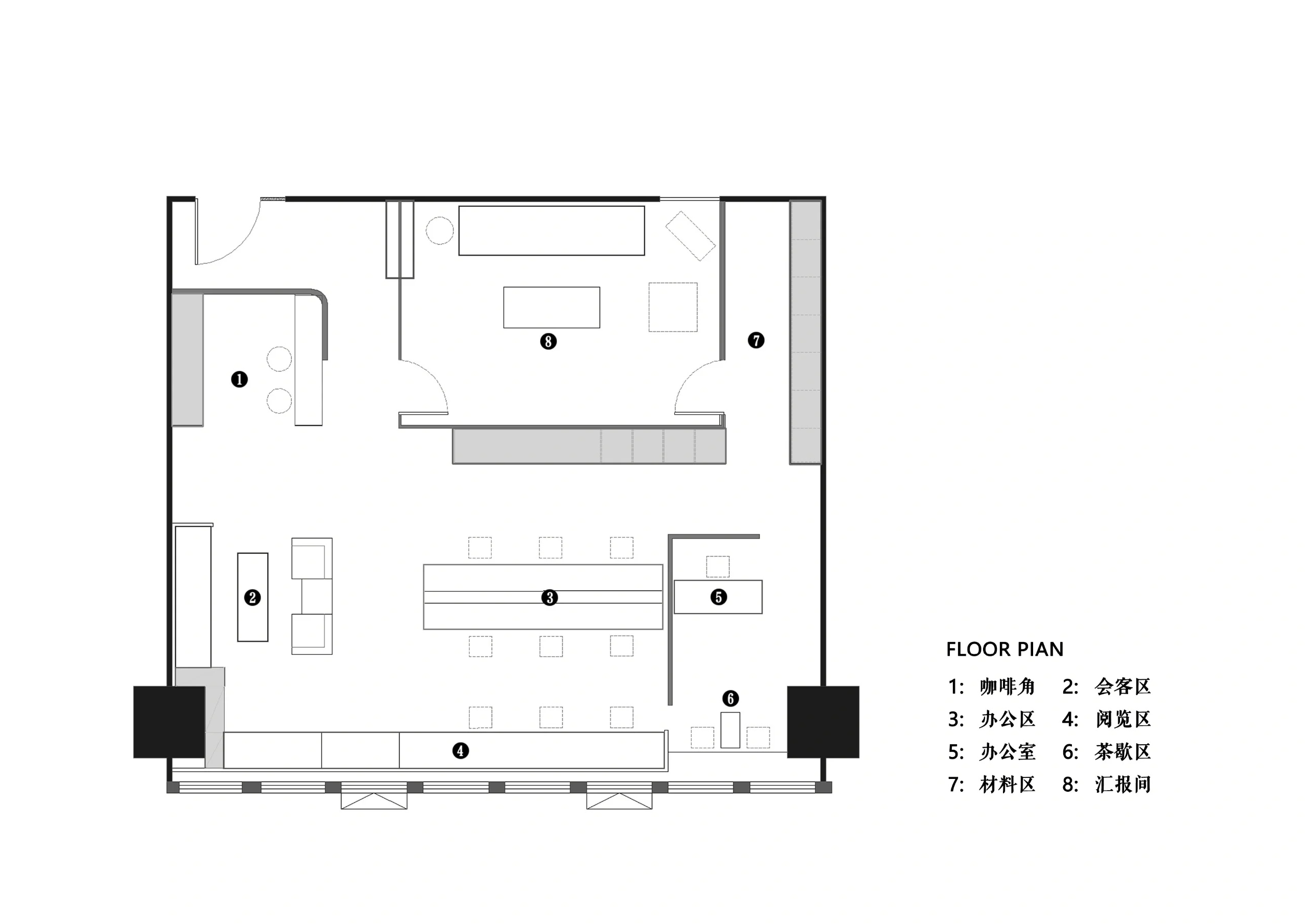
    精致办公空间(1)        

  • Diana / 设计师

    2024-03-09 06:53


    #办公智造#

    精致办公空间(2)        

  • 乌拉西 / 设计师

    2024-03-09 06:43


    #餐饮美食#

    完美展示        

  • 王YANG / 设计师

    2024-03-09 06:33


    #办公智造#

    工作室办公室设计        


  • #办公智造#

    办公空间实景图        


  • #办公智造#

    在平面布局中整合原始柱体结构,干净利落的线条勾勒出金融空间的高级感。接待大厅完全开敞互联,功能多变,除了可供接待访客及日常休息,与门厅连通后亦可容纳团队聚会及活动。
    洽谈室大面积落地窗,让自然仿佛近在咫尺,绝佳的视野与采光,绿植以舒展的姿态连接室内外,共同创造出丰富灵动的内外关系。空间使用者被最大程度地引入自然中,让树叶婆娑和鸟鸣雎鸠重塑人们的空间感受。
    中庭挑空空间作为前厅的焦点空间,月洞门隔断建立视线关联、增加竖向空间层次,以当代设计语言诠释东方审美。隔断不作为功能限制的边界,而是作为介绍的边界,将即将遇见的事物与环境片段以艺术的方式展现出来。        


  • #办公智造#

    楼梯为载体,形成了一条串联起一至三层的垂直动线。楼梯下方的造景引人注目凝神,以情绪引导为空间场景的转折作铺垫。玻璃轻盈的漂浮感,使其呈现出光感通透与澄澈的高级质感。
    简约现代的开间布局,宽敞开阔的待客区域层次,既是办公空间亦可承载社交空间属性,颠覆了传统办公室的单调氛围,艺术的细节精心融入日常的舒适之中,呈现空间的奢雅格调和身份的质感,营造一种艺术空间的办公体验。        

发直播

公开