当前位置:首页 > 设计圈
  • 木子李 / 设计师

    2024-03-10 08:13


    #办公智造#

    办公室实景图        


  • #办公智造#

    吉树办公空间        


  • #办公智造#

    精致如花办公空间        

  • 椿楸 / 设计师

    2024-03-09 23:40


    #办公智造#

    规划最大限度地增加了私人办公室的数量,以满足高管的需求 - 其大部分员工都是负责国家收购和管理的人员。落地窗为周边办公室提供充足的阳光,而室内办公室需要更多创造性的解决方案来扩大自然,包括在双层走廊中引入洗墙灯和玻璃墙。此外,地板和天花板饰面从走廊延伸到办公空间,营造出开放、通风的效果。
    半私人套房设有开放式工作站,可容纳人力资源和会计部门。除了两间董事会议室和行政酒廊空间外,员工还可以使用带健身器材和淋浴的健康套房。楼下有无数的餐饮场所,两个小茶水间主要作为员工的饮料中心。量身定制的优雅设计理念从现代西装中汲取灵感,利用纹理和分层材料来增加深度,传达品牌的客户体验和对细节的关注。        


  • #办公智造#

    该办公场所的核心特色是协作中心,这是一个多功能空间和大型集会空间。每层楼都配置有小型协作空间、一个游戏区,以及用于专注工作的静谧的“庇护所”。整个空间呈现出一种精致的工业感,例如防锈处理的材质表面、玻璃砖、混凝土砖,这些元素与霓虹灯图形,形成趣味性的对比。        


  • #办公智造#

    办公室和露台上都装点大量丰富的植物和绿色表面,这些设计元素让整个空间,更加充满活力和清新时尚的气息。总的来说,混合型的办公场所,高效协作,功能齐全,空间利用率更高。        

  • 张小葵 / 设计师

    2024-03-09 08:19


    #易住美宅#

    期待落地        


  • #标准施工#

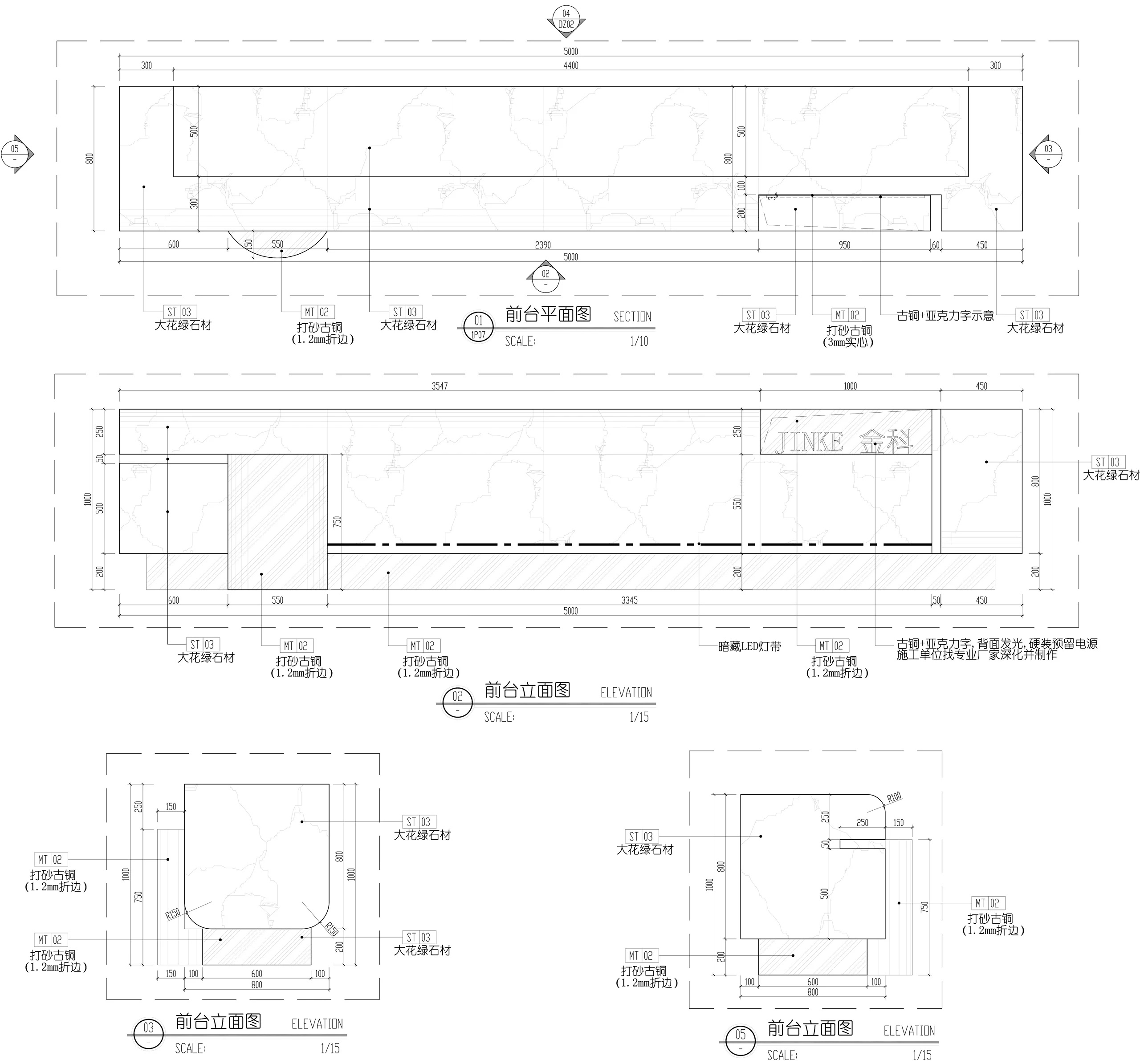
    接待大厅        

发直播

公开