当前位置:首页 > 设计圈

  • #办公智造#

    所有的空间划分都由收纳柜体完成,保证了小空间办公动线的便利性,贯穿整个空间东西和南北两条轴线的L型地台把空间所有分布的功能紧密的联系在一起,使得空间秩序整齐,空间功能却又能够界定清晰。北侧较弱采光安排了物料展示、会议、厨房以及如厕功能,南侧理想的采光全部留给了办公人员及参观客人,位于接近中心的吧台可以辐射服务到内部人员及空间访客,做到动线最优。
    位于空间西侧的落地玻璃配合竖向百叶帘形成的光影序列成为会客厅的焦点,与水吧立面的格栅物理结构两者相互渗透获得更深刻的秩序体验。
    西厨和客厅的横向布局让沙发上的客人与在吧台做茶水服务的主人有了良好的互动情绪和情景带入性。龙头与岩板部分的撞色让沉寂的大地色系有了盎然的生机。
    南侧入口玄关处是地台步道,步道尽头的镜面随着参观者步行深入过程中发现这无尽走廊的“小秘密”,辅以落地窗的光影序列,理性之美油然而生。
    过道顶棚利用原始梁的高差形成了连续体量,靠软膜天花造就明暗的交替。虚实之间的秩序强化了行走在过道上的仪式感。
    南侧立面的四扇固定玻璃呼应着软膜天花的序列,加上柜体,以及空间中所有的方形序列,虚实变化、大小不一的盒子体块却让空间的设计语言高度统一。        


  • #办公智造#

    150㎡的办公场所让“小中见大”成为了设计的核心议题,除去会议、物料及卫生间的实墙之外,所有区域划分及界定全部采用虚实结合的定制柜体来完成兼收纳功能的隔断,保证区域之间的相对私密又能保持视觉在空间中的延伸。
    入口处的户外旋转楼梯可通向屋顶花园,雕塑感满满形成一道户外的装置景观。        

  • 晓歌 / 设计师

    2024-04-04 11:13


    #办公智造#

    打造成一个融合未来感、科技感的新型办公空间。设计中以蓝白米色为主色调,以大理石、高透玻璃、亮面金属、部分木制品等材料组合点缀,整体呈现稳重而不失精致的空间品质。
    大堂纯白明镜让人一进门就感受到扑面而来的科技感,天花吊顶设计犹如行云流水般舒张自如,统一协调中又简洁有力。
    公司展厅为设计一大亮点,亦是展示宏微科技的长期研究研发出的独家产品。从智慧共享的概念出发,简洁大气的设计搭配先进的智能化配置,形成空间与人的智能连接。        

  • 晓歌 / 设计师

    2024-04-04 11:11


    #办公智造#

    办公休闲区域的设计充分考虑了高科技企业员工在办公室高度交流性的特点,灵活开放的空间满足各种功能需求,促进了公司内部的沟通融合也同时增强了员工的凝聚力和归属感。充分彰显了当代高科技企业的创意,探索了新型高科技企业面向未来发展的空间创意模式。        

  • Jason / 设计师

    2024-04-04 09:55


    #办公智造#

    前厅 通过对品牌文化的了解,“头道汤”养生之道系列产品源于自然,取之于自然用之于自然,以更自由更自然的方式释放空间,从而觅得心灵与精神的松弛。
    开放办公区  增加休闲服务空间,提高空间服务属性的体验升级、提升视觉、触觉、感觉舒适度,更新对「新的 生活工作方式」的理解与认知。更能充分体现“头道汤”品牌文化的人文关怀 以匹配日益壮大的企 业发展。        


  • #办公智造#

    墙面的洞口开启,传统借景手法与解构主义结合,赋予空间更多的表达,同时也增加了走道的趣味体验,
    弥漫着温暖舒适自然光线的办公空间!        


  • #办公智造#

    现代的洗手间的设置不应该局限于藏而理应精致的露,所以我们在打造卫生间区域,更多的加入了定制元素,饰面的选择,极致黑色的台盆区打造,多动线环绕设计使得整个洗手间区域可以成为空间的重要组成部分
    柔和纯净的空间,坚持使用大面积木饰面,并贯穿始终,除此之外,根据不同的位置,采用玻璃等元素进行配搭,丰富视觉层次,同时保证空间的通透性,使得空间更加明亮,通透,柔和。并且采用均匀照射和漫反射光源,避免直线光射。设计团队希望打造一个没有边界,没有聚焦的场所,让空间无限延展下去,室内外慢慢融合起来,给使用者一个舒适的环境!        


  • #办公智造#

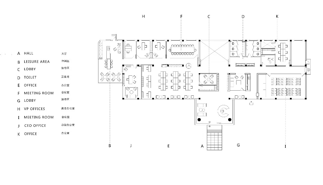
    平面图,The floor plan
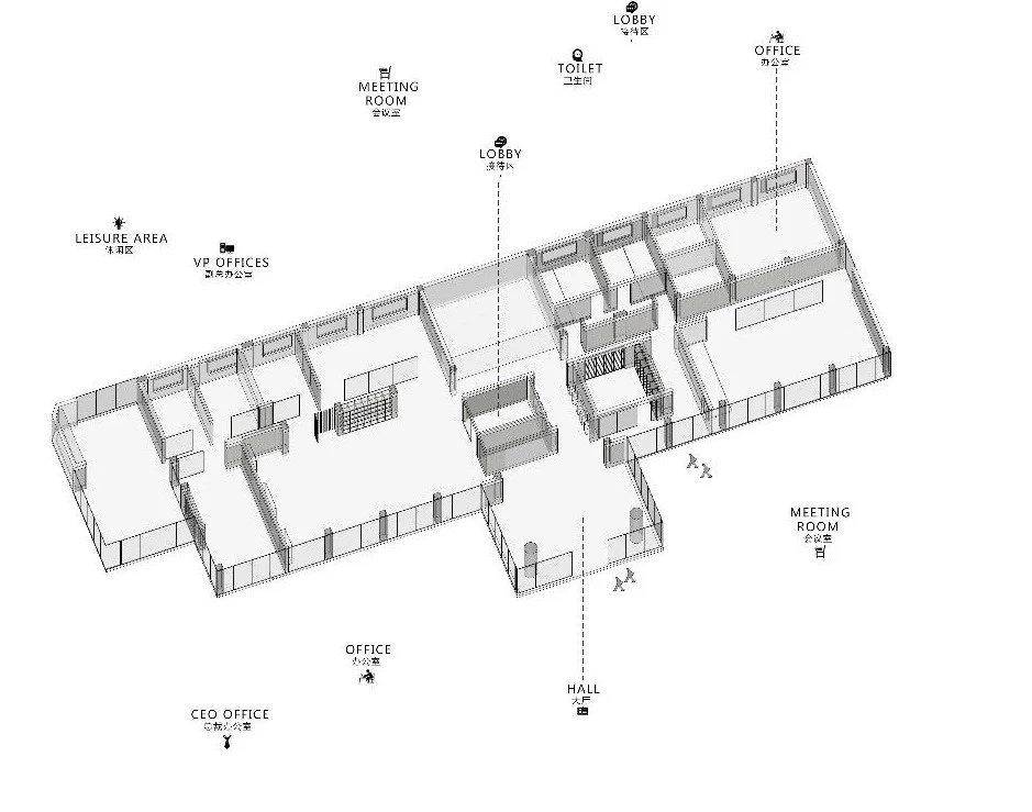
    轴测图,Axonometric drawing        

发直播

公开