当前位置:首页 > 设计圈
  • 魏馨琪 / 设计师

    2024-04-04 22:47


    #办公智造#

    考虑到会客洽谈的需要,和平时工作期间的些许小憩,茶歇区被设计成了一个多功能休闲空间,既可以是与客户沟通洽谈的空间,也可以是工作闲时的一杯咖啡和浓茶的地方。        

  • 魏馨琪 / 设计师

    2024-04-04 22:44


    #办公智造#

    空间的呼吸感渐渐接近于理想舒适的办公状态,恬然共生。        

  • 杨梅酱 / 设计师

    2024-04-04 22:41


    #办公智造#

    公司入口的接待区以围合式块面结构,使访客可以第一时间感受到公司的氛围与气质。
    在空间的开与合之间,打破内外之间的界限,注入新的呼吸,呈现优雅的空间氛围,以有限的空间,探寻无限的发展力。
    以中性色调为主,保有空间的温和与优雅,予人沉稳的印象。        

  • 杨梅酱 / 设计师

    2024-04-04 22:38


    #办公智造#

    实用、舒展是设计师思考办公空间的出发点。让使用者在浮躁里拥有一种精神上的剥离感,置身于平和的空间去应对复杂的工作。        

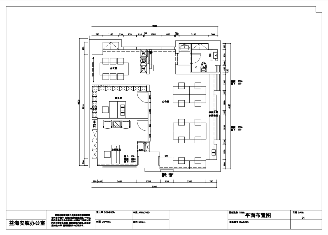
  • Tina.baby / 设计师

    2024-04-04 22:19


    #办公智造#

    原来的财务室为全暗户型,我们将南面墙体改为全透明玻璃隔断,西面和北面墙体设计半墙资料柜,即满足了财务凭证的收纳,也保证了会议室的采光。

  • Tina.baby / 设计师

    2024-04-04 22:18


    #办公智造#

    利用调整经理室和财务室后的空间,我们设计了一个小型会议室。会议室南面采用半墙玻璃隔断加镂空墙体设计,将南侧的自然光引进室内。我们将背景墙用弧面造型一直延伸到顶面。让空间有纵向的延伸感。原来堆放在玄关的饮水机,微波炉和电冰箱被收纳入会议室侧柜,除了开会之外,这里平时也可以作为员工的活动室。
       原来的卫生间里宽大的洗手台和马桶在一起,利用率非常低。现在将卫生间改为干湿分离,即方便了员工的使用,也满足了疫情期间消杀防疫的需求。     公司倡导健身文化,大部分员工都会在办公室放置健身用品,原来都堆放在开放式工位区域,显得非常杂乱。现在利用独立卫生间的内部空间定制了储藏柜,专门用来存放员工的健身用品。空间利用率大大提高,整体空间也更加整洁。        

  • 刘静 / 设计师

    2024-04-04 20:52


    #商业空间# 重庆松山医院

  • 杜飞 / 设计师

    2024-04-04 20:47


    #办公智造#

    企业会所        

发直播

公开