当前位置:首页 > 设计圈
  • 椿楸 / 设计师

    2024-04-06 00:21


    #办公智造#

    办公室设计        


  • #办公智造#

    弘文设计办公室        


  • #办公智造#

    本项目以“现代东方禅意”为设计理念,打破传统的办公空间,运用设计美学贯穿到办公空间,让员工感到宁静和安逸的办公空间。
    前厅空间以暖色调为基调,墙身原木色与禅意装饰画的结合,线条贯穿于整个室内空间,利用线条的交错穿插建立出富有韵律感和动感的活跃空间,具有浓厚的设计感,营造出安静、优雅的空间。
    以创意、舒适作为办公区设计切入点,让员工在工作时更加轻松,更富有激情,甚至能够激发思维,进而更高效的完成工作。
    空间运用现代东方禅意美学的形式,抛弃一切矫饰,将尊贵、私密、自然、精神滋养等理念贯穿所有空间,呈现出纯净高贵的意象之美。        

  • 王丹丹 / 设计师

    2024-04-05 17:30


    #办公智造#

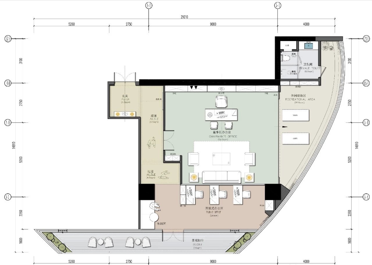
    大厅效果图及楼层方案        

  • MING / 设计师

    2024-04-05 17:13


    #办公智造#

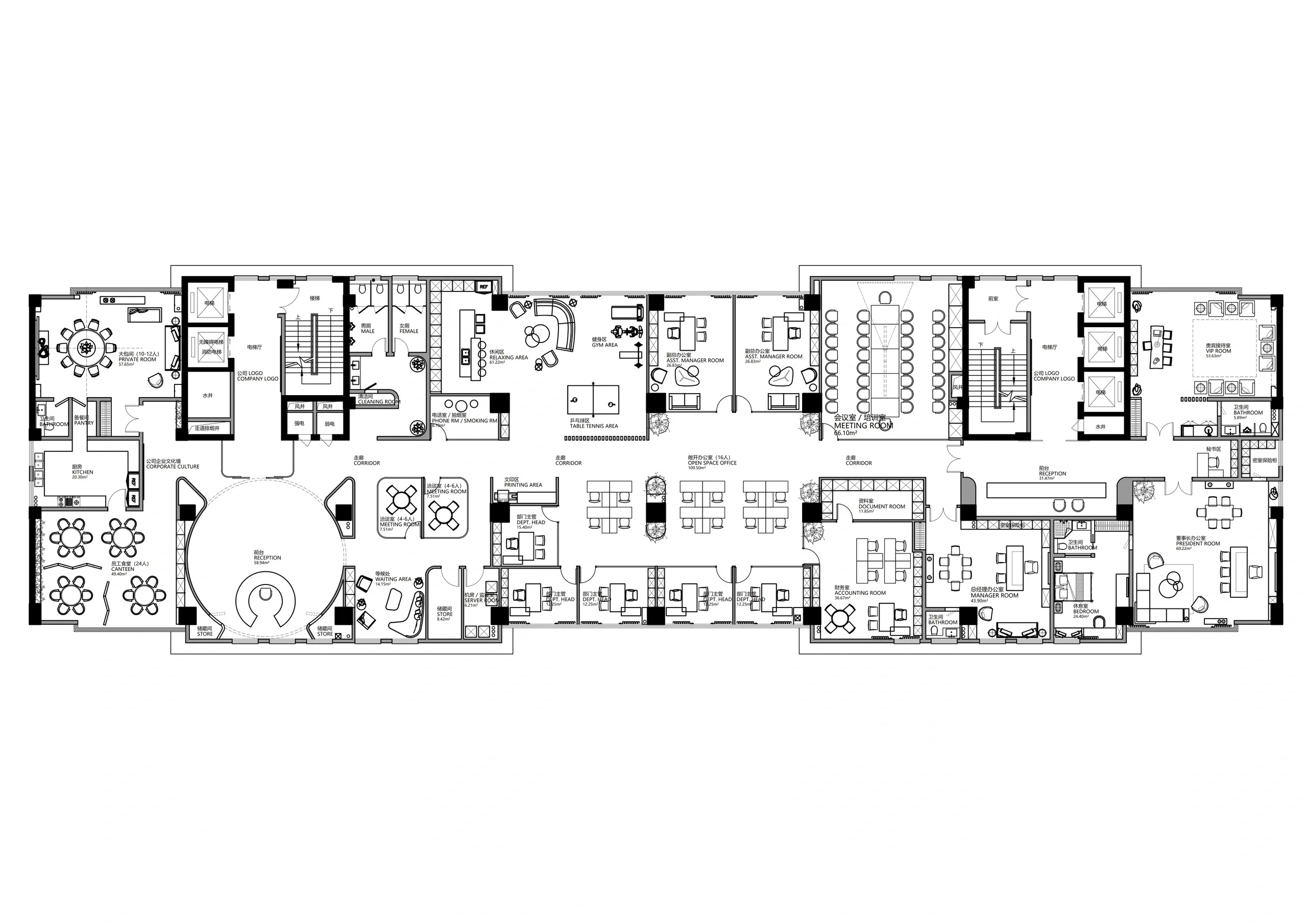
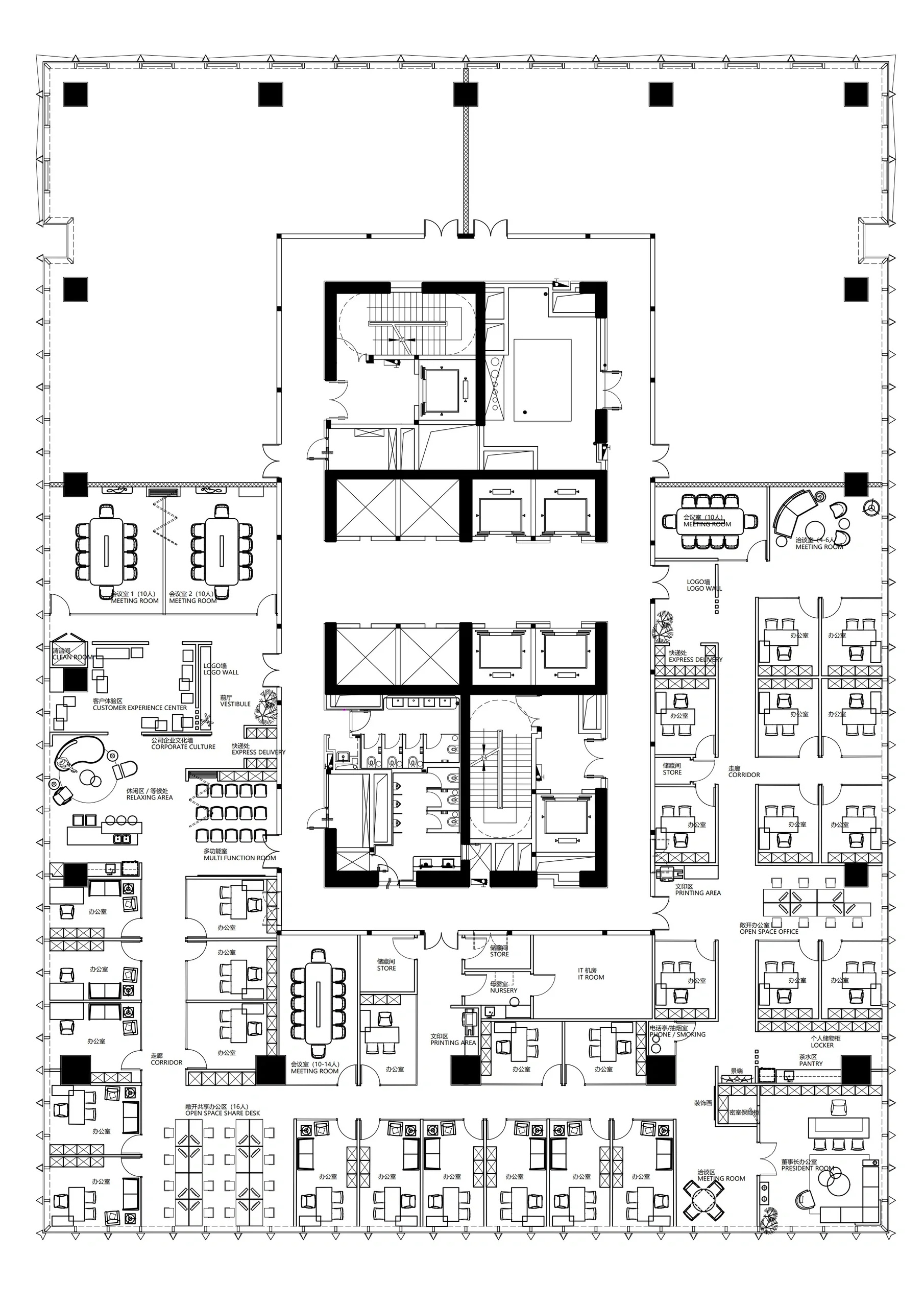
    平面布局方案        

  • 瑾萱 / 设计师

    2024-04-05 16:01


    #办公智造#

    全球工业自动化解决方案领导者Belden,与设计团队紧密合作,在全球范围内建立了一系列重要的Customer
    Innovation Centers(CIC,客户创新中心),其中第一家已在德国的斯图加特开业。Belden拥有全面的产品和解决方案组合,并在通过体验式营销传播产品广度方面取得了巨大成功。通过创新打破障碍是Belden的企业精神,在2Heads的帮助下,最近完成的芝加哥CIC采用智能设计、内容和尖端技术来展示这种精神。        

  • 瑾萱 / 设计师

    2024-04-05 16:00


    #办公智造#

    Belden邀请2Heads帮助打造一个体验式空间,去展示他们的创新解决方案;同时鼓励协作与讨论,并在演播室般的环境中举办演示和讲座。作为一个与品牌风格产生共鸣的美丽空间,CIC客户创新中心需要成为国际流媒体活动的背景;与品牌新方向相呼应的展品,并邀请全世界共同见证Belden的先进科技。芝加哥CIC客户创新中心是一个屡获殊荣的符合人体工程学的环境,这里既可以是私密的,也可以是开放的,随时邀请访客进行观摩探索。CIC的每个功能区域都采用不同的方法来说明Belden网络的好处;他们为什么是当今传输应用程序所需的越来越多的数据、音频和视频的专家。2Heads创造了影片和数字序列,让访客在视觉上沉浸在各种可能性的解决方案中。验证实验室展示了专业技术知识,沉浸式Belden立方体展示了Belden解决方案之旅和数字化转型。从技术咨询、项目管理到教育和活动,Belden现在拥有了一个展现其尖端解决方案的沉浸式体验空间。        

  • 张小葵 / 设计师

    2024-04-05 14:49


    #办公智造#

    走进被镀锌板包裹天地的入口,映入眼帘的右手边为开放式办公区,左手侧为模型室,两大区域之间由一条阶梯式的展示区、前台公区及公共走廊相连结。
    CLOU品牌的图形LOGO以各种不同材料、不同大小的形式呈现在三个区域的墙面上,黑色及银色的品牌LOGO昭示着事务所大胆的创意形象。
    简洁流畅的几何线条勾勒划分出工作、交流、研究、展示等不同区域,标志性的银色镀锌墙环绕连结整个空间,延续、贯穿了自CLOU成立以来至今的一大室内经典特征。镀锌是一种比不锈钢经济而有效的防锈方法。不锈钢是加入微量元素后的合金板,防腐耐酸,而镀锌板是普板,在高温下200-300度下锌才会被慢慢烘烤化掉。镀锌板是表面镀有一层锌的焊接钢板,常应用于建筑、家电、车船、容器制造行业。镀锌钢进入大规模生产和应用于工业商业中已有200多年的历史了。        

发直播

公开