
结合近些年对都市边缘更新的探索,在从城中村到城市工厂语境转换中,都市边缘升级改造类型发展出了更契合城市更新的场所关系与形式语汇,这些都在SMOORE改造项目中得到了不同程度的呈现。

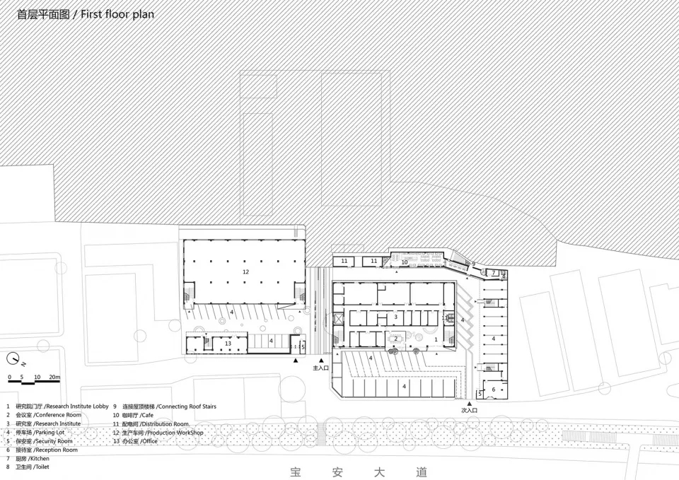
项目位于深圳宝安西乡街道固戍社区的东财工业园。东边毗邻宝安大道,北面为八九十年代工业区厂房和城中村,西南边为碧海湾高尔夫球场边缘山体,园区内西高东低,现状有三米高的陡坎。新的SMOORE总部由曾经的三个独立相邻的工业园合并组成,占地面积10917平米,总建筑面积28019平米,共九栋建筑。其中三栋上个世纪九十年代工业厂房,四栋宿舍楼,一组设备用房和一排临街道的商铺建筑。

此次改造方案设计需重新定义各建筑楼栋新的功能关系,打开封闭独立的三个园区隔墙,临城市道路的建筑扮演着新的园区、甚至整个东财工业区在城市界面上的主角形象。解决园区人车混行、无序停车,规划疏导现有园区功能关系,结合景观资源与公共空间,实现一个互通、共享、高效的园区。

▼分解轴测图

从城市视角来看, 5#楼厂房作为SMOORE总部临城市街区主要的单体建筑,改造成实验楼。一至三层为无尘车间与实验室,四层为办公室。我们的策略是采用银色折型的冲孔铝板包裹原有的建筑立面,以彰显独特的现代工业建筑气质,充分利用这栋完整的建筑体量来展现企业新形象,重新定义这片旧工业区混杂多元的边界。东立面凸现的弧形落地玻璃窗体,在空间和视线上与城市景观有着多重的互动。建筑首层入口门厅结合会议室、接待区及景观树池整合成一个玻璃体块引入建筑内部。三楼实验室与加工操作区通过压型钢板分隔,氟碳喷涂的蓝色压型钢板强调了室内工业氛围。四楼公共活动空间设置中庭引入天光,中庭旋转楼梯可直接从室内通往屋顶花园。
▼从街道看向5#楼厂房

▼首层玻璃体块引导人们进入室内

▼建筑立面由折型冲孔铝板包裹


6#号楼栋作为园区北边的边界与东财工业区其它厂房分隔开,改造封闭后的走廊东侧形成一面完整的山墙立面,与5#楼一起成为重要的城市界面,邀请艺术家绘制整面墙的植物元素壁画,让建筑以艺术的视角呈现于城市景观中,又与背面的山体相融。面对园区的南立面外挂竖向排列的玻璃与5#楼立面既呼应又消隐。

▼6#楼南侧玻璃立面与5#楼相呼应

▼玻璃和冲孔铝板立面对比

沿东财工业区道路旁的一排单层L型商铺改造成为停车场与入口岗亭为园区服务,临街道砌筑的红砖墙面造型结合公司LOGO,辅以少量钢板、玻璃等材料建造一条空间转折、虚实变化的边界景墙。
▼沿街设有公司LOGO的红色砖墙

▼园区入口岗亭

▼园区主入口

园区主入口通道左侧为3#楼生产加工车间,临园区景观主轴的建筑立面以波普艺术手法喷涂SMOORE公司的企业核心文字内容,强调氛围的同时与地面景观相呼应。

▼园区新建筑立面与城市建筑对比

陡坎下的设备用房改造成咖啡厅,首层满足园区配套服务休闲功能,建筑立面砌筑红砖造型墙与园区边界的红砖墙相呼应,塑造园区连贯的整体性。分隔就餐区与制作区的公共空间设置了一条通往屋顶休息平台和停车场的楼梯。结构加固后的屋顶铺设竹钢平台,结合景观种植池与休闲座凳,提供园区休憩交流的活动场所。屋顶平台上的“十字纽带”是连接实验楼二层空间、1#办公楼及停车场的交通装置,建立起园区一条办公与实验的高效连接通道。


▼从屋顶平台看向3#楼

位于园区台地之上的1#楼改造后成为总部核心办公建筑。立面设计上采用了四种模数的矩形落地窗,加大了采光面需求,摈弃原有单一外窗效果,在原建筑马赛克立面上使用白色大颗粒弹涂,在光影下具有丰富的立面细节,结合外窗营造凹凸变化、错落有致的建筑立面。
南立面首层插入一个以主入口门厅、雨棚、球场观众席及电梯间的连续建筑体。北边靠山体的夹层空间外挑与户外景观渗透。三四层因内部交通功能需求设计一个外挂楼梯,在立面上打破矩阵窗户均质的排列模式,重构了立面秩序。五六层根据平面布局设置了两个不同尺度的采光中庭:小尺度庭院内种植绿化景观延伸至屋顶花园;大尺度庭院在六层形成一个“公共客厅”,可通过旋转楼梯连接五层与屋顶景观空间。两个庭院仿佛一组玻璃装置从外部插入建筑,置入公共空间同时也给室内带来良好的通风采光,最终形成具有立体形态的第五立面。

▼立面细部,由不同模数的矩形落地窗组成

▼园区内不同材质立面对比

新的工业园区场地有限,不仅需满足基本的人车通行,而且要高效有序的建立办公生产生活的新途径。机场的标示引线给我们带来了启示。景观设计上,在地面绘制融入SMOORE企业发展历程及重要事件的导向性线条,分别连接园区各楼栋主要通道、节点、活动空间。篮球场地在这次更新设计中结合地面图案艺术化的整体绘制,山脚下叠落的弧形景观座椅作为篮球场观众席与休闲交流区,化解了场地边缘的消极空间。

▼主办公楼入口空间

深圳经历了40年的快速城市化进程,已然从增量时代步入存量时代。曾居于城市边缘的无数中小型加工生产工厂因企业外迁而空置成为了未来城市更新的重要部分。SMOORE总部工业园改造项目完成后成为了都市边缘复合型空间升级再利用的典范,与此同时,为城市周边的生产加工及技术实验类型厂房提供新的改造模式。我们期望这一系列工业园项目能为未来城市更新的发展起到推力作用,为城市更新多样化策略提供新的类型学思考。


▼主办公楼屋顶

▼总平面图

▼首层平面图

▼二层平面图

▼七层平面图

▼立面图

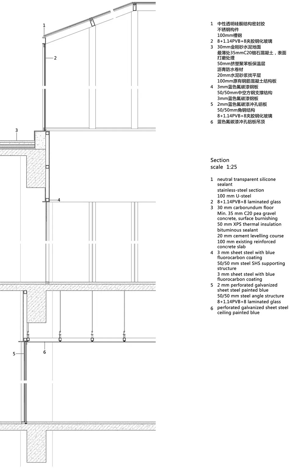
▼剖面图

▼节点细部

项目信息
材 料:冲孔铝板,钢板,砖,玻璃,铝拉伸网,竹钢,涂料
项目地点:深圳市宝安区
设计成员:陈丹平,廖俊,杨恒,姚明明,李木森,马晓虹,龙诗华,李磊,钟应川,邱慧春,周嘉旭
用地面积:10917平米
建筑面积:28019平米
项目时间:2018年7月- 2020年6月
业 主:SMOORE国际控股有限公司
合作团队:深圳兴凯嘉建筑设计工程有限公司
施工团队:东莞市莞匠装饰设计工程有限公司,湖南腾宇建设工程有限公司,
项目摄影:张超
故事还在继续 ...
To Be Continue
全部评论