
项目坐落于Dundas街以北,Broadview大道上的一处新兴地段,是由Omar Gandhi Architect与SvN事务所联合为Lady Marmalade打造的全新店面。自2009年以来, Lady Marmalade始终是多伦多早午餐界的中流砥柱。

项目保留了翻修前建筑的原始特征,包括立面的砖材质。新店面大面积的玻璃橱窗,为路过的食客与Lady Marmalade的忠实粉丝提供了明亮的室内环境。雪松饰面的门头吸引着人们进入店内,并随着时间的流逝渐渐染上古铜色,呼应了老化的立面砖。建筑后部适当加建,扩大了厨房与用餐区的使用面积。

通过对尺度、比例、材质以及光线的探索,设计师将一个狭长黑暗的建筑转化成一个明亮且温暖的室内空间。人们于此享受美味食物的同时,与亲友共度欢乐时光。经过被压缩的入口空间,餐厅前三层通高的大厅使人豁然开朗。原有的楼板被部分拆除以引入自然采光。横跨餐厅的横梁,作为原始楼层的痕迹被保留了下来,以展示建筑的历史。

波罗的海桦木墙面形成光线一天中在上面走过的背景板,并于底部弯折,在每一层形成长条型的座椅。入口吧台处,墙面材料延伸出来形成咖啡桌。木质吊顶的开口处形成灯槽。为了给就餐与烹饪留出更多空间,所有的服务与交通流线都汇集于建筑的一侧。一层与二层为就餐空间,并在建筑的后部设置了一个二层通高的私人用餐区。厨房位于一层的后部,且保持了 Lady Marmalade 原有厨房的透明度与开放性。在这里,顾客可以瞥见到从烹饪到送餐的整个流程。

▼所有的服务与交通流线都汇集于建筑的一侧


▼二层通高的私人用餐区


设计师在夹层设置了一间独立办公室,使业主既可以享受空间的开放氛围,又可以保证工作空间的私密性。建筑前后的开窗与顶部的天窗,即使在阴天,也为内部空间提供了充足的照明。

室内的门,门框与窗框都由木材制成,整个就餐区氛围和谐统一。精心挑选的壁挂植物让空间变得生机勃勃,轻松的音乐在忙碌的周末早晨舒缓了食客的心情,黄铜色的灯具更为室内增添了一丝温暖的色调。

▼工作模型


项目图纸

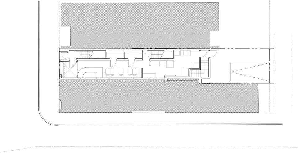
▼一层平面图

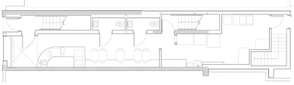
▼二层平面图

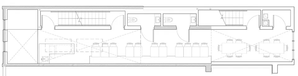
▼夹层平面图

▼外立面图

故事还在继续 ...
To Be Continue
全部评论