当前位置:首页 > 户型图分析

#餐饮美食#

阅读 49738 | 粉丝 49738

  • 小筑 / 设计师

    2020年08月21日 19:10:49

    + 关注
    #餐饮美食#

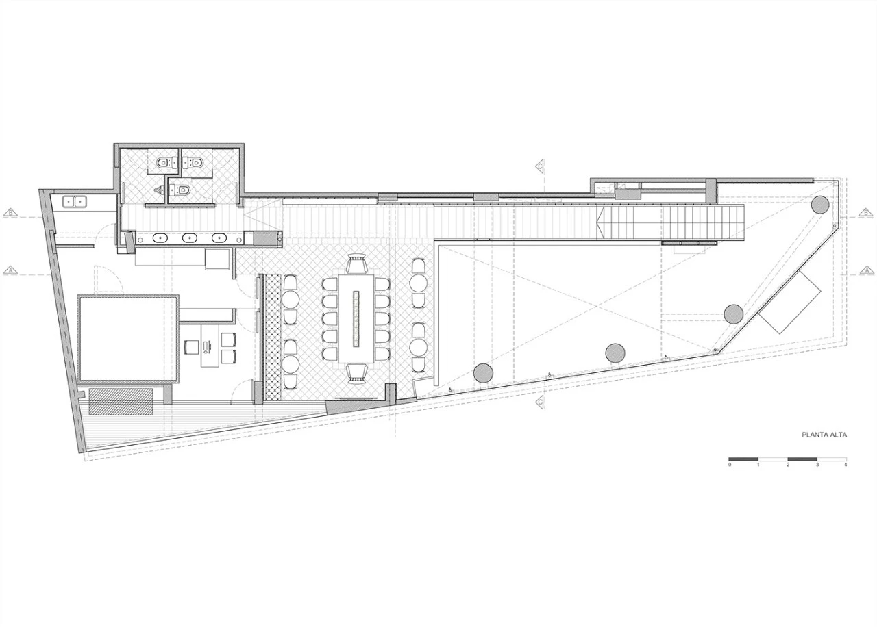
     设计说明:

    利用空间优势,将展示面最大化,营造一个自然随性、清新雅致的餐饮空间。        

  • 小筑 / 设计师

    2020年08月20日 19:05:21

    + 关注
    #餐饮美食#

    设计说明:

    根据场地现状,用线性空间的形式来布置功能,材料上主要使用了水磨石,彩色玻璃及玻璃砖,通过灯光突出特性,使纯净的空间更具仪式感        

  • 小筑 / 设计师

    2020年08月19日 23:34:46

    + 关注
    #餐饮美食#

     设计说明:
     空间中虚实结合,形式上删繁就简,色彩上红肥绿瘦,打造一个独特而别致的就餐环境。        

  • 小筑 / 设计师

    2020年08月17日 22:44:06

    + 关注
    #餐饮美食#

    设计说明:
    空间用原木饰面板装饰辅以大量的绿植贯穿于空间,星星点点的灯具从顶上悬垂而下,美味可口的菜品在灯光下交相辉映。        

  • 陈澄 / 设计师

    2020年08月15日 20:19:30

    + 关注
    #餐饮美食#

    日式料理…        

  • 毛均峰 / 设计师

    2020年08月12日 09:58:35

    + 关注
    #餐饮美食# 通过使用颜色和应用,使木质镶板
    温暖的格子呢和曲木凳子具有传统感
    给人以清新现代的感觉
    同时保持休闲和熟悉

    易筑大掌柜

  • 小海 / 设计师

    2020年08月07日 13:13:58

    + 关注
    #餐饮美食#

    “中餐是火,日料是水,道家文化,万物归一,越简越好。” 单一木材所带来的宁静与庄严,搭配鮨然精心制作的料理,为客人打造身心一致的用餐体验。        

  • 敏颜 / 设计师

    2020年08月03日 10:28:51

    + 关注
    #餐饮美食#

    花儿赞        

    毛均峰

发布话题

公开