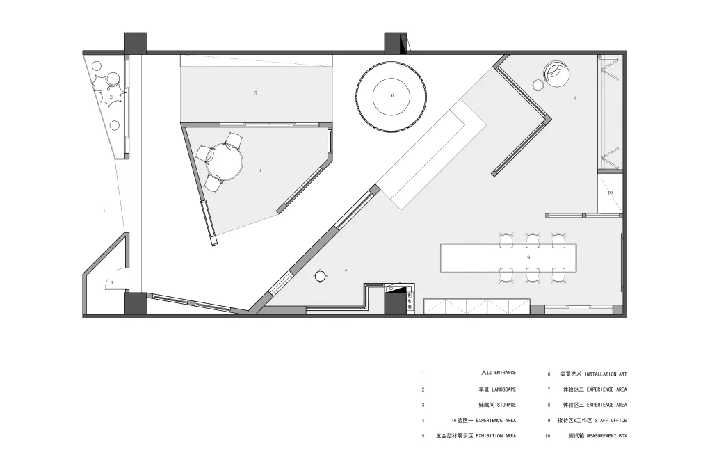
当前位置:首页 > 户型图分析

#易筑展陈#

阅读 46868 | 粉丝 46868

  • 安迪@视觉设计 / 设计师

    2022年12月02日 09:16:55

    + 关注
    #易筑展陈#

    企业展厅…        

  • 艳子@视觉设计 / 设计师

    2022年11月24日 23:04:52

    + 关注
    #易筑展陈#

    宝马展厅(1)        

  • 艳子@视觉设计 / 设计师

    2022年11月24日 23:03:40

    + 关注
    #易筑展陈#

    宝马展厅(2)        

  • 豆豆@视觉设计 / 设计师

    2022年11月23日 07:27:30

    + 关注
    #易筑展陈#

    企业展厅…        

  • 瑾萱 / 设计师

    2022年11月07日 16:44:32

    + 关注
    #易筑展陈#

    东侧和北侧空间的地面被抬高,参观者拾级而上,遇到的是一个玻璃的会议室,这里可做短暂停留;顺着展览流线继续绕到展厅的北侧,这里是展厅的暗区,用于展示客户一些带有灯光效果的产品。参观者会在这里遇到一面高高低低的开孔墙体,高的墙体挡住人的视线使其聚焦于展品,低的墙体和墙上的开洞则让人可以俯瞰到南面的门厅,那里是进入时走过的路径;        

  • 瑾萱 / 设计师

    2022年11月07日 16:43:00

    + 关注
    #易筑展陈#

    路线在这里被分为两股,可以下两个台阶达到半圆形的发布厅,也可以顺着圆形的外围,绕道发布厅的北侧进入。发布厅主要用于展车发布,讲座等,设计师用半圆形来延展空间的宽度,在顶面布置了发光灯膜,在有限的室内空间中营造“开阔”的意向。这些弯弯绕绕,又高低起伏的路线被谦逊地设置,串联起不同的展示区域和展台。参观者在行进参观中,会经历从观望,到攀登,行走,转弯,下行,居停,回望等动作。这样一个类似微缩版的山城的空间游览体验,让人在不经意中完成了“观-游-居”的行为学的有趣体验。        

  • 刘静 / 设计师

    2022年11月05日 22:41:00

    + 关注
    #易筑展陈#

    汽车展厅…        

  • 许哥 / 设计师

    2022年10月25日 14:02:21

    + 关注
    #易筑展陈#

    展厅中的线性灯…        

发布话题

公开