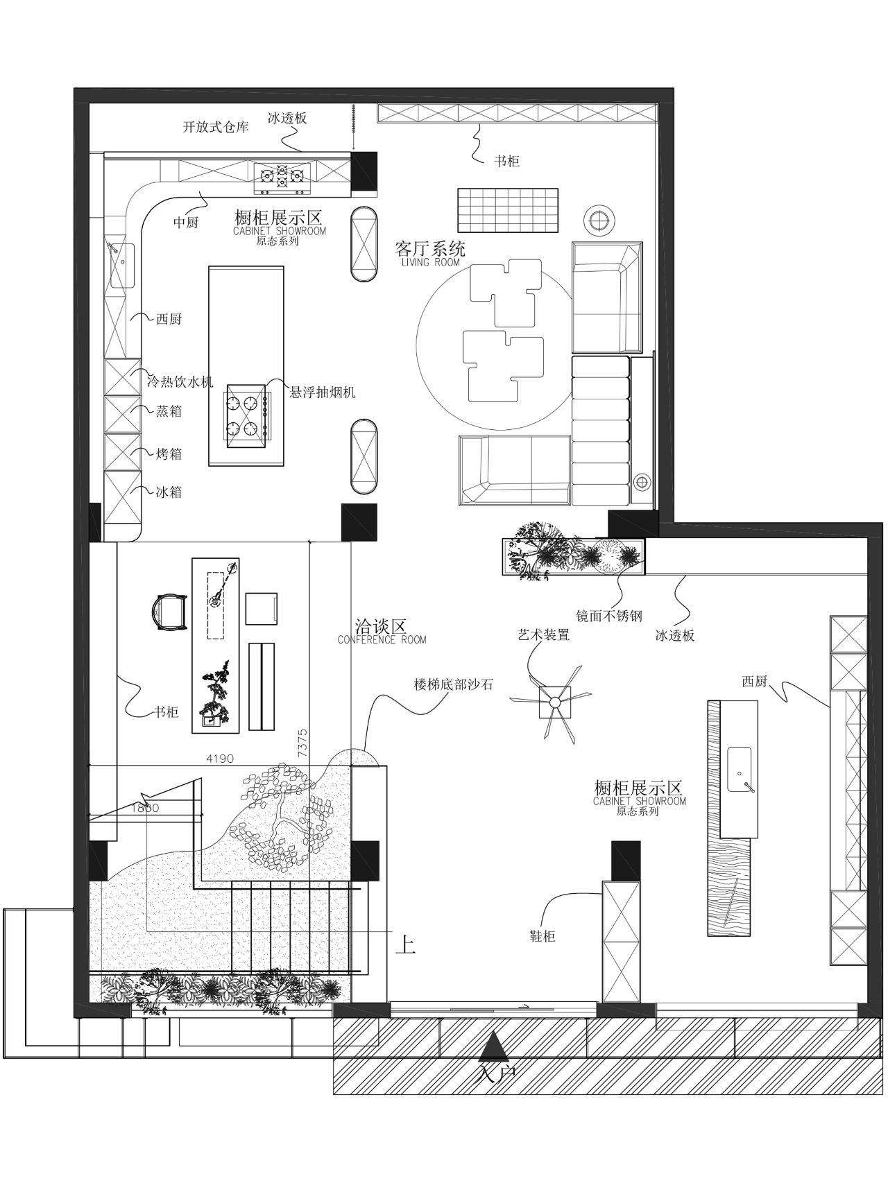
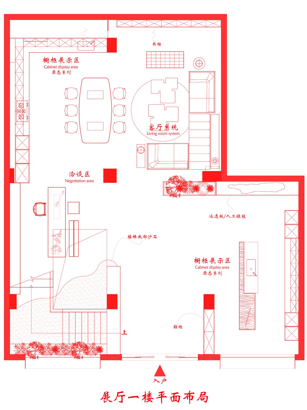
当前位置:首页 > 户型图分析

#易筑展陈#

阅读 50504 | 粉丝 50504

  • 赵默笙@展陈 / 设计师

    2024年11月14日 20:53:14

    + 关注
    #易筑展陈#

    弧型展厅        

  • SiG一设计 / 设计师

    2024年11月14日 17:16:48

    + 关注
    #易筑展陈#

    展厅实景图        

  • Alice@展陈 / 设计师

    2024年11月14日 06:32:06

    + 关注
    #易筑展陈#

    你有没有想过,在一个展厅中就能感受到未来科技的魅力?工厂科技文化展厅正是这样一个让人惊叹的地方!在这里,你不仅能看到最新的智能制造技术,还能亲自体验互动式展示,感受科技带来的震撼与乐趣。
    第一步,当你踏入展厅,巨大的全息投影将为你开启一段奇妙之旅。接下来,你可以通过VR设备,亲身体验工厂的运作流程,仿佛置身其中。
    而最让人激动的是,展厅中还有机器人导览员为你解答各种疑问,真的是手残党必备的贴心助手!        

  • 赵默笙@展陈 / 设计师

    2024年11月14日 06:16:35

    + 关注
    #易筑展陈#

    展陈空间        

  • SiG一设计 / 设计师

    2024年11月14日 06:09:05

    + 关注
    #易筑展陈#

    帛飞特纺织展厅(1)        

  • SiG一设计 / 设计师

    2024年11月14日 06:08:08

    + 关注
    #易筑展陈#

    帛飞特纺织展厅(2)        

  • Tony@视觉设计 / 设计师

    2024年11月13日 05:58:47

    + 关注
    #易筑展陈#

    800㎡展厅设计 | 不规则设计带来的高级感!
    1.空间动感之美:简单的弧线设计可以改变呆板单调的空间氛围,营造出充满动感和张力的视觉效果,给人心旷神怡的感觉 .
    2.拉高空间感:弧形元素可以产生层高拉高、空间延伸的视觉效果,使展厅显得更加宽敞舒适 .
    3.增强区域联系:弧形元素可以自然地融入空间中的墙体和地面设计,增强区域与区域之间的联系,使整个展厅看起来更加统一和连贯 .
    4.增加空间层次感:弧形元素可以增加空间中的层次感,通过流动的线条扩展空间,使得展厅更加有趣和生动 .        

  • Tony@视觉设计 / 设计师

    2024年11月13日 05:50:50

    + 关注
    #易筑展陈#

    一楼展厅设计(1)        

发布话题

公开