装修案例
灵感美图
找设计
找工长
看工地
记住密码
我已阅读并同意注册协议
发布话题
10种石材收边
刷漆位置对空间的影响
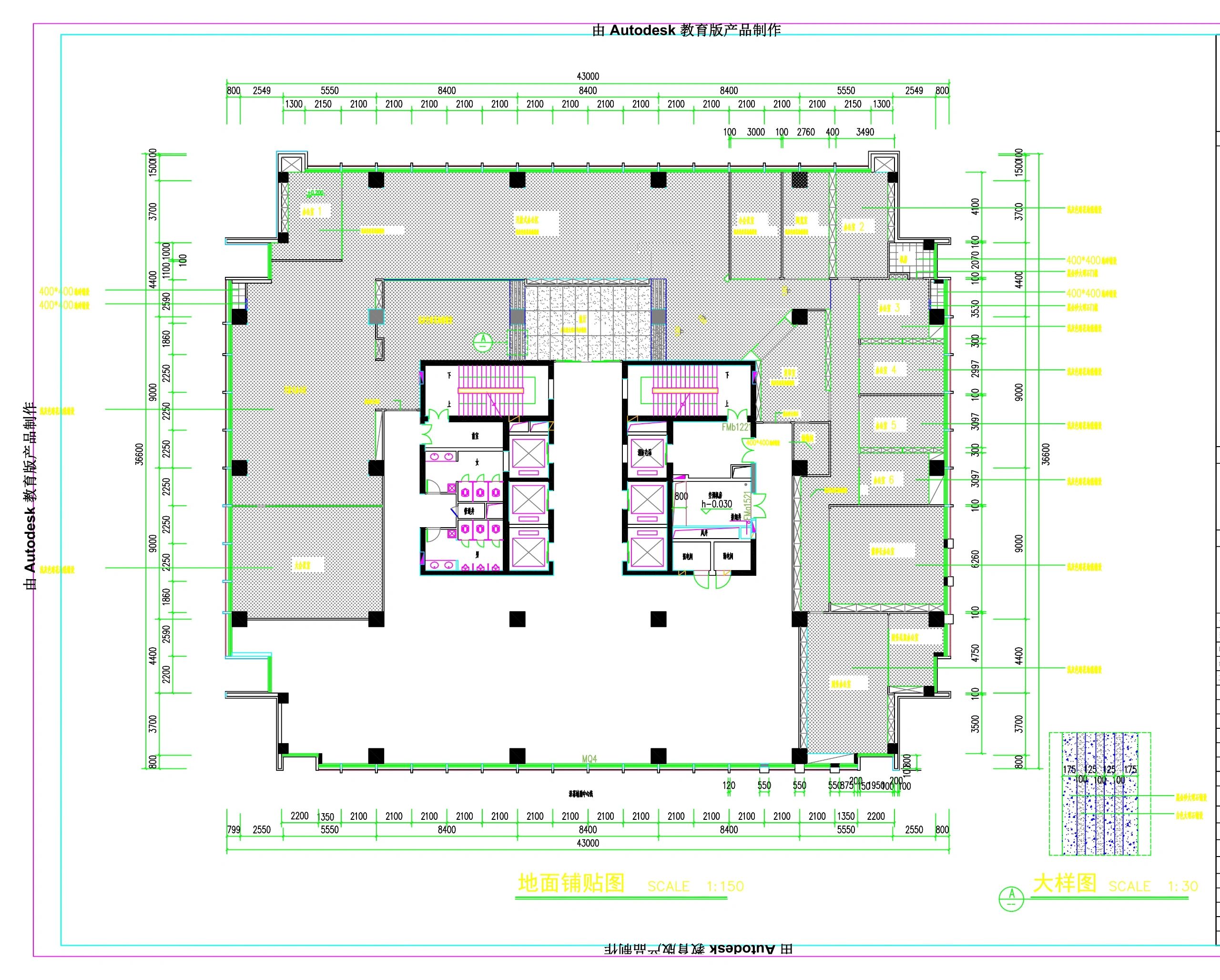
310平方办公室设计
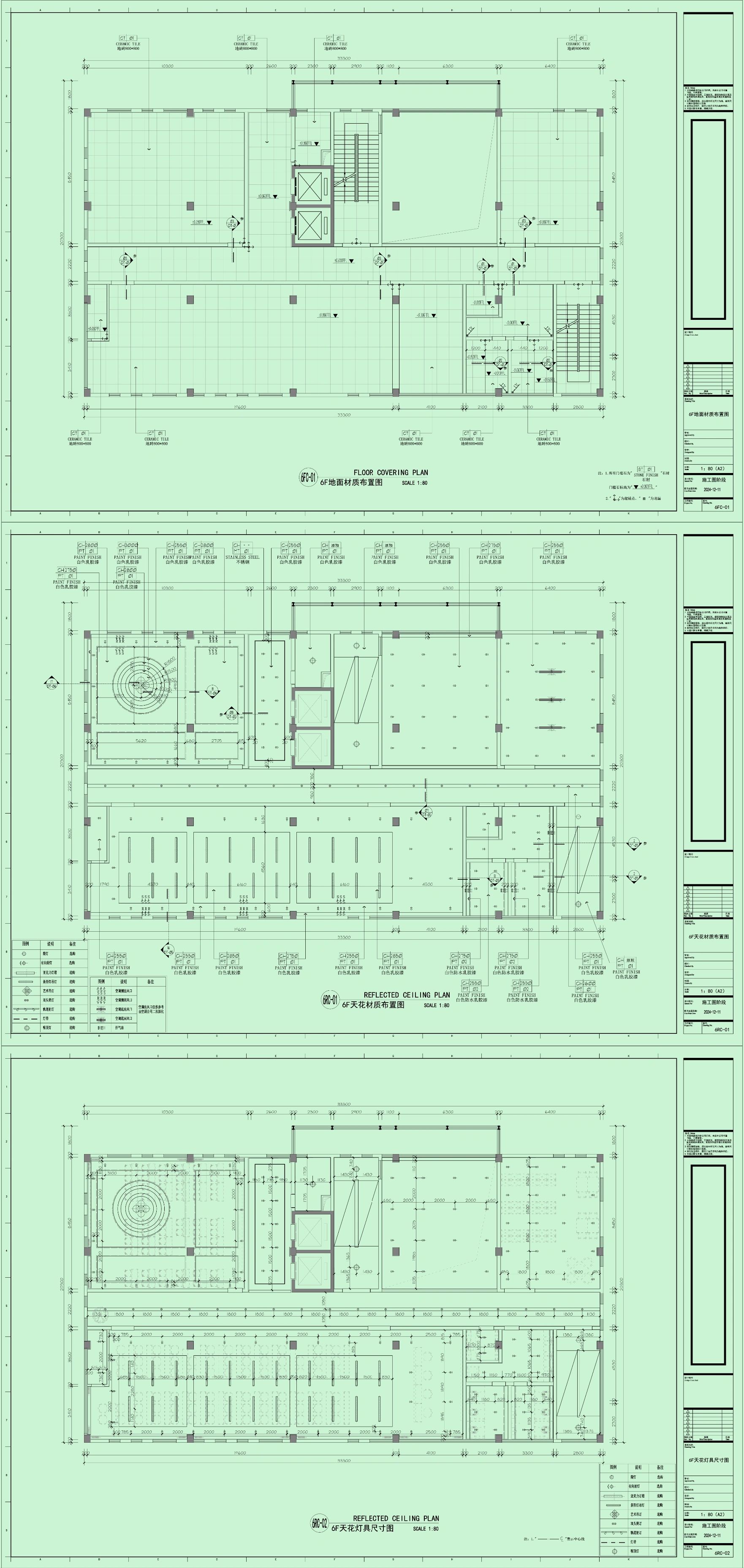
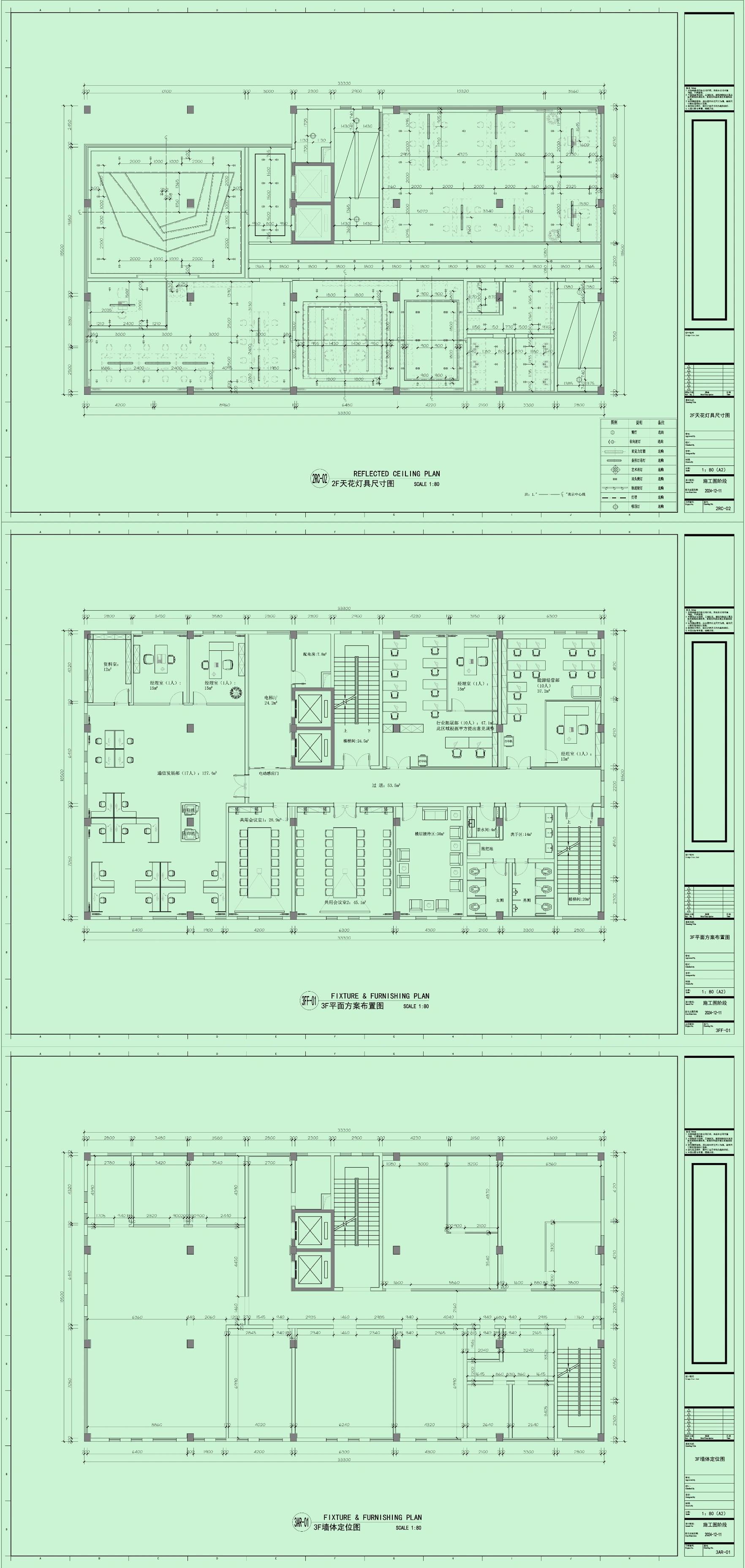
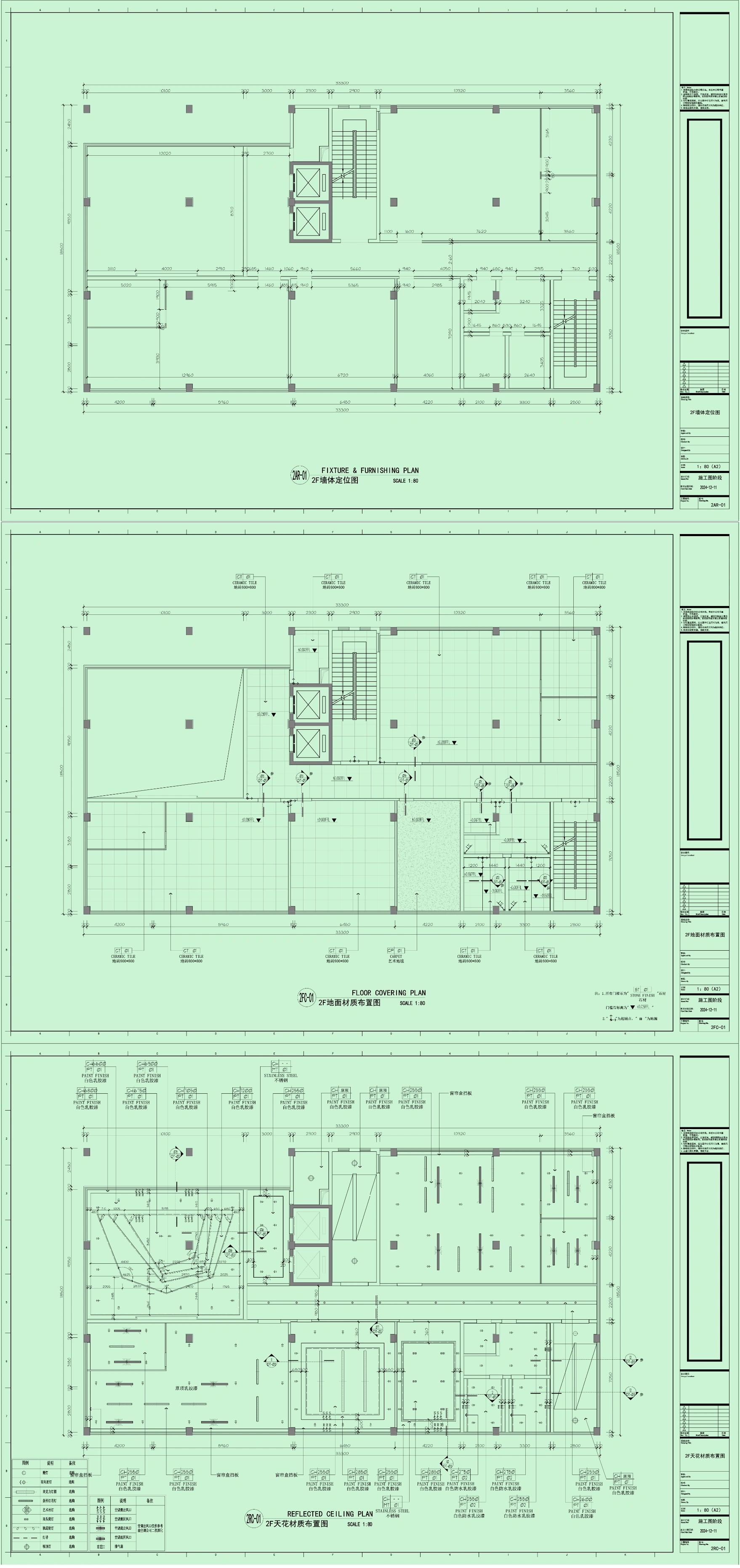
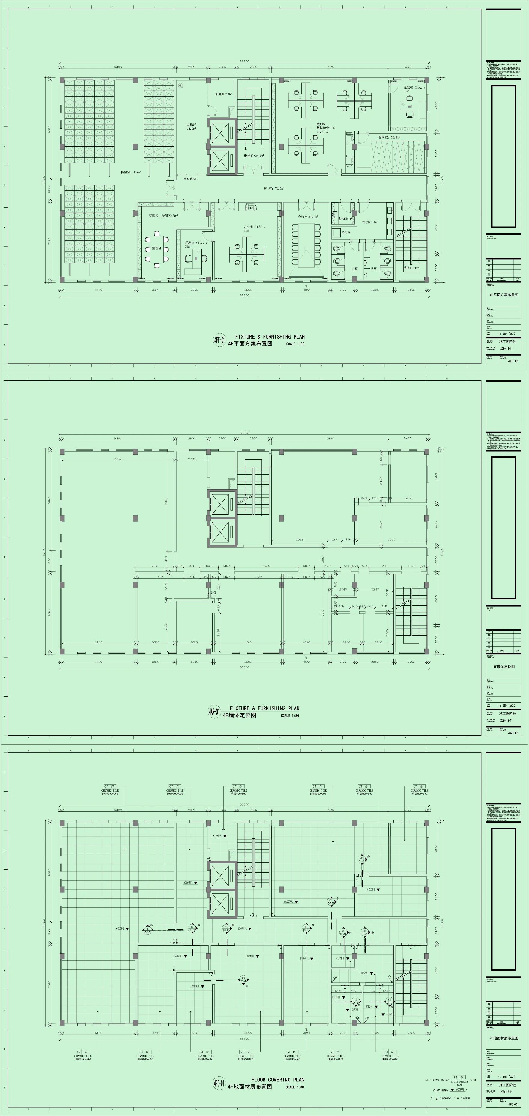
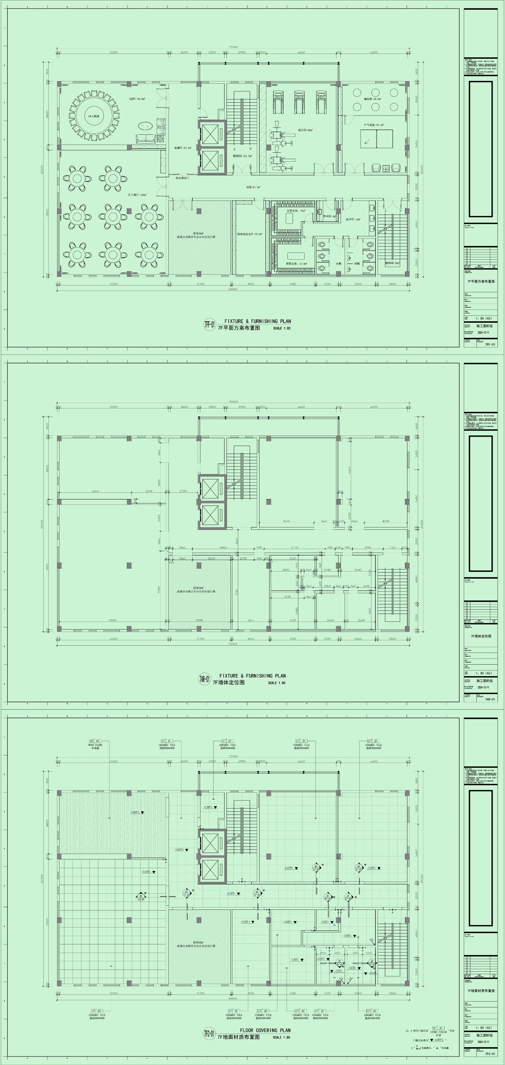
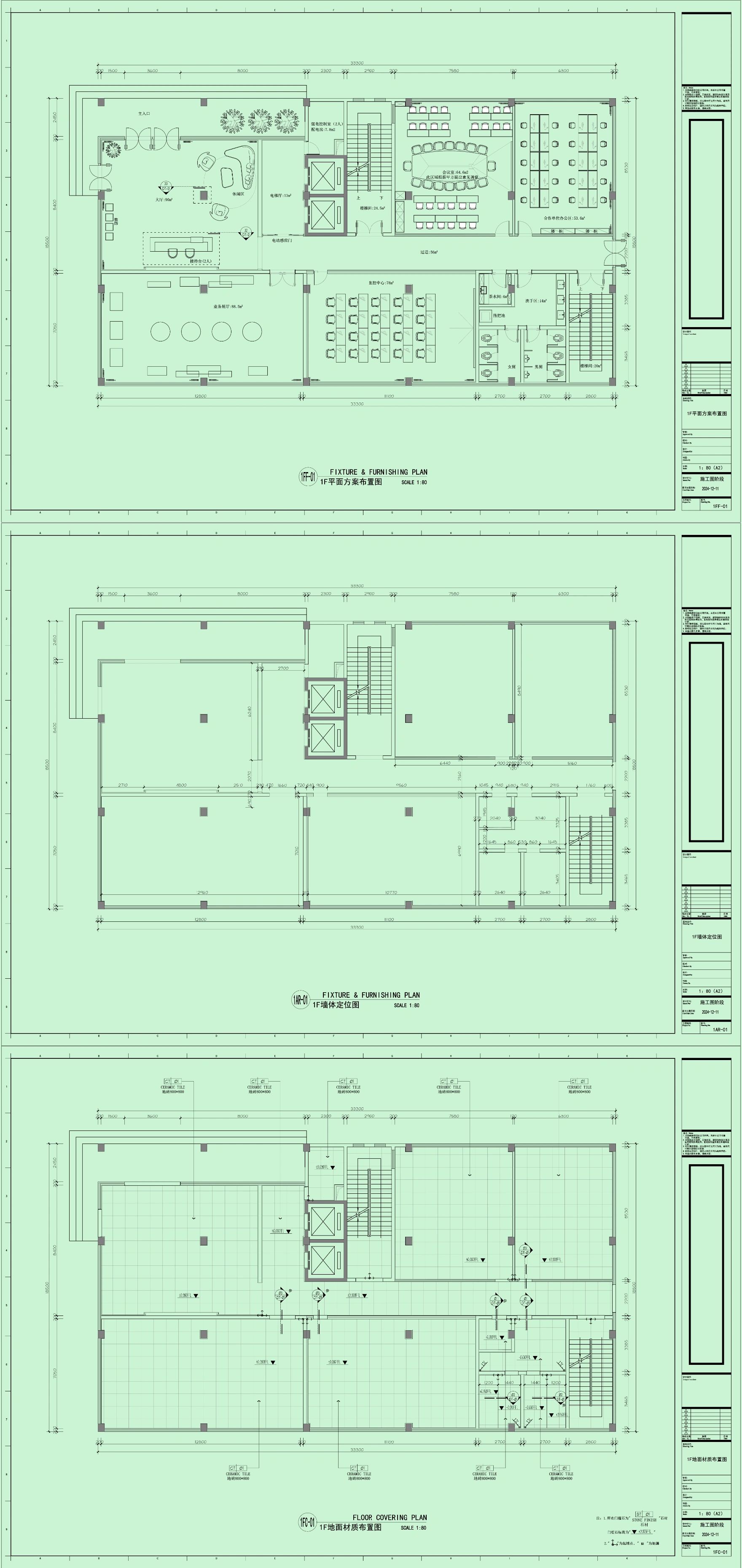
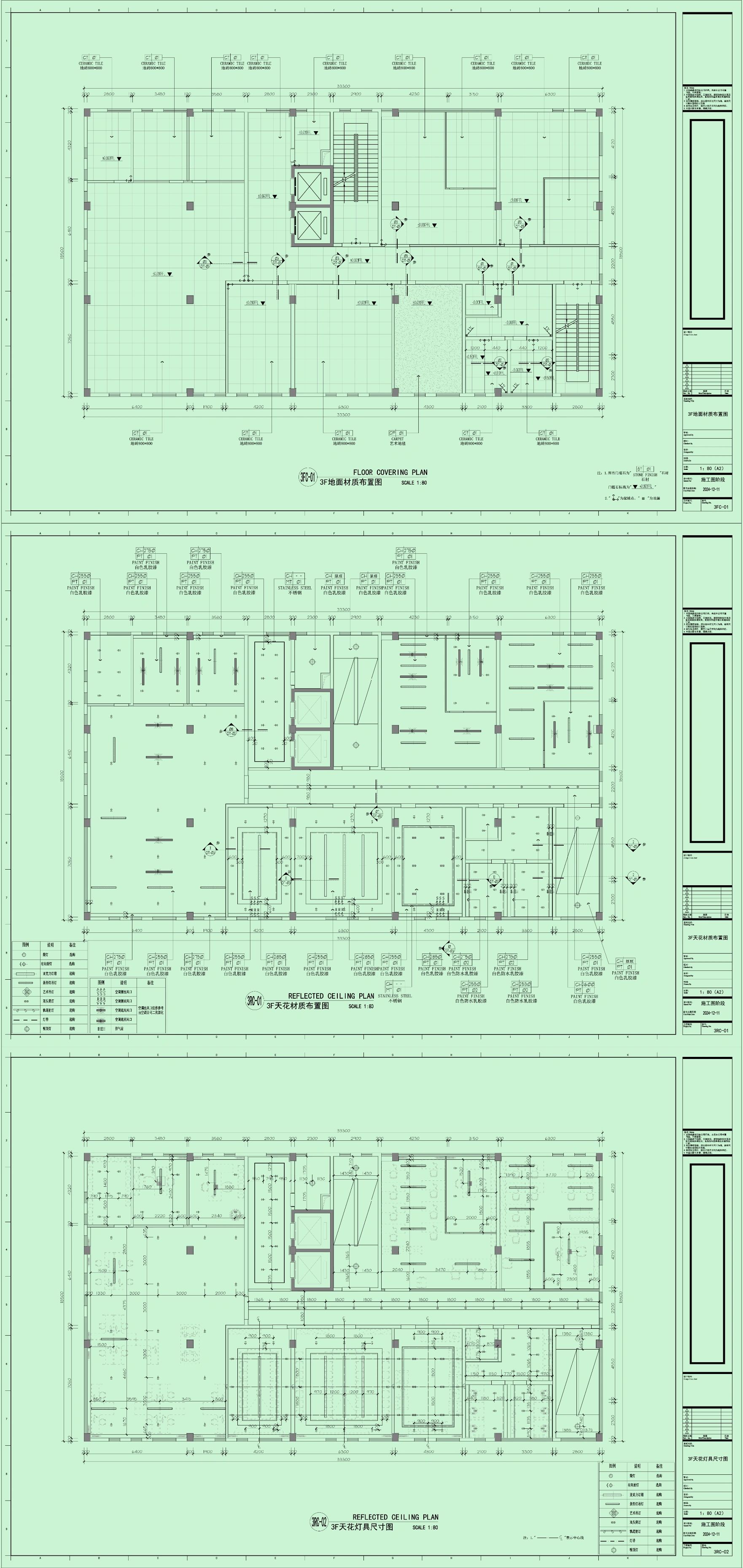
大楼图纸(1)
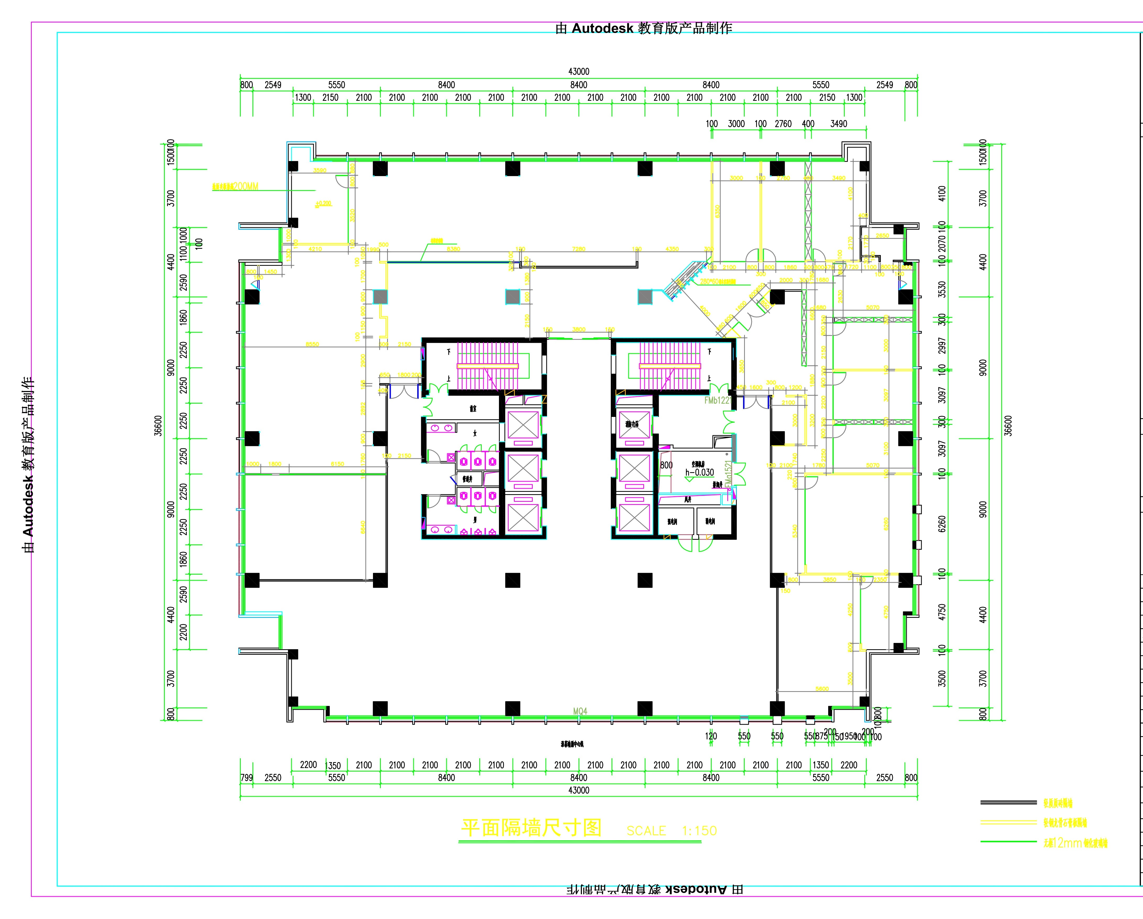
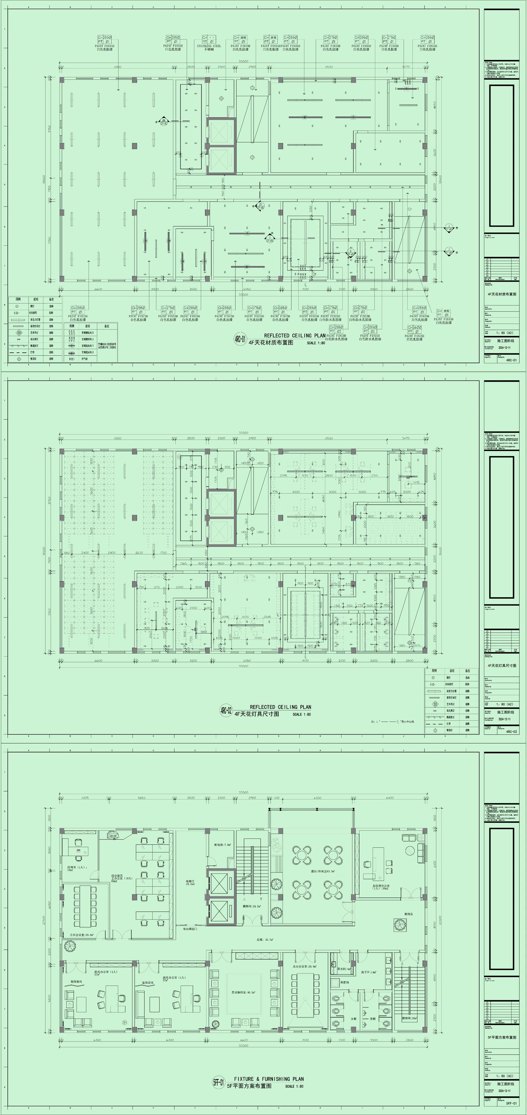
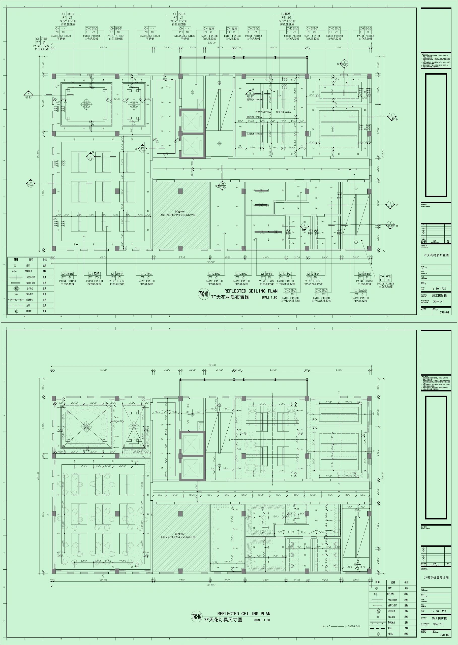
大楼图纸(2)
办公室施工平面系统图
办公空间施工平面系统图
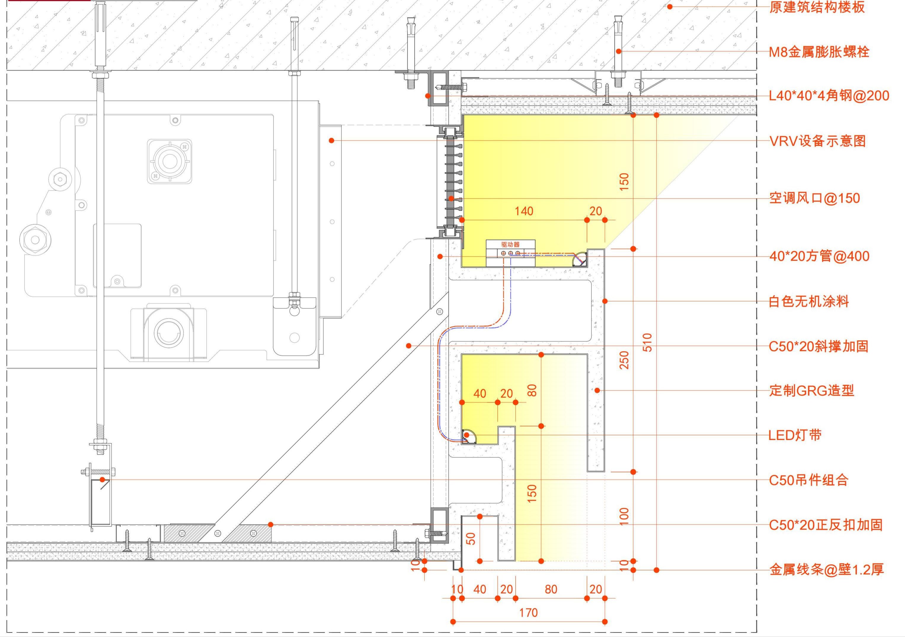
天花造型