装修案例
灵感美图
找设计
找工长
看工地
记住密码
我已阅读并同意注册协议
发布话题
科技小镇翻新图纸部分
可怕的细节...
布纹饰面板上墙
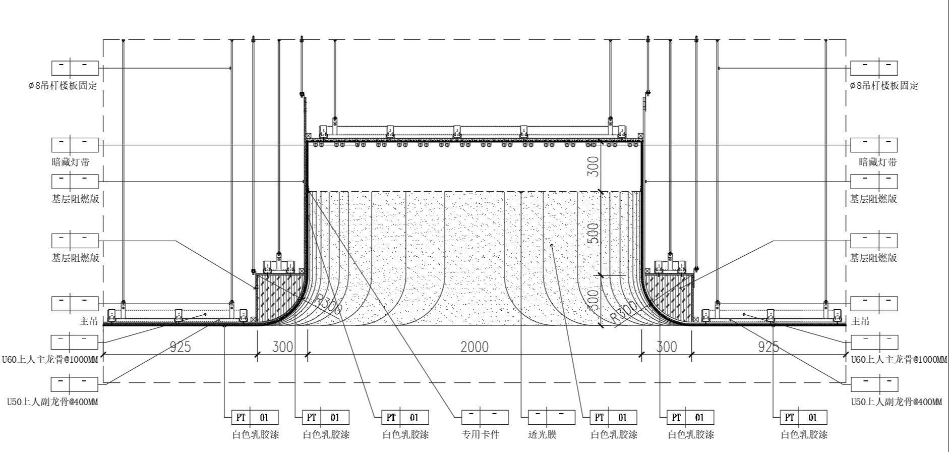
天花造型节点
网红天花造型节点
天花节点
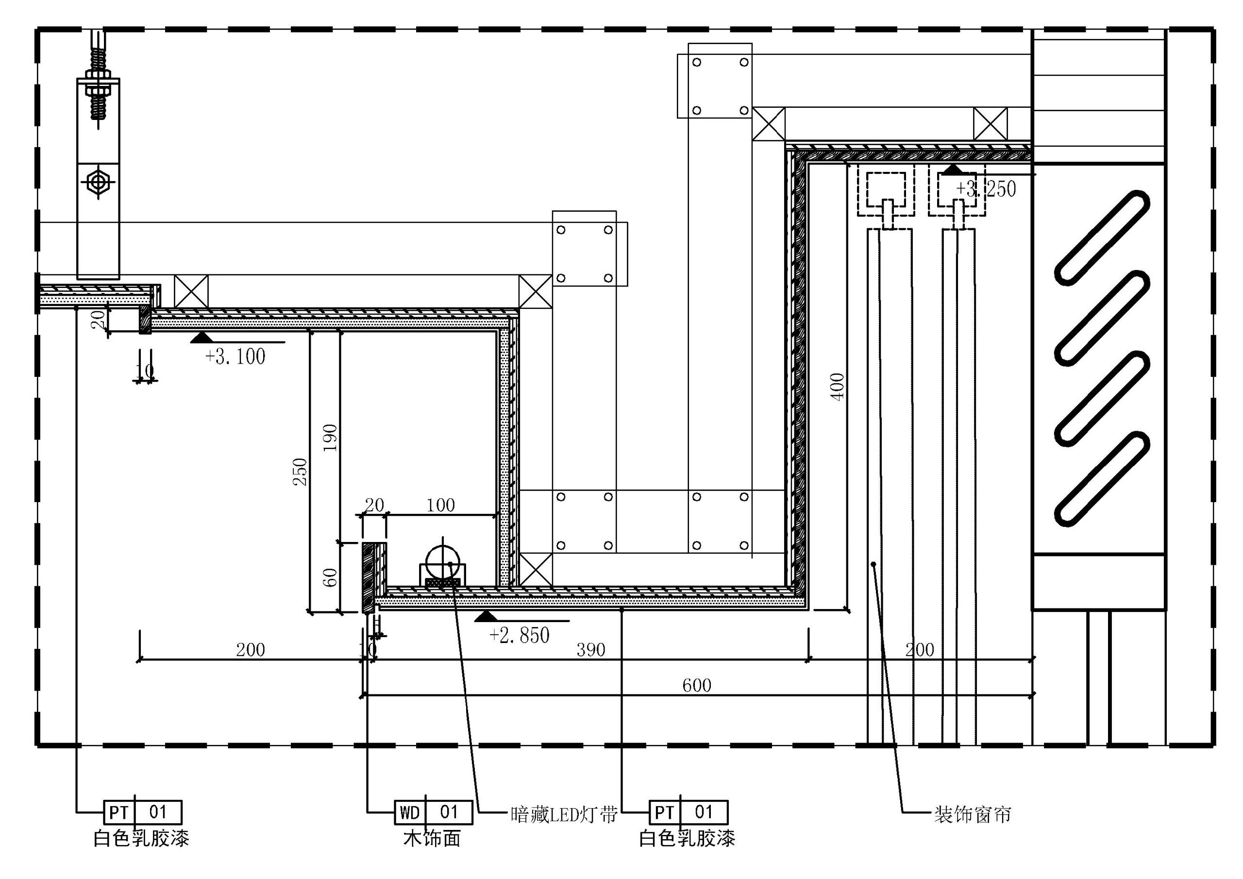
悬浮木质地台施工