当前位置:首页 > 户型图分析

#标准施工#

阅读 141025 | 粉丝 141025

  • 边洪镇

    2022年08月30日 11:53:22

    + 关注
    #标准施工#

     前厅完工        

  • 邓雄飞@质量官 / 客服

    2022年08月29日 13:16:23

    + 关注
    #标准施工#

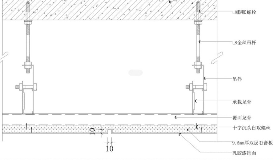
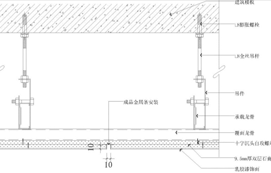
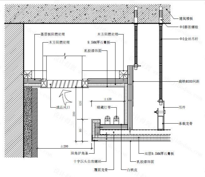
     吊顶节点图        

  • 小筑 / 设计师

    2022年08月29日 07:55:51

    + 关注
    #标准施工#

     无主灯吊顶收口6种方案        

  • 邓雄飞@质量官 / 客服

    2022年08月25日 23:26:00

    + 关注
    #标准施工#

    专业的师傅给你讲下室内吊顶施工工艺和吊顶分类        

  • 邓雄飞@质量官 / 客服

    2022年08月25日 19:41:29

    + 关注
    #标准施工#

    卫生间门口防水
    防水层铺出300mm宽,向两侧延展的宽度100mm。        

  • Leoly / 客服

    2022年08月25日 18:20:40

    + 关注
    #标准施工#

    CAD        

  • 边洪镇

    2022年08月24日 13:17:36

    + 关注
    #标准施工#

    改造接近尾声        

  • 小筑 / 设计师

    2022年08月24日 11:49:12

    + 关注
    #标准施工#

     一、什么是光束角
    原理:光束角就是光范围的边界线形成的夹角。
    简单来说:
    如果用在离墙位置,是指小山丘光弧的大小。
    洗墙请选:24°-36°;
    如果用在非离墙位置,光束角越大光弧越散,反之同理。
    突出重点:15°-24°;基础照明:60°-180°。


    二、光束角的大小
    15°光束角:中心光聚光,照射范围小,能形成有光和无光强烈对比。
    24°光束角:中心光明亮,照射范围相对15°大很多,形成小山丘(清晰)。
    36°光束角:中心光柔和,照射范围相对24°变宽也变短,形成大光弧(均匀)。
    看图更直观!


    三、光束角的用法
    这里会用到2个数据:离墙距离、照射距离;
    离墙距离的影响:
    离墙越近,墙上的光越亮(太近会曝光),光弧越靠上。
    离墙越远,墙上的光越暗(太远墙上没光),光弧越靠下直至没有。
    照射距离的影响:
    距离越近,光到被照射物品的亮度越亮,同时光弧也会变小,直至完全聚点;
    距离越远,光到被照射物品的亮度越暗,同时光弧也会变大,直至没有聚光。
    【这个意义不大,因为家里层高一般2.5-3.5米,常见2.8米】
    15°:重点突出/床头阅读,一般家用较少,匹配场景不多;
    24°:洗墙打光/重点照物,用途较广,如果全屋设计射灯,24°是不错的选择;
    特别说明:如果觉得24°光束角小的话,就离墙20-30cm装,小山丘会变大光弧且光线均匀也够长,这是比36°更好的选择。
    36°:走廊过道/洗墙照画,属于优点很突出,也有缺点的光束角;
    离墙近(20cm以内),大光弧选用36°;
    离墙远(20cm以上),24°光弧也会变大。        

发布话题

公开