装修案例
灵感美图
找设计
找工长
看工地
记住密码
我已阅读并同意注册协议
发布话题
油工,该你表演了…
工地庆国庆…
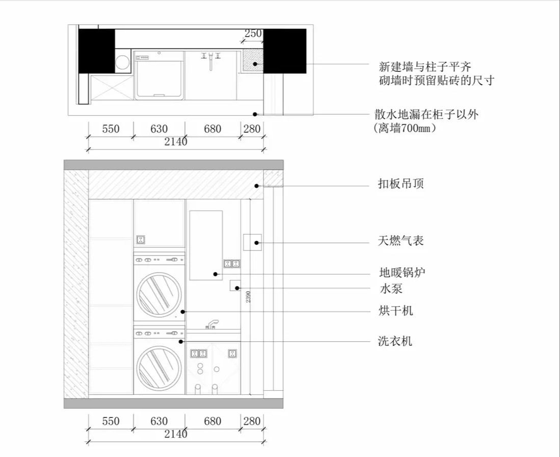
记笔记啦 !阳台详细尺寸来了!
六种木饰面拼接收口。不同材质拼接也可以参考
色温对瓷砖的影响。瓷砖在灯光下的效果
嵌入式花洒施工节点
墙排下水工艺节点
工地上,祝我们祖国繁荣昌盛…