装修案例
灵感美图
找设计
找工长
看工地
记住密码
我已阅读并同意注册协议
发布话题
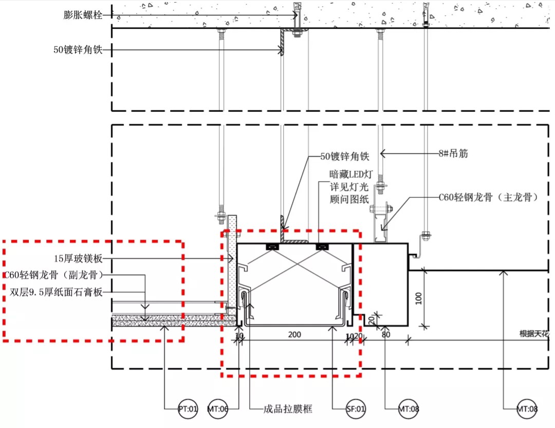
软膜天花节点图…
迫不及待来工地…
多种吊顶反光灯槽节点图…
隐形门
楼梯石材踏步分享
施工图制作(四)
天花施工节点图(异形)
侥幸光谷工地继续施工…