装修案例
灵感美图
找设计
找工长
看工地
记住密码
我已阅读并同意注册协议
发布话题
天花磁吸轨道灯施工节点
天花风口施工图节点
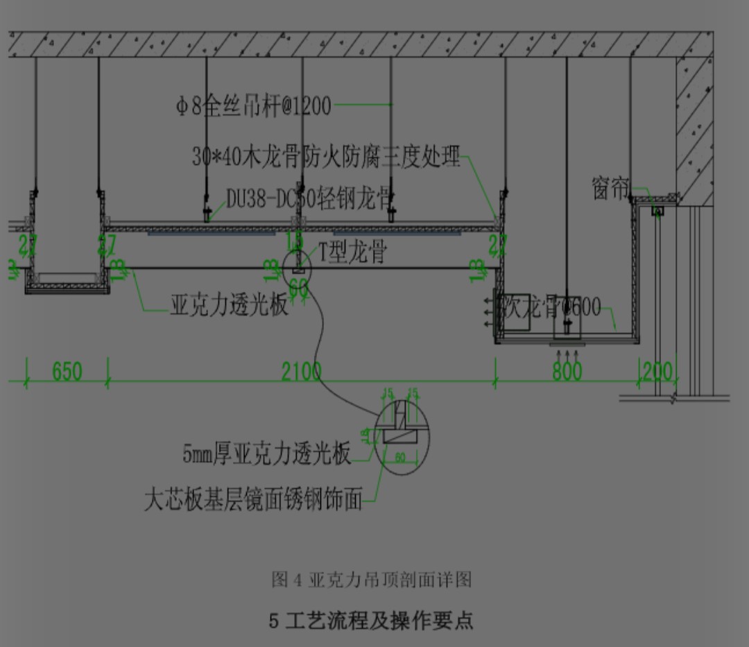
亚克力板透光天花吊顶施工工艺
常规吊顶节点图
办公室实景图…
完工好过年…
吊顶节点图
干活…