装修案例
灵感美图
找设计
找工长
看工地
记住密码
我已阅读并同意注册协议
发布话题
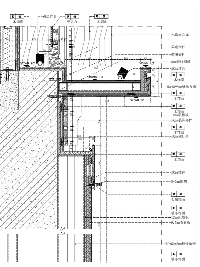
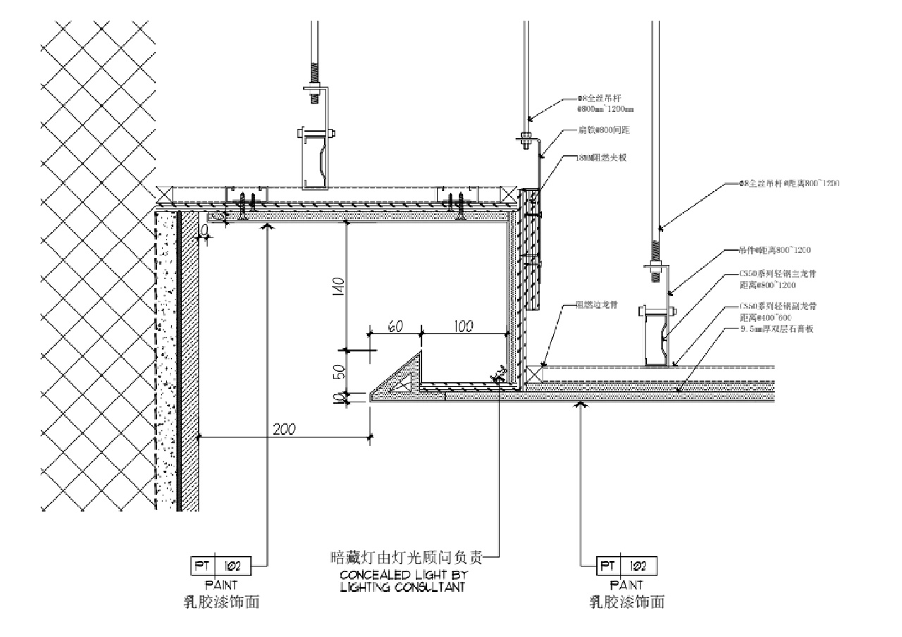
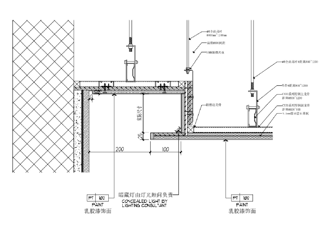
灯带安装位置
线性灯布置
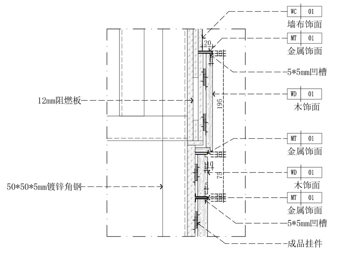
吊顶节点尺寸
施工细节…
高隔实景图
极简淋浴间极简淋浴间干湿分离,边线处理工艺节点!石材挡水线定制成型安装,避免侧瓷砖过小不好开料粘贴,粘贴后阳角位容易崩角等现象。现采用石材一体成型,减少渗水点,阳角磨圆边处理,安装施工简便,值得学习分享。
精致的发光灯槽
节点图