当前位置:首页 > 户型图分析

#标准施工#

阅读 142512 | 粉丝 142512

  • 小筑 / 设计师

    2024年02月03日 10:30:32

    + 关注
    #标准施工#

    住宅空间尺寸        

  • 小筑 / 设计师

    2024年02月03日 10:29:03

    + 关注
    #标准施工#

    公共空间尺寸        

  • 小筑 / 设计师

    2024年02月03日 09:30:03

    + 关注
    #标准施工#

    建筑常识|公共建筑卫生间设计要点知识结
    Tips:公共建筑卫生间设计的平面功能布局、以及空间尺寸都有其特定的规范要求。其中:
    1.洗脸盆或盟洗槽水嘴中心与侧墙净距不宜小于0.55m
    2.并列洗脸盆或盟洗槽水嘴中心间距不应小于0.70m
    3.并列小便器的中心距离不应小于0.70m宜为0.80m
    4.便器之间应加隔板,小便器中心距离侧墙或隔板的距离不应小于0.35m,宜为0.40m
    5.内、外开门的厕位隔间至对面小便器或小便槽外沿的净距分别不应小于1.10m和1.30m
    6.内、外开门的蹲便器厕位分别不应小于0.90m宽x1.40m深和0.90m宽x1.20m深,厕位宽度宜为1.00m
    7.内开门的双侧厕位隔间之间的净距不应小于1.10m;外开门的双侧厕位隔间之间的净距宜为1.50m-2.10m。                                8.内、外开门的坐便器厕位分别不应小于0.90m宽x1.50m深和0.90m宽x1.30m深;厕位宽度宜为1.00m
    补充:
    a.单侧并列洗脸盆或盟洗槽外沿至对面墙的净距不应小于1.25m;双侧并列洗脸盆或塑洗槽外沿之间的净距不应小于1.80m
    b.内、外开门的厕位隔间至对面墙面的净距离分别不应小于1.10m和1.30m
    c.小便器或小便槽双侧布置时,外沿之间的净距不应小于1.30m
    分享:公共建筑卫生间设计要点知识总结,希望对大家制图与识图能有帮助!        

  • 小筑 / 设计师

    2024年02月01日 09:11:03

    + 关注
    #标准施工#

    天花吊顶深化设计        

  • 边洪镇

    2024年01月31日 11:37:00

    + 关注
    #标准施工#

    赶工...        

  • 姜马马 / 设计师

    2024年01月29日 21:45:33

    + 关注
    #标准施工#

    玻璃隔断        

  • 小筑 / 设计师

    2024年01月29日 21:06:24

    + 关注
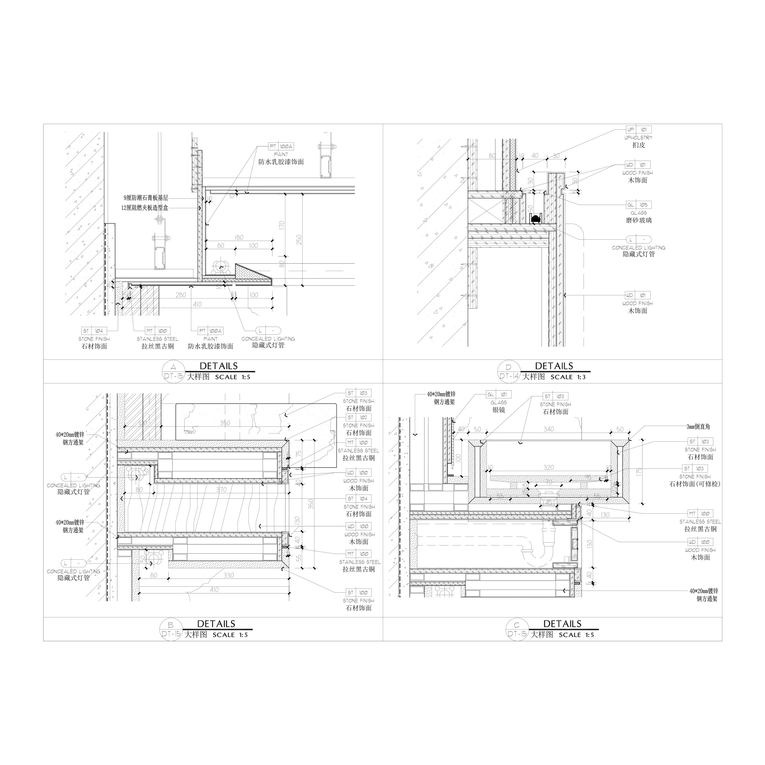
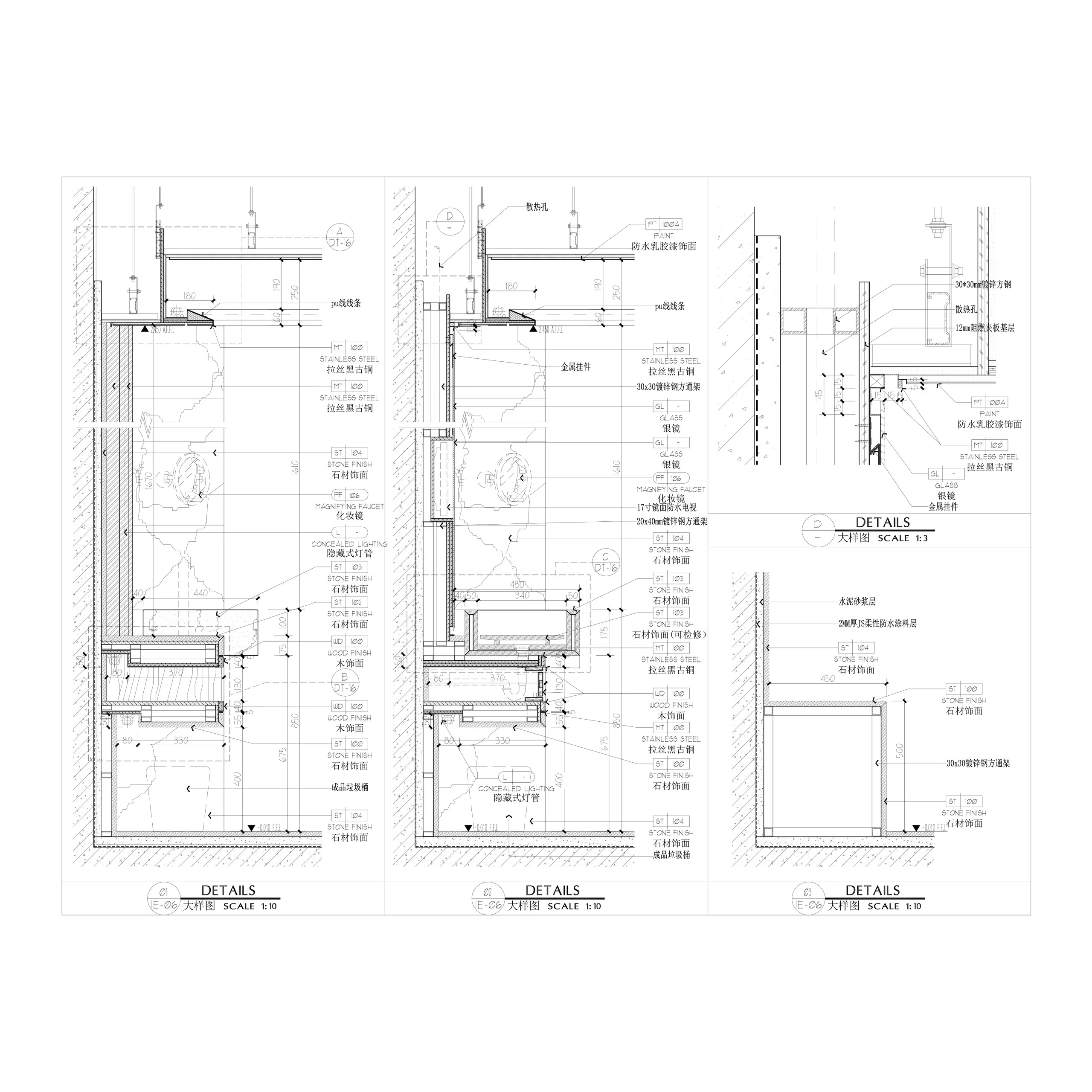
    #标准施工#

    墙身节点及大样篇        

  • 姜马马 / 设计师

    2024年01月29日 10:42:01

    + 关注
    #标准施工#

    灰色隔断效果        

发布话题

公开