装修案例
灵感美图
找设计
找工长
看工地
记住密码
我已阅读并同意注册协议
发布话题
透光铝单板墙面节点
铝单板背景墙节点
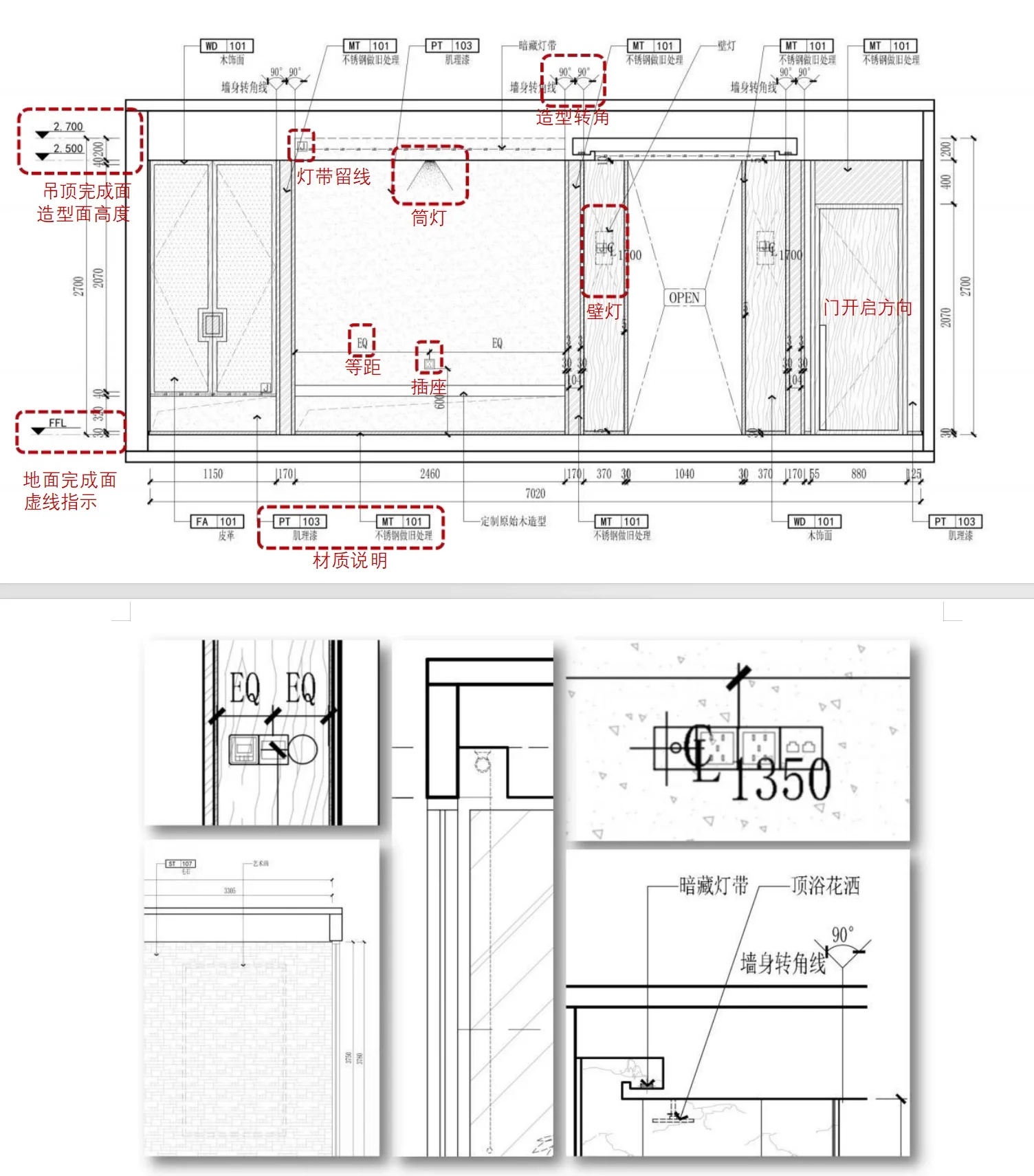
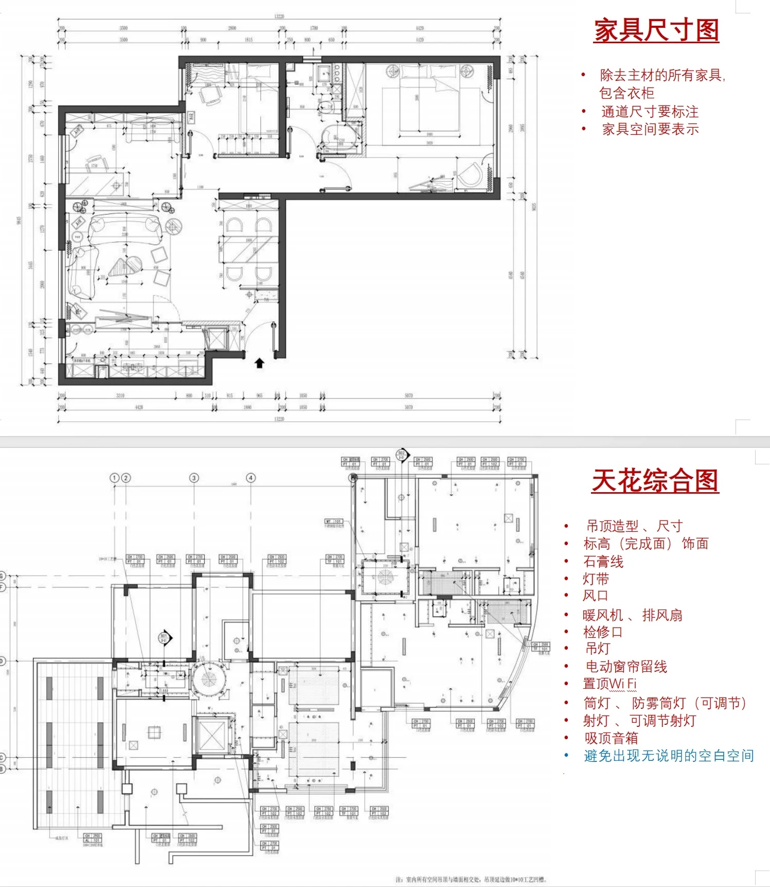
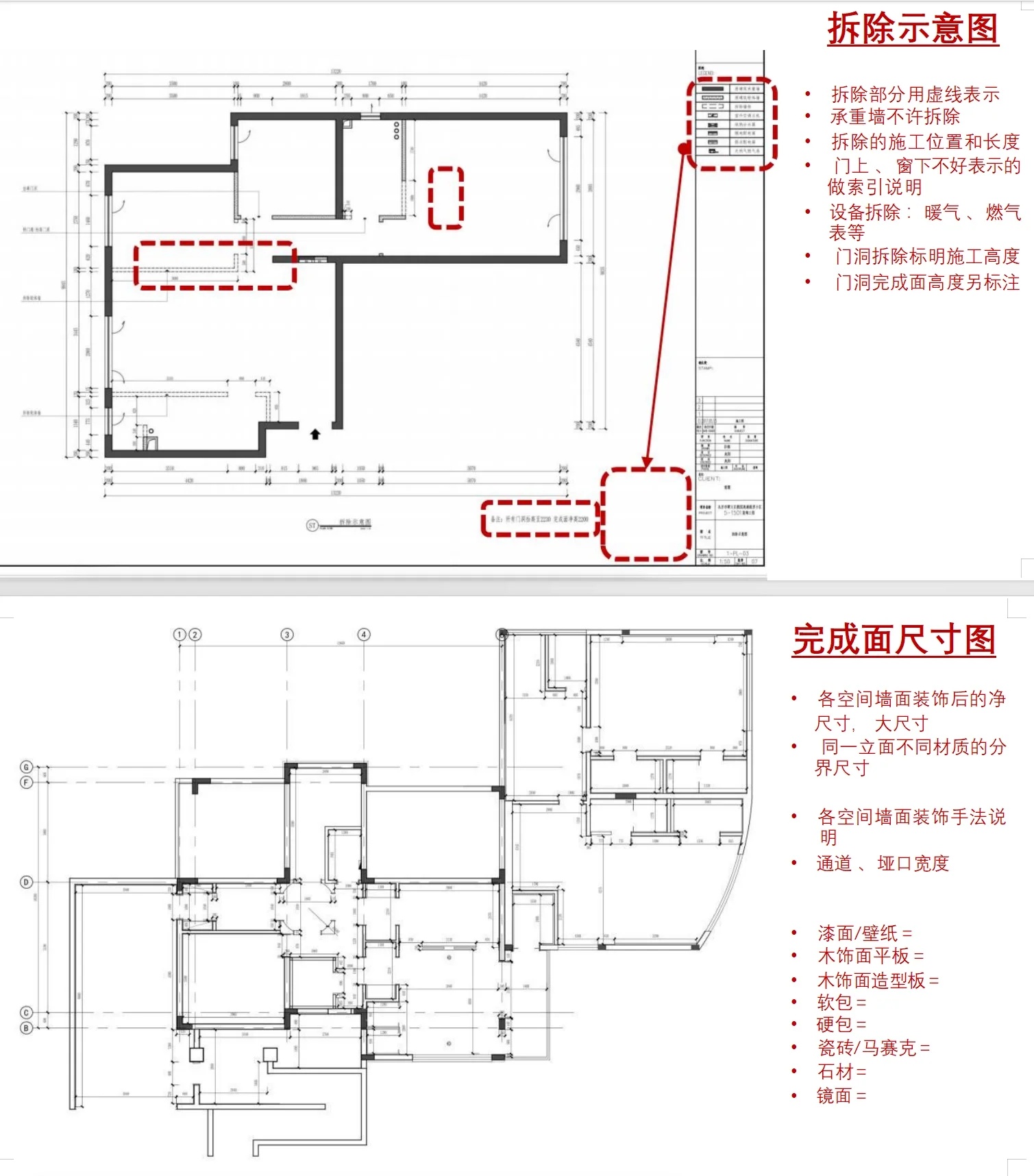
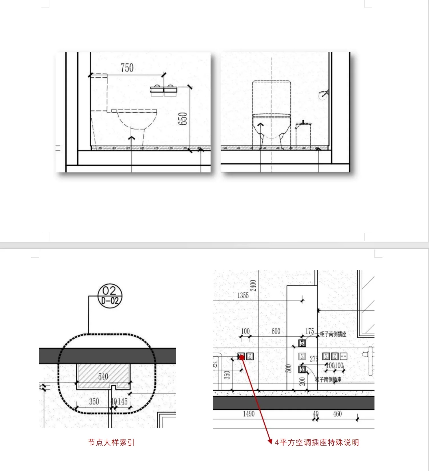
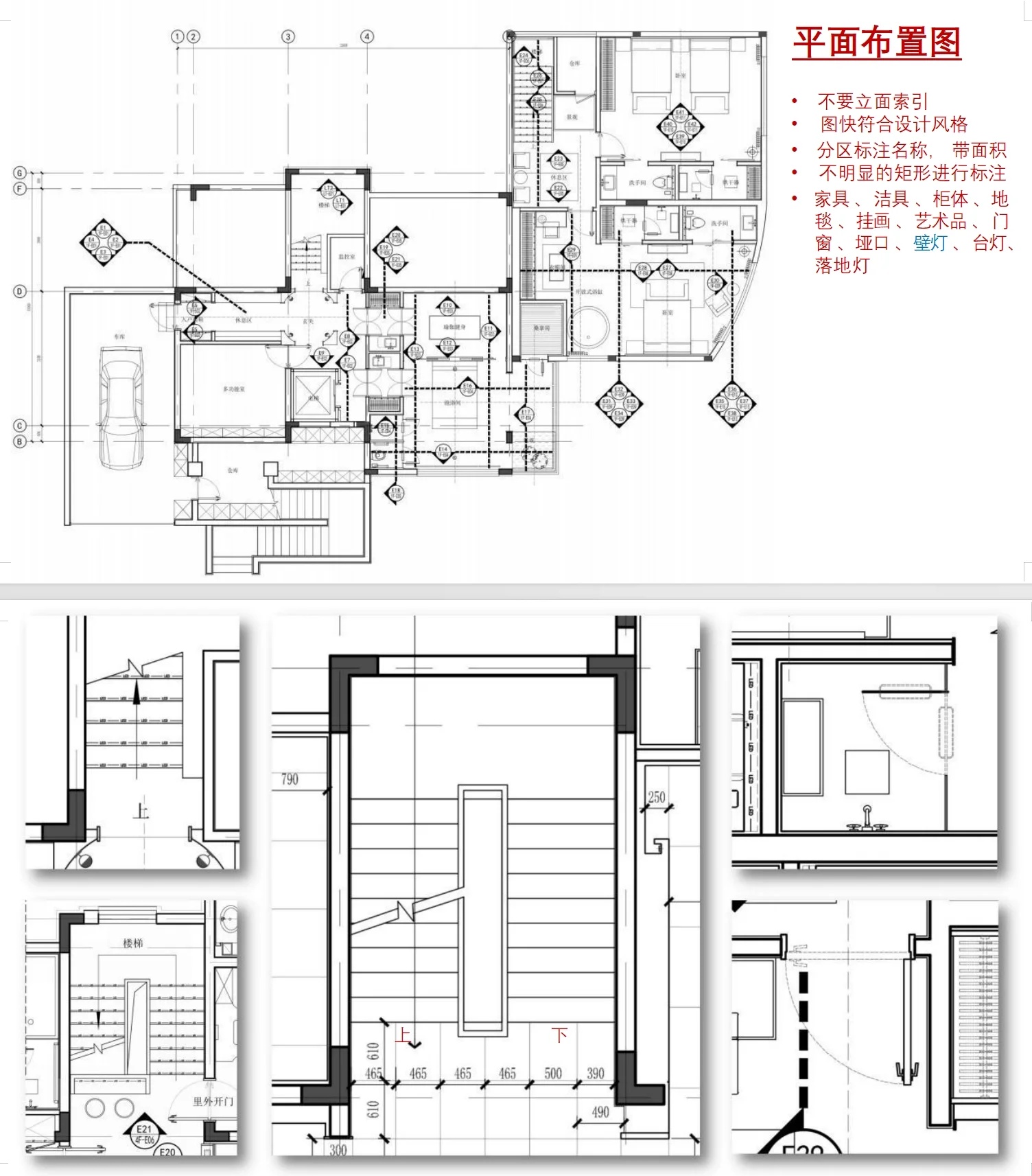
施工图要点(1)
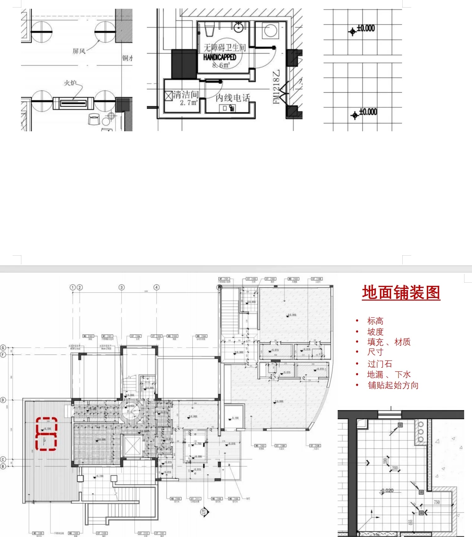
施工图要点(2)
顶面镜面板安装
效果图与现场图
矮墙剖面
窗帘盒