首页
设计圈
案例美图
装修案例
灵感美图
头条资讯
设计智造
找设计
找工长
看工地
服务
观点
提交设计需求
注册
登录
记住密码
找回密码
登录
还没有易住账号?
点击注册
使用第三方账号登录
获取验证码
我已阅读并同意
注册协议
注册
已有易住账号?
点击登录
当前位置:
首页
>
户型图分析
当前话题
更多话题
发布话题
#易住美宅#
阅读 72598
|
粉丝 72598
匡志贤
/ 设计师
2022年04月21日 10:29:25
+ 关注
#易住美宅#
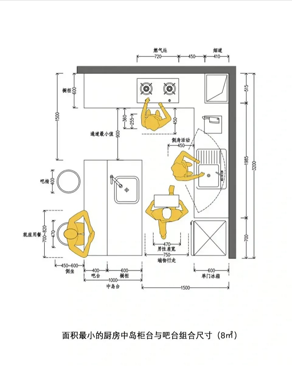
厨房尺寸(2)
0
0
0
发表
匡志贤
/ 设计师
2022年04月21日 10:28:19
+ 关注
#易住美宅#
厨房尺寸
0
0
0
发表
刘静
/ 设计师
2022年04月20日 20:04:39
+ 关注
#易住美宅#
卧室尺寸注意
0
0
0
发表
刘静
/ 设计师
2022年04月20日 18:56:01
+ 关注
#易住美宅#
整体风格是现代和极简主义的。空间以经典和大气的原木色、白色和灰色为主。自然纯净的感官感受营造出一种舒缓、优雅、舒适的空间氛围,体现了温暖的呵护!
0
0
0
发表
Siri
/ 设计师
2022年04月20日 09:27:02
+ 关注
#易住美宅#
多分离卫生间设计布局
0
0
0
发表
小筑
/ 设计师
2022年04月20日 07:28:15
+ 关注
#易住美宅#
黑白的美
0
0
0
发表
无忌
/ 设计师
2022年04月19日 15:51:00
+ 关注
#易住美宅#
瓷砖橱柜
0
0
0
发表
巴顿
/ 设计师
2022年04月18日 12:10:20
+ 关注
#易住美宅#
220㎡大平层
0
0
0
发表
1...
<<
61
62
63
64
65
66
67
68
>>
80
玩转π币
过来人的装修经验
达人List
过来人的装修经验
直播达人
直播新人
小筑
2270
1610383
2307
毛均峰
1040
79773
1112
丽旻
640
27609
662
猪猪侠
460
21711
467
敏颜
441
22297
464
夏毅
436
28075
474
饶阳
683
58008
696
敏颜
441
22297
464
乌拉西
308
19731
317
杨梅酱
266
17303
272
Jason
235
18929
262
Bobo
207
28093
256
精选话题
#办公智造#
#标准施工#
#醉美庭院#
#餐饮美食#
#品牌全案#
#易筑展陈#
#易住美宅#
#商业空间#
发布话题
公开
请选择话题类型
办公智造
标准施工
醉美庭院
餐饮美食
品牌全案
易筑展陈
易住美宅
商业空间
确认发布